原先客戶提供的希望圖面.....
客餐廳...
鞋櫃+書櫃...

電視櫃

電器櫃+餐櫃...


依客戶需求修改的設計圖.....



實作照片.....






客戶提出的主臥需求圖面


依客戶需求修改的設計圖面



實作照片




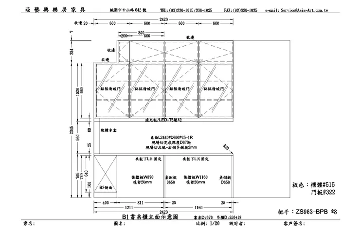
客戶提出的書房工作室需求圖面....



依客戶需求修改的設計圖



實作照片




原先客戶提供的希望圖面.....
客餐廳...
鞋櫃+書櫃...

電視櫃

電器櫃+餐櫃...


依客戶需求修改的設計圖.....



實作照片.....






客戶提出的主臥需求圖面


依客戶需求修改的設計圖面



實作照片




客戶提出的書房工作室需求圖面....



依客戶需求修改的設計圖



實作照片























