


這是第三次入住新家,每搬一次,成員越多,從2人、2+1到2+2人。
我和太太看上一個地點、機能滿不錯的新成屋,但考慮住的人變多,再加上爸媽偶爾來看孫,於是我們決定買兩戶合併一戶,讓原本單一戶逼近飽和的生活坪數,多出更寬裕的居家空間。
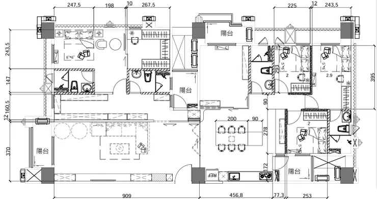
[房屋基本資料]
位置:彰化
屋況:新成屋
格局:4房4衛2陽台1客廳1廚房1神明廳
坪數:室內實際坪數52.5坪(兩戶合併戶)
裝潢費用:208萬(不含冷氣、家電)
設計公司:麥斯設計室內裝修
(平面圖)

與麥斯設計已是三度合作,前兩次的裝潢成果都令我們十分滿意,也深信他們的專業。因此這次新家裝潢,我們毫不猶豫地再次選擇麥斯設計,期望能延續之前的美好經驗,打造出理想中的新家。
由於我和太太各自有喜歡的元素,經歷三次大規模變更,最終設計定案。
在不同空間裡玩混搭,融合一些現代設計元素,打造一個兩全其美,平時住得舒服,假日和朋友聚會也很有面子,能展現我們生活品味的家。
(3D圖)







全裝潢以圓弧設計為特色,貫穿結合我們各種的風格喜好,既增加了視覺層次感,也讓空間顯得更加柔和。





[客廳]
客廳設計上,我們最在意就是空間感!所以麥斯設計師刻意把隔間牆往後推,讓客廳看起來更寬敞,第一眼就覺得舒服。
另外,我們還想要有點不一樣的感覺,所以加入了現在很流行的木作圓弧造型(主要是太太很喜歡弧型線條),搭配質感很好的大理石檯面,牆面也特別選了特殊塗料,讓整個空間更有設計感。
這樣一來,客廳不只是平時家人一起看電視、聊天的地方,假日朋友來了,也能在這裡輕鬆自在地聚會,大家都能覺得舒服又滿意。







@裝潢遇到的難題
這次裝潢,在客餐廳和私人空間的隔間設計最讓我們傷腦筋。因為空間是連在一起的,要怎麼在平時保有隱私,又能兼顧偶爾需要打開空間的彈性,實在是個難題。
麥斯設計給了我們很多方案,最後我們選了做兩片可以移動的拉門(拉牆)。這樣一來,可以隨時調整私人空間的入口大小,超方便的!
而且設計師還把客廳和廚房之間的折疊拉門設計成隱藏式,收起來的時候完全看不見,整個空間看起來更寬敞。這個設計真的幫我們解決了大問題,讓我們的新家更符合需求。



[餐廚]
餐廚區的設計延續了整體現代風格,我們最重視的就是一家人可以輕鬆自在地互動,所以麥斯設計打造了一個開放式的餐廚空間。
最喜歡的就是這個長條中島,不僅可以一起準備料理,也能當作吧台,搭配特別訂製的餐邊櫃,收納方便讓空間更整潔。而且設計師還把建商原本的櫥櫃門片重新烤漆,讓它跟整個空間更協調,這個小改變讓我們都稱讚設計師想得好周全!
還有餐廳和廚房之間的動線,設計師也考慮到實際使用情況,規劃調整讓動線更順暢,用起來更得心應手,讓我們每次進廚房都覺得心情很好。



[神明廳]
神明廳的設計,對我們來說最重要的就是莊重、明亮,空間與陽台連在一起,設計師特別注重自然光的引入與空間的通透性,選用了鋁框玻璃拉門,滿滿自然光灑進,感覺更開闊,營造出一種舒適、寧靜的氛圍。


[主臥室]
主臥室的設計,我和太太有很多想法,最想要的就是一個屬於我們兩人世界空間!所以我們特別請設計師在主臥室裡規劃了一個小客廳和更衣室,這樣一來,主臥室就更像一個完整的空間,可以放鬆、聊天,也能好好整理衣服。
我們還在主臥室的天花板做了拱形設計,搭配深色木紋的收納櫃,營造出一種輕復古的浪漫情調,這都是我和太太喜歡的風格。雖然主臥室空間不大,但對我和太太來說卻是最完美的,它實現了我們對家的想像,也讓我們的生活更舒適、更愜意。





[次臥三間]
三間次臥在另一側,有兩個小孩的房間、爸媽或親友來玩時的客房,以簡單舒適為主,除了基本的書桌、衣櫃,色系也做了一點變化,讓每間次臥都有自己的特色。
新家對我們來說,不只是多了一個可以放鬆的兩人世界空間,更重要的是能讓一家人住得舒服,孩子也有自己的獨立房間!而且還有寬敞的客餐廳,隨時都能邀請親朋好友來家裡作客。我們真的很期待在新家開始全新的生活,每天都能感受到簡單又幸福的家庭時光。



地址:彰化縣彰化市泰和路一段114號
電話:0986 620 609
LINE:@325dxwgp
粉專:https://www.facebook.com/3dsmaxstudio
IG:https://www.instagram.com/maxdesign2015/
























