

這次幫爸爸規劃退休宅,真的費了不少心思,裝潢不只是讓空間變美,更重要的是 讓生活更舒適、更方便,尤其是爸爸一個人住,生活動線一定要設計得夠 安全、好用、好清潔,假日我們一家三口回來住時,也能自在享受天倫之樂。
從 收納、插座、無障礙設計,到風格選擇,每個細節我們都仔細考量,希望這個家能陪伴爸爸 住得安心。
我們現在住的房子當初就是找禾硯設計!整個溝通的過程跟設計風格都很滿意,也有推薦給同事,上次去他家看他的裝修風格很不錯,所以這次爸爸的退休宅有跟禾硯設計討論了想要比照同事新家的風格再做一些調整,這一次一樣讓我很滿意👍🏻

這次幫爸爸規劃退休宅,真的費了不少心思,裝潢不只是讓空間變美,更重要的是 讓生活更舒適、更方便,尤其是爸爸一個人住,生活動線一定要設計得夠 安全、好用、好清潔,假日我們一家三口回來住時,也能自在享受天倫之樂。
從 收納、插座、無障礙設計,到風格選擇,每個細節我們都仔細考量,希望這個家能陪伴爸爸 住得安心。
我們現在住的房子當初就是找禾硯設計!整個溝通的過程跟設計風格都很滿意,也有推薦給同事,上次去他家看他的裝修風格很不錯,所以這次爸爸的退休宅有跟禾硯設計討論了想要比照同事新家的風格再做一些調整,這一次一樣讓我很滿意👍🏻
|3D圖|
北歐風格,以白色為主、木色為輔,營造簡單溫馨的氛圍。
輕裝潢,不過度裝飾,以實用性和舒適感為主。
加強收納空間,日常物品要有放置的空間,避免雜物堆放才能保持空間清潔,也適合日常居住與家人假日回來時的需求。





木作階段,看到這個畫面就能感受到家逐漸成型的感覺!
🔹 圓弧窗門框初步架構:這次採用 圓弧造型,讓空間更具柔和感,視覺也更流暢不生硬。這個細節施工需要精準的曲線裁切,讓圓角弧度自然融合牆面。

🔹 天花板結構成型:天花板的木作框架已經到位,未來會內嵌燈具,讓照明更均勻且無壓迫感,同時提升空間層次感。

🔹 牆面修整 & 電線佈線:可見牆面已進行打底,電線也開始安排進入牆內,避免之後外露影響美觀。

這個階段雖然還是工地模樣,但能感受到未來溫馨舒適的空間輪廓!
施工階段:房間木作施工進度!
房間的木作逐漸成型,開始能感受到溫馨感,這次設計注重 圓弧細節、收納規劃與整體質感,打造舒適實用的居住空間。
🔹 圓弧床頭板設計
牆面採用 異材質拼接,上半部為灰色紋理、下半部為木紋,搭配圓弧曲線,柔和視覺線條,提升空間流暢感。
內嵌式插座預留,讓未來使用電器更方便,床頭線路也不會外露,整潔又美觀。

🔹 整體式收納櫃
直立式高櫃 提供充足收納空間,無把手設計 讓整體更俐落,視覺更簡潔。
開放層架 方便擺放日常用品或裝飾小物,實用與美感兼具。
下方櫃體 與床頭連接,整體感更強,避免多餘縫隙積灰塵。

目前木作細節已逐步完成,接下來就是最後的 油漆與細節收尾,期待最終完工的樣貌!✨
施工保護措施:地板保護
這次裝潢施工,地板部分為 建商原提供的SPC地板,在施工過程中特別強調 地板保護與細節處理,確保最終完工後維持最佳的狀態。
🔹 地板保護良好
施工期間使用 膠帶及保護板,避免刮傷或損壞地板表面。
木作及油漆作業期間,維持清潔度,避免粉塵影響地板質感。

🔹 配合地板顏色設計切入
整體設計搭配原有SPC地板的 木紋色調,讓空間更有一致感。
收邊細節處理,使地板與牆面自然融合,提升整體視覺美感。

施工保護得宜,讓裝潢順利進行,也確保完工後呈現出理想的整體質感!
即將迎來完工開箱!
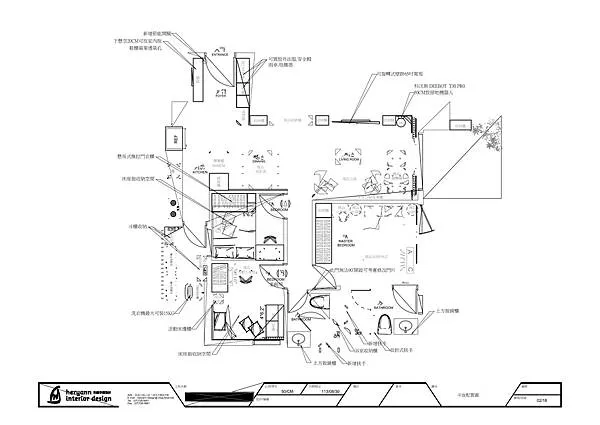
❶ 床頭櫃要有擺放空間+收納!
有些人覺得床頭櫃可有可無,但對我爸爸來說,一個 好用的床頭櫃 真的很重要!睡前總要放個眼鏡、手機、藥、甚至一杯水,所以床頭一定要有 足夠的擺放空間,最好還有抽屜能收納雜物,讓桌面保持乾淨整潔,這次裝潢我們還特別規劃了 床邊插座多一點,避免以後還要拉延長線,整齊又安全。

❷ 插座夠多,未來才不怕
老實說,以前裝潢的時候,總會忽略插座的重要性,住久了才知道,插座數量 絕對不能省! 我們特別在 床頭、沙發旁、書桌、廚房中島 這些高頻率使用的地方,加強插座數量,甚至還預留了一些未來可能用到的位置,這樣爸在家裡用電器就不用到處拉延長線,也比較安全。

❸ 小廚房也要大收納!
雖然我爸自己住,廚房不用太大,但 收納空間絕對不能少!我們採用 半開放式設計,這樣通風好,也不會讓油煙太悶。另外,為了最大化空間利用:
✔ 半開放式廚房:通風更好,不怕油煙悶住,假日我們回來時,也能一起邊聊天邊準備餐點。

✔ 木工電視牆櫃體:非常符合我的裝潢需求:收納空間要很多😂因為爸爸年紀大了,很多東西都捨不得丟,那就收納空間多一點吧!

✔ 中島+電器櫃:平時爸爸可以當料理台,假日我們回來時也能變成小餐桌或臨時辦公桌,多功能又實用。

✔ 圓弧木作櫃:圓弧的美觀之外,也不會碰撞到角角!

❹ 走道無障礙設計,動線更友善
退休宅最重要的,就是安全性!雖然我爸很健康,但我們也考量到未來的生活需求,年紀大腿腳難免會比較不方便,所以走道我們設計得 寬敞好走,不用擔心擠來擠去。另外,全屋扶手 是這次設計的大亮點!像是:
✔ 走道加寬:有些老房子走道很窄,容易撞來撞去,所以我們在設計時,特別讓走道保持 寬敞、好走,以後萬一要用輔助器具,也不會卡住。

✔ 走廊設計隱藏式扶手:這點超重要!浴室是家裡最容易滑倒的地方,所以在 馬桶旁、淋浴區 都有加裝安全扶手,爸爸如果行動比較不便,也能輕鬆站起來。


✔ 自動感應燈+夜間燈條:晚上起來上廁所,不用摸黑找開關,靠近時燈自動亮起,讓爸爸走得更安心。另外主臥的浴室有特別做一個拉門隔開,這是爸爸特別要求的~看了完工後發現這樣真的特別的美觀!

❺電器箱要美觀,不要突兀
電器箱通常會讓裝潢變得很醜,所以這次特別規劃一個 隱藏式設計,用木質收納櫃擋住,表面還能當展示空間放點爸喜歡的小擺飾,實用又美觀。


❻ 裝潢風格:北歐簡約,溫馨又好整理
這次整體走 北歐風輕裝潢,以 白色為主、木色為輔,溫暖又耐看。考量爸的生活習慣,選擇:
✔ 圓弧設計:削弱生硬線條,視覺更溫潤流暢,大面窗景搭配圓弧框,內外視野更開闊,讓客廳更顯通透寬敞。
✔ 無把手設計:抽屜跟櫃子都能輕鬆開合,乾淨俐落又好整理。
✔ 防污防指紋材質:像是容易沾手印的門板改成霧面材質,減少清潔壓力。

✔ 衣櫃內部:衣櫃以吊衣桿搭配大抽屜,衣物收納更靈活方便。


這是一個能住一輩子的家!
這間房子,不只是爸爸的退休宅,更是一個裝滿回憶、承載著我們一家人情感的家。

爸爸一個人住在這裡,白天可能會泡壺茶、坐在陽台看看風景,偶爾翻翻書,晚上則窩在客廳看電視,日子雖然簡單,但這裡是他最安心的避風港。而對我們來說,這個家更像是一個 永遠溫暖的歸宿——假日回來,一家人坐在一起吃飯,孩子在客廳跑來跑去,爸爸邊笑邊看著我們,像是回到了那些我們小時候的日子。

我們都知道,房子不只是住的地方,它還承載了歲月的痕跡、家的溫度,還有家人間最真摯的關心與陪伴。所以這次裝潢,我們想的不只是美觀和實用,更希望 這是一個可以住一輩子的家,一個不管過了多久,推開門就能感受到溫暖的地方。





























