

來開箱我親愛的獨居貴族姊姊的新家!
雖然只有15坪的1+1房,但每一處完全是依照她的喜好和需求量身打造。作為一個同樣熱愛居家布置的家庭主婦,真的有被這個小宅的合理運用空間方式驚艷到!
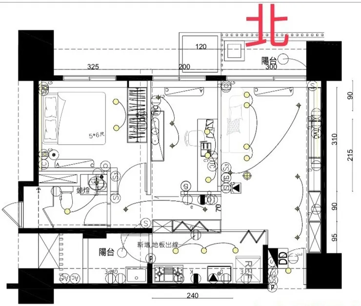
室內設計│規劃平面圖
我姊從電視節目上看到水設室內設計的介紹,很喜歡他們的概念,覺得小空間更需要細膩的規劃才能住得舒服,於是請他們來幫忙規劃新家。

室內設計│全屋設計概念
我姊說設計師在規劃初期就花了很多時間跟她溝通,了解她的生活習慣、收納需求,加上我姊是個非常有條理的人,把每一樣物品的使用頻率、尺寸、習慣都列得清清楚楚。也因為這樣,收納空間幾乎是量身打造,每一寸空間都物盡其用,完全沒有「好看但沒用」的虛設,每一個細節都很符合她的心意。
室內設計│扼腕殘念的想法
原本她很想要一個中島,但設計師空間放樣後,走道會變得太窄,最後忍痛放棄了。不過我覺得這個決定很明智,畢竟在小坪數的家中,行走動線的流暢度更重要!有時候少即是多,特別是在有限的空間裡,每個取捨都會影響日常生活的便利性。
▼新成屋況





裝潢施工│全面保護工程
現在大樓施工對公設保護真的很嚴謹!從停車位就開始鋪保護墊,電梯公共空間、大門、室內地板、櫥櫃、房間,全面保護,不僅體現了施工團隊的專業,也讓整個裝修過程更加安心。




裝潢施工│+1房成為透亮書房
原本封閉的+1房,設計師將它改成半牆半玻璃的設計,瞬間讓空間通透起來,既保有獨立空間的功能性,又不會讓整體感覺狹小壓迫。


裝潢施工│藝術塗料打造層次感
好幾種灰色調塗料選擇,我姊和設計師比對好幾次,終於決定了最適合的色調。

▼上漆後,整個空間的層次感立刻出現!讓空間顯得更有深度和質感。


裝潢施工│機能延伸坪效最大化
設計師特別在廚房規劃了新增延伸的流理台空間,15坪小空間更要好好填滿利用每一寸!

新家開箱│流暢客廳與餐廳
來到客廳,採光真的很棒!陽光透過落地窗灑進來,讓本來不大的空間頓時明亮開闊。設計師選擇了比例適中的家具,既不會太過擁擠,也不顯得空蕩,恰到好處營造出舒適感。比起我家塞滿各種雜物的客廳😅這種極簡風格反而更讓人放鬆!





▼入住半年依然好整齊,真的要歸功於當初完善的規劃,設計對了真的差很多!


新家開箱│廚房意外的設計亮點
原本設計師是想讓客廳和廚房的高度一樣,打造更開闊的視覺感,但因為電梯的限制,鋁框拉門的高度沒辦法做到那麼高,最後決定讓廚房稍微低一點點,然後用清玻璃的鋁框門隔開。這個改動我覺得反而更有層次感,而且透明的玻璃完全不阻礙光線穿透,讓小空間也能有放大的效果。


新家開箱│兼具實用與信仰的書房
書房是我姊很重視的一個空間,除了書桌和書櫃,設計師特別為姊姊的佛像設計了一個可以擺放供品的區域。我覺得宗教信仰融入居家空間,不僅能帶來心靈上的安定,在設計上也可以很有特色。
另外,原本計畫放在主臥的行李箱收納櫃,因為尺寸問題最後移到了書房。我覺得這就是好的室內設計價值!遇到限制時靈活調整,找到最適合居住者的方案。


▼這個佛龕區域成為我姊每天早晚必定駐足的地方,安靜沉澱心靈。

新家開箱│收納滿分的主臥
主臥雖然不大,但姊姊的衣物收納卻一點都不馬虎,也藏了很多巧思,比如靠窗的衣櫃旁邊有個小櫃子,是專門收納燙衣板的。
這一點真的很值得學習!我回家也要重新規劃一下我的燙衣板位置了,用完總是隨手靠在牆角,每次看到都覺得有點礙眼,還容易不小心踢到呢!




開箱心得│真實需求造就完美空間
15坪的空間,沒有什麼浮誇的裝潢,但每個角落都充滿姊姊的個性和實用精神。設計師的功力則在於把這些真實需求變成一個舒服、靜心的生活空間。
這次開箱讓我深刻體會到,小坪數住宅的精髓不在於塞進更多功能,更重要的是要貼合居住者的生活習慣和需求,姊姊的新家絕對是小宅設計的典範!
大家有什麼想問的,都歡迎留言討論哦!
設計公司│水設室內設計
官網:https://www.shuei-design.com/
粉專:https://www.facebook.com/shuei.interiordesign
▶新竹環北店
電話:03-656-8163
地址:新竹縣竹北市環北路五段295號
▶苗栗頭份店
電話:037-690130
地址:苗栗縣頭份市尚順路59號
▶台南一店
電話:06-3022565
地址:台南市永康區中華路768號
▶台南二店
電話:06-3586451
地址:台南市安南區府安路六段279號






















