
妹妹終於買新房了!看著她從看房、選房,到現在裝潢完畢,身為哥哥的我,雖然嘴上沒多說什麼,心裡其實替她感到非常開心,當然得來幫她開箱一波。
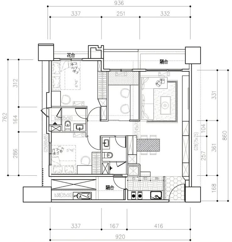
這次她是找家人介紹的麥斯設計師操刀,整體風格簡約又不失細節,看得出來設計師真的滿懂我妹的。從一開始的溝通就讓人印象深刻,不像有些設計師會強推自己的想法,他很認真聆聽妹妹的需求和生活習慣。作為旁觀者,我看得出來他是真的在為住在裡面的人著想,而不是只想做出好看的作品照。平面圖

3D圖


剛開始看平面圖的時候,還沒什麼感覺,但一看到3D模擬圖,馬上就被吸引住,讓人滿有期待感。而且實際完工後跟3D圖幾乎一模一樣,細節都做到位,完成度超高!
裝潢中
裝潢開始後,我偶爾會去工地看看,幫我妹把把關,每次都有新的發現。

花磚地板:界定空間
玄關與廚房,地板鋪設了花磚,這簡直是神來一筆!花磚地板設計不只是好看而已,更重要的是它成功界定了空間機能。一進門就知道哪裡是玄關、哪裡是廚房,同時也為空間注入了滿滿的生活感與藝術氣息,真的會讓人忍不住多看幾眼。

圓弧裝潢:柔和舒適
麥斯設計師在許多地方運用了圓弧裝潢,像是天花樑柱、客廳與書房之間的隔牆、或是某些櫃體的邊角,都利用了圓角設計。這讓整個空間瞬間變得柔和溫潤,同時又充滿設計感,完全沒有傳統裝潢那種生硬的稜角,走在裡面感覺特別舒服放鬆。



人字拼地板:精湛工藝
看到師傅在鋪人字拼地板時,工法讓我看得目不轉睛。每一片木板的角度、拼接的精準度,都需要相當的技術和耐心,真的像在進行一場藝術創作!
設計師很重視這次的人字拼鋪法,一早就到現場監工,和師傅討論細節很久,特別選定從房間外的過道作基準點開始鋪設,確保整個空間的木紋可以連貫延伸,最後鋪出來的連續木紋效果真的很驚艷,完全值得!


玄關/餐廳/客廳:生活感的營造
整個公共空間採用北歐混搭日式風格,這種搭配真的很適合現代人的生活方式。簡約但不冷漠,溫暖但不厚重,就是那種回到家會讓人放鬆的感覺。

▼整屋地板用的是淺色木紋人字拼,搭配整體日式調性,既有溫度又不過度裝飾,看久了也不膩,我更喜歡的是木地板自然的節理走向,還有放大空間的效果,工藝感真的很棒!

▼玄關一進門就是花磚地板,我很喜歡這個圖案,顏色沉穩不浮誇,剛好界定出玄關的範圍,又帶點藝術感。機能性和美感兼具,這個真的要給讚。

▼玻璃滑門屏風與廚房內的玻璃拉門,兩個的設計很聰明,不會讓空間變得封閉,保有通透感又有界線。


▼餐廳的藤編椅子我特別喜歡,有點手作味道,坐起來舒服,看起來也很有質感。

▼吊燈、開放層架、電器櫃的設計也都維持一致風格,小細節都能看出設計師的用心。

▼開放式的客餐廳設計讓整個空間看起來真的大很多。材質大多選用淺木皮,加上米白牆面與柔和的家具線條,不會讓人有壓力,反而很放鬆。

▼沙發也是選了比較慵懶自然的圓弧造型,放鬆時坐下去真的會一秒懶惰起來XD

電視牆:收納與美感並重
牆面用的是灰泥質感漆,搭配系統櫃設計,不只好看,還有大量收納空間。



▼妹妹把她收集的達摩玩偶展示在黑色吊架上,很有她的風格,增加了一些文化氣息和個人風格。


▼嵌燈跟吊燈錯落搭配,晚上開燈後氛圍感也很棒。

書房:圓潤通透視野
書房用了弧形玻璃隔間,這點很有巧思,視覺通透又沒有傳統隔間的尖角銳利感,圓角設計讓整個空間感覺更溫和,工作起來比較不壓迫,空間也有延伸感。




臥室:舒適放鬆空間
房間的風格走得比較療癒,整體輕盈明亮、但不冰冷,灰階點綴與木紋相互襯托,很適合都會生活中需要放鬆的空間。






心得總結:一個讓人想賴著的家
整體來說,妹妹的新家給我的感覺就是輕盈、清新又不失溫暖。
看著妹妹從拿到新房鑰匙的興奮,到現在家裡一點一滴成形,我真的替她感到高興。一個好的設計,不只帶來美觀,更重要的是能營造出一個讓人感到安心、放鬆的生活空間。麥斯設計師做到了,也讓我這個哥哥大開眼界!果然找對設計師真的差很多,麥斯設計不只顧美感,還很懂生活實用性,推薦給正在規劃裝潢的人參考看看!

室內設計公司
地址:彰化縣彰化市泰和路一段114號
電話:0986 620 609
LINE:@325dxwgp
粉專:https://www.facebook.com/3dsmaxstudio























