鄉村風別墅-L小姐的花園2 撰文:趙硯華Clare
上一篇介紹了1F,本篇要介紹的B1的視聽區+吧台區

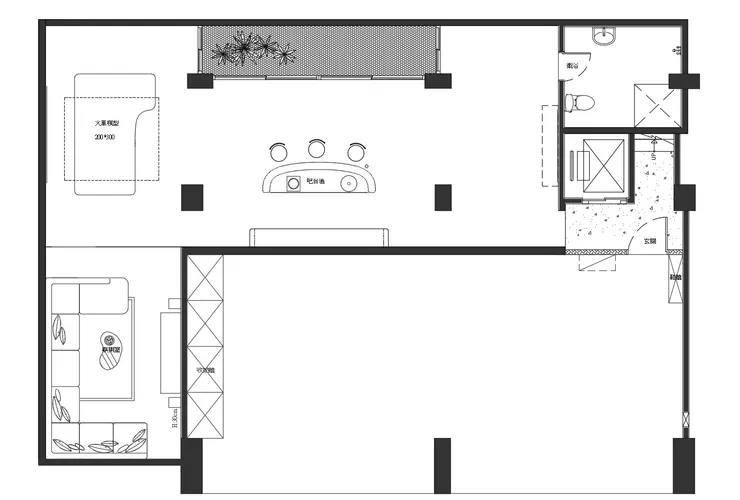
B1平面配置圖/空白處為車庫
這裡的吧台以摩洛哥風情為靈感,創造了視覺色彩非常強烈且令人印象深刻的搭配
內部配有水槽與電器櫃,提供家人朋友在B1娛樂活動時的餐食機能。

吧台上的花磚
花磚下方搭配馬賽克貼出圓弧曲面效果

櫃內壁龕
內部有投射燈可放置風格裝飾品

復古陶磚搭配小花磚
復古的陶磚內部嵌入小花磚,白色填縫尺寸特意留寬增添復古感
男主人的長輩曾是台鐵車長,火車是他小時候的寶貴回憶。這座火車模型參照一段有名的火車觀賞景點製作而成,下方的曲面模型櫃也是我們為了這組模型特別製作。

獨具風格的紅色布簾
視聽室沙發區,以木作訂做的沙發座椅
訂做了深藍色的沙發椅墊,與橘色牆面形成鮮明對比。

電視櫃
電視櫃桌面貼上藍色彩磚,異材質的碰撞形成視覺上有趣的效果。

沙發椅
椅座下方附有抽屜方便收納物品
公共衛浴門片選用紅色,與綠牆,橘牆互相搭配,視覺效果大膽獨特。

公共衛浴的門片
衛浴內部的壁磚用了一個很有趣的設計,把磁磚45度轉過來貼。看起來是不是很像歐洲建築裡城牆的形狀呢~其實提案時我有點擔心客戶會不喜歡這樣尖尖的造型,沒想到一提馬上就過了,貼完之後的效果我自己非常喜歡。

海棠花玻璃
門上面使用透明的海棠花玻璃,在光線下透出美麗的花紋。透光不透人的效果也能讓人知道廁所裡面是否有人使用中。
下方天井區有個戶外空間,這裡的地板延續1F花園的概念,以不同顏色的石頭拚出圖案

天井區地板
電梯以木作包覆美化,值得特別一提的是上方的紅色植物畫作是為了豐富整體裝飾性,特定請年輕藝術家手繪。

電梯前方地板
業主很喜歡敏石子地坪色彩豐富的質感。這裡也是B1的入口玄關,我們已白色石子為基礎混入貝殼、彩色玻璃珠來製作。並使用馬賽克拼貼出圖案。

彩色馬賽克
B1車庫的收納櫃,以穀倉門為靈感設計的造型。不過因為擔心地下室較潮溼實木維護不易,將材質換成了好照顧的美耐板。

收納櫃

四周搭配外露式五金與復古把手,使穀倉門的細節更加豐富。
在撰寫文章的過程中,翻看到曾經提案討論的圖片,再對照完成後的樣子,認為提案時的探討與常識可能性也非常有樂趣,因此放上一些討論過程的資料。在每一個作品的背後,都是無數的設計探討與施工方法的實踐,與志趣相合的客戶碰撞出的燦爛火花。
About Us 關於我們
GiGi Design集集設計,成立以來已走過27個年頭。主持設計師王鎮總監,擅長混搭風不同風格,不拘泥固定形式。
趙硯華Clare:從事室內設計已十一年,仍持續探索設計的各種可能性
Clare的Instagram:
GiGi Design 集集設計 FB:



















