原文日期:2017-02-12
孩提時期,我對露營的印象只有野營,我實在不習慣到露營區去人擠人。現今露客素質良莠不齊,LED光害日益嚴重,想觀星卻只看到燈光,雖已購入噴火龍帳篷,但每次都還是去打聽人煙稀少的營區,迄今幾次露營幾乎都是一帳包場。但如此一來,旅遊行程反而受限,且帳篷的隱蔽性和安全性還是略遜一籌,我就開始思索更自由、安全的野營方式...逍遙睡全國,唯有車中泊。
看來看去,MAZDA 5超適合睡車上,列出以下幾點:
1. 5+2的minivan,車身不過大,女性在市區內也能輕鬆駕駛,沒有壓力;
2.MAZDA 5油耗還可以,很適合遠程旅行,雖然不少客貨車有大空間,但油耗差、安全配備陽春;
3.第二、三排座椅打平後的平整度極佳,簡單加工就有極佳效果。雖說T牌計程車的平整度也不錯,但畢竟MAZDA 5載的是家人,T牌載的是客人,兩者安全配備無法相提並論;
4.車中泊時,滑門更利於上下車。
但缺點也不是沒有:
1.後輪輪拱占掉了部分空間,睡姿常兩腳開開的人會有點侷促;
2.已停產。
我參考了網路上許多前輩的想法及巧思後再設計,原則上利用家中現有的材料,能省則省,非但不傷車體,還考量到平日收納的問題,也配合歲末大掃除清掉一些閒置物品。
開工吧!!
下鋪床板
我參考過芳野RV車中床的設計,整個架高後,床板範圍得以延伸到輪拱上方就能獲得相當不錯的床寬,但MAZDA 5車身不算高,一旦架高就會壓縮車內的活動空間,光是坐起更衣就很窘迫。再者,幾乎沒有空間搭建上鋪,所以最後捨棄了架高床板的構想。
為了得到最大空間,先把第一排座椅推到最前面,然後把第二排座椅的頭枕通通拔掉,呈現「祭止兀」狀態後再打平。

不然會分別頂到椅墊及後座出風口,導致座椅不夠平整,且前推距離受限。

正常來說,第二排向前推到底時,會和第三排之間產生約34cm的空隙,此處可堆置行李來支撐。

但體重輕盈如我者也不用支撐,若床板夠厚直接放上即可。
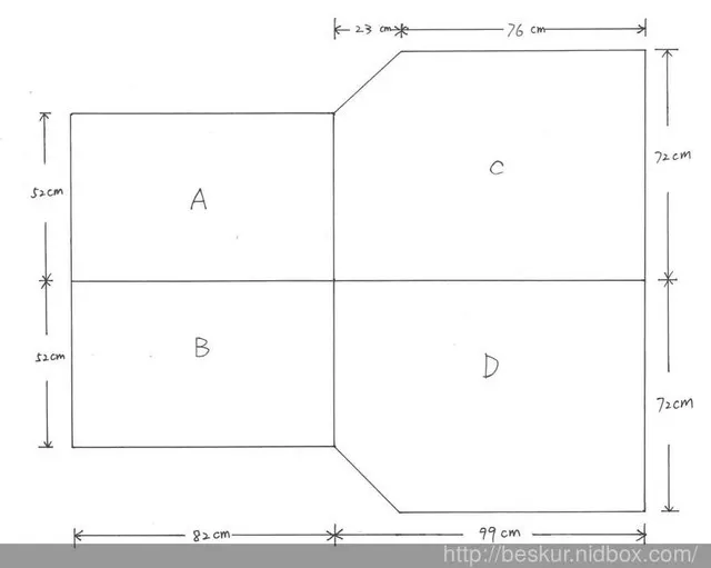
大略的尺寸圖如下:

先拿舊日曆紙及月曆紙來打版。

車尾的部分有點弧度,最深處可達189cm。

但家中現有的床板(厚12mm)只有181cm。

所以配合床板,也為了裁切方便,都直接抓直線,並捨棄弧形部。

搬去木材行裁切,一共6刀,5分鐘搞定,因為是切割兩塊床板,所以最後切成4片。
先試鋪一下確定尺寸。

關於床板的裁切尺寸,我重新畫了一下,如圖:

但這layout有受到現成床板的限制,若是直接去木材行裁切的話,AB兩片合成一片,強度會更好一點,我想82cm可以再延長到85cm以上。
為了免去鋪睡墊的麻煩,上網另購高密度泡棉(厚3.8cm)及PU合成皮(咖啡色),先將兩者裁切成需要的尺寸。

網路所見,國內車宿作品外層蒙皮的不多,但日本車中床的風氣很盛行,以”車中泊 ベッド タッカー”去搜尋,可以找到很多床墊的DIY蒙皮範例。有一間A-STYLE CO.,LTD.,專門製作車中泊用品(類似台灣的芳野RV),床墊蒙皮的釘法非常細緻和講究,參考後,我也決定要釘得密集一點。
將泡棉以白膠稍微固定於床板上,放置隔夜。

先把包皮拉撐拉緊,邊緣內摺後再以釘槍狠狠釘下。

但這拉皮動作頗費力,搞得我手指痠痛,尤其是角落特別難處理。

蒙皮後質感大幅提升。


只要鋪上薄毯就能馬上躺平,床板邊緣被包覆後,也可避免傷到內裝。

當然泡棉愈厚愈舒服,但會占去更多空間,床板+泡棉+包皮,厚度約51mm,我覺得算是強度、舒適、收納三者的平衡點。

另外,MAZDA 5空間雖平整,但水平差強人意,以水平尺測量的結果,從第二排頭延伸至行李箱尾,其實會有6cm左右的高低差,大約2.7度的傾斜,平躺會有點頭高腳低。

剛好在回收站找到報廢的鋁合金型材,長度切成114cm。

然後將木塊打洞後,固定於兩端來加高(型材+木塊=6cm高)。


再置入車尾最寬處,放上床板剛剛好。鋁合金承重力極佳,且重量不到木頭的一半,但尖銳邊緣要稍微打磨,以免刮傷車上內裝。

上鋪床板
孩子覺得睡上鋪很新鮮,對我而言,格局也較好規畫,但是上鋪範圍不能蓋住整個下鋪,否則會對下鋪造成壓迫感,高度也不能太低,不然下鋪仰睡時無法彎腳,翻身時也會卡住(尤其是身材寬廣的人)。另外,MAZDA 5的車尾門在玻璃處會凹陷進去。

若能利用這個部分,空間感就得以延伸,所以上鋪的高度就抓50cm來設計。
孩子體重還算輕,就利用另一組閒置的9mm床板,最初,上鋪設計成床板前後約130cm,床板分成前後兩片,同時睡兩個孩子,後床板可以先上車就架設好,當成行李架,前床板等到要就寢時再組裝,如下圖《格局1》:

但後來發現這樣上鋪還是太長,下鋪的人要起身還是頗擁擠,所以後來決定讓孩子分開睡,其中一個床位就移到駕駛座,如下圖《格局2》:

後上鋪
床板的支撐桿要如何架設呢?接近尾門處也有行李箱固定網的溝槽,槽寬約15mm。

剛好家裡也有用不到的浴簾伸縮桿,先旋轉調整成適當長度。

然後拔下兩端的橡皮護套,鑽孔後分別加上螺栓、墊片及螺帽。


這根床桿就可以順著溝槽放置。

裝上去試一下,剛剛好~

另外利用行李廂側邊的橫桿固定槽,用一字起子撬開飾板,就露出了形狀頗方正的凹槽。

這本來就是給5人座(客貨兩用)的MAZDA 5安裝橫桿,所以具備基本承重能力,架床桿只是剛好而已,先把鋁合金型材切成約128cm,兩端稍微切削打磨去銳角。

為了取得床板的水平,先切好高度適中的木塊再鎖上,包覆EVA泡棉膠帶後,便可置入凹槽。再放塊木板到兩根床桿上微調水平即可。

接著裁切床板,剛好去Costco就順便要了一片超大瓦楞紙板。

只要畫出一半的版型即可,另外一半就鏡射過去裁切。

完成整張床板,底面釘上魔鬼氈,就能固定於床桿,以防止行駛中滑動。最後還把上舖床板切成一半加絞鏈。

折疊式較方便收納擺放,邊緣也釘上泡棉膠帶,以防碰撞。
因為怕孩子睡相差而半夜落下。

就打算以行李網做隔間,但市售行李網尺寸不合適,剛好家裡又翻出了漁用的固定網(咦...家裡連這種東西都有?)

配合孩子做手工用剩的麻繩。

以及鑰匙圈拆下的彈簧扣。

先在床桿鑽孔再鎖上羊眼鉤。

棉繩穿過固定網上側後配合彈簧扣,掛於安全帶固定部。

再將固定網下側勾上羊眼鉤,不但是簡易的行李網,急煞車時也能阻擋床板向前滑動。

我還跟孩子開玩笑說,直接拿行李網作成吊床也不錯。
上鋪支撐完全架空,不占下鋪空間,就不怕下鋪的人踢倒支撐桿,一裝上車就能當分層的行李架,就寢時只需清空行李即可,毋需另外安裝。

前床鋪
駕駛座這排沒有明確的支撐點,且原先因第二排座椅幾乎要向前推到底,所以感覺有點擁擠,但當下舖床板完成時,我發現第二排座椅其實還能退個幾公分,這樣也能為第一排爭取一點空間。確定第一排座椅的位置後,可以拿膠帶貼個記號,方便爾後直接移到定點。

支撐點分成三個部分。方向盤左側有個小置物空間,但此處已有胎壓偵測器。

只好移到它處,清出空間。

手套箱上方也有一片置物空間,左右兩側置物空間的高度差不多,剛好作為兩根支撐桿的單側支點。

但因這兩處都有置物考量,故有邊緣凸起的設計,若直接放上支撐桿,可能會因壓力過重而損壞邊緣,廢棄的舊印章就派上用場了,厚度剛好,略為切削就很適合墊高支撐桿,讓壓力分散在置物空間內。


另一側支點則分別掛載於正、副駕駛座頭枕,利用登山扁繩(拉力2,400kg)配合日字環,拉住支撐桿的另一端,還能依水平調整長度。




直徑2吋半的PVC水管,長度切好(約44cm),兩側加水管蓋。

量好水平,放入前置杯架就成了中央支撐點。

床板高度不會壓到排檔桿,離天花板也有一段距離,再拿大片瓦楞紙板來打版。

長度最後決定約135cm。

床板裁切好後鋪上去試試。

看起來還挺舒適的。

考慮到收納便利性,最後是在通過中央支撐點的部分,改成可摺疊形式,便於收納。

看來一家四口車宿MAZDA 5不是問題。全部床板收納於行李廂還不算太占空間,即便一個人也能快速架設,否則一頂六人帳+2個雙人自動充氣床墊也不輕,要一人搭設或收納也頗費時費力,重點是,車宿設備不太需要事後維護(清潔或曬日)。
不少前輩的車床作品,都是直接用角鋼或木桿做獨立床架,但這樣的設計有點複雜化,需另購材料不說,不用時在家中收納也是問題。所以不斷觀察及思考,充分利用MAZDA 5自身特性來簡化設計,才是真正的「人馬一體」。
通風(防蚊)
通風紗窗參考前輩lcy1329的作法,但有一些細節要說明。
MAZDA 5第二排窗戶的寬度是64cm左右,先到文具店買PP瓦楞板,記得買大於這個尺寸,我買的是低調黑100cm*60cm。

因為要靠窗戶往上頂住固定,記得注意瓦楞板的紋路走向,這是最基本的結構力學。先用美工刀切出四片65cm*15cm。

拿其中一片塞進車窗縫隙比一下,其實車窗邊緣不是直線,有微微的弧度,此時能用剪刀直接修剪,這樣就完成內板了。

然後內板貼上日曆紙再插入縫隙。


用筆畫出窗框的版型。

剪下就完成外板的版型,再依其裁切出外板。

先用一點點雙面膠帶固定一下,裝上車窗看是否需要修整。

沒問題就直接一次兩片都割出通風口。

舊紗網可派上用場,再用保麗龍膠黏合。

試裝看看,密合度還不錯。

光是通風還不夠,要解決下雨的問題,所以要做個窗簷。

割下的窗口剛好派上用場。

完成。

尾門安全拉桿,為了通風,最好的方式就是尾門微開,MAZDA 5尾門固定環的線徑是8mm,工具箱裡有多餘的掛鉤,配合登山吊環。

兩個扣起來就能夠固定尾門,而且登山吊環還能旋轉鎖緊。

因為我們比較重隱私,睡覺時只要有縫隙能通風就好,所以這拉桿很短,短到坊間也買不到,沒仔細瞧的話還看不出來尾門沒關,超低調。

外人也不易把手伸入或窺視,萬一長度不夠,再接上其他登山吊環即可。若不介意尾門大開,這位前輩用鐵鍊和鎖頭也是不錯的方式:
http://www.mobile01.com/topicdetail.php?f=641&t=3960046
買市售的安全拉桿真是浪費錢。
隱密性
沒人希望睡覺時被看光光,當然可以買現成的車用窗簾,但其實可以廢物利用,以前露營的舊鋁箔墊就派上用場。孩子們看老爸一天到晚敲敲打打,此時就要讓他們參與了。
以車尾門為例,先拿日曆紙貼滿車窗,讓孩子在車內拿著手電筒對著車窗邊緣照射。

那我在外面就可以清楚看到窗框的形狀。

「再往下移一點,再往右移一點,停一下~」一個口令,一個動作,就畫出了窗戶的版型。

然後以原版型往外擴張約1~1.5cm處重畫一個稍大版型。

再以稍大版型剪下鋁箔墊。

因為MAZDA 5大部分的車窗邊緣都有縫隙,鋁箔墊邊緣就能塞入,再加個吸盤強化固定,也方便拆下。

另外幾扇窗戶如法泡製,連前擋都能完成,遮蔽率比市售的遮陽鋁箔還要高。
完全不透,一點縫隙都沒有,站在外面看實在太神祕了,搞得心裡癢癢的,更好奇車內在幹嘛,另外,鋁箔墊還可以隔熱。前檔和尾門的鋁箔墊太大片,不利於收納,但下鋪尾門桿下方有空隙可供利用,鋁箔墊剛好可以置入,取用或收納皆宜。

其中一次來到海拔1000公尺左右的露營區,露營區熱鬧得跟夜市沒兩樣,我自己偷偷把車開到停車場,風景好,無光害又安靜,然後一個人悠哉地搭設車宿設備,只花了10分鐘。

因為都是家裡平常睡的棉被枕頭,不用買露營專用的寢具。

打開車尾門看看,上鋪放條Costco的life comfort隨意毯,對摺起來。

前座也是放一條隨意毯,孩子一樣呼呼大睡。

雖然有製作通風設備,但四個人一起呼出二氧化碳的暖化效果還是蠻強的,一整晚睡下來,車內非常溫暖...不知道為啥總有人說睡車上很冷。睡帳篷不是更冷?
另一次連假遠赴福壽山農場,溫度比平地低上許多,老婆還主動說要睡車上,因為根據過去的經驗,車上比較溫暖。
但之前幾次車宿的經驗也發現設備的幾項缺點,所以趁這次機會修正。
主要是窗簾的問題,原先的設計算是掛在車門再關上,換言之,有部份的窗簾會暴露於車外,雖說不會有啥變態去拉扯或割破窗簾,但窗簾是布料,遇到下雨天就有點麻煩,雨勢太大時,雨水就會順著布料滲到車內,儼然成為雙濕牌(外面濕,裡面也濕)帳篷,雖然不嚴重,但還是有進步空間。
解決方法就是窗簾都改到防水膠條內,不再外露於車門,我想到比較方便的作法就是磁吸式,釹鐵硼磁鐵就是首選。
這段時間因為幫孩子做東西,所以恁爸的縫紉功力又進步了,對於窗簾的設計又有一些想法。
先用電氣膠帶包覆,以避免磁鐵互吸而碰撞時容易破裂。

家裡不用的窗簾布要遭殃了。

把磁鐵塞入窗簾邊緣。

再車縫一下,把磁鐵完全封死在裡面。

荷蘭製的窗簾布,但若閒置不用,就比中國製的還沒價值,放手改下去吧。

沿著車門剪出版型,再收布邊,一片窗簾大約用到7顆12*2mm的磁鐵。

試裝一下看看,確實吸附在窗框上,也都在防水膠條的範圍內。

再關上門看看,看起來還不錯。

第二排的兩側車門在車宿時微開縫通風,之前老婆反應感覺有風會灌進而直接吹到頭,所以我這次也把窗簾布縱向加長。
這窗簾不但車宿可用,白天出門,孩子有時會反應烈日當頭,強光照射而妨礙午休,這窗簾也可以拿出來遮陽,但就我實際使用經驗,那個角度若被窗簾遮蔽,其實會影響行車的視角,還是不要太常用比較安全。
第一排(正副駕駛座)的窗簾也要改成磁吸式,一片大概會用到5顆磁鐵。

吸在窗框上後還可以稍微塞進膠條下側。

天窗就免了,不然怎麼觀星入眠呢?在大自然中睡到自然醒吧。
那天福壽山農場的溫度可低了,其實我心裡有點忐忑,不知道睡車上到底OK與否?除了羽絨被及睡袋以外,我還把鋁箔墊切割成床板大小,每個床位都有一張,用以反射身體散發的輻射熱。

晚上已經降到10度以下,時間還不到7點,孩子就吵著要睡覺,他們一開始聽到要睡車上就很興奮,其實就算停在我家旁邊的公園,他們一樣很High吧?孩子心目中只有車宿。

前幾次車宿有發生孩子踢到喇叭的情形,所以這次睡前就把喇叭的保險絲先拔掉。

根據標示.左下角HORN 15A那個就對了。

就這樣安安靜靜地睡過一夜,凌晨5點室外最低溫度好像是6~7度吧,大家都穿上比較保暖的衣物及毛襪,結果這一夜,全家都覺得蠻溫暖的,孩子甚至說睡得有點熱。
一整晚下來,窗戶上都是水氣,但還沒有到滴下來的地步。

膠條上面也有。

這也是沒辦法的事,畢竟室內外溫差很大,大家一起呼出二氧化碳的暖化威力真是強大,但沒有人冷到睡不著或感冒才是重點。
[總花費]
水平尺:220元
高密度泡棉(厚3.8cm):1000元(約4元/1m2)
咖啡色PU合成皮(140cm寬):680元(60元/台尺)
PP瓦楞板+吸盤:178元
木材行裁切:150元(25元/刀)
釘槍+釘子:220元
EVA泡棉膠帶:190元
0.5公尺的2吋半PVC水管+水管蓋:34元
絞鏈+螺釘:80元
床板、鋁合金型材、登山扣環、扁繩、紗網、鋁箔墊...等等:舊物利用
(沒想到家中閒置物還真多...)
工錢+經驗:無價
感想:
沒想到泡棉和合成皮的價格不斐,占一半費用,新購這種無法自然分解的石化產品是比較美中不足的部分,但我一時想不到適合的替代品,其他部分就盡量發揮馬蓋先的就地取材精神,以改造舊有物品為主,也算是DIY界的やりこみ吧。
另外,Coscto賣的Durofix電鑽便宜又好用,居家必備啊~
改車就是要獨一無二
除了車床組外,旅行時再帶個棉被、枕頭及衣物即可。出遊,簡單就好,也省去添購裝備的麻煩,露營,甚至生活,都不應淪落為物質競賽。
我們曾經載著這堆裝備去東部跨年,睡覺OK,但實務上會遇到的就是衛浴問題,男人或小孩一兩天不洗澡大概都覺得沒差,但是女人不洗澡或是如廁不便,就比較委屈了。第一夜其實因為太晚才找住宿地,東部海岸公路幾乎沒什麼燈光,一時之間找不到適合的停車場,最後睡在加油站旁邊,最起碼有廁所,第二夜就直接找露營區,有浴室和廁所,但是MAZDA 5在停車場變身車床模式,沒光害,還遠離吵雜的帳棚群,因為我們家作息是早睡早起,睡醒了就變回駕駛模式,就不會與其他露客互相干擾。
對兩個成人而言睡起來其實有點擠,翻身不易,會影響睡眠品質,尤其是穿太多保暖衣物時尤甚,若只睡一個人就很剛好,且車子空間較狹小,沒辦法像帳篷那樣站立起身,車宿設備加上保暖衣物及寢具後,就沒有太多置物空間了,所以我們家出去玩不太開伙,都是看當地有啥美食就去品嚐。
另一方面,車內床板平整度及水平度佳,而且保暖,不會被冷醒算是蠻大的優點,我老婆就很在意這件事,因為要是因為受寒而導致孩子感冒發燒,接下來父母就數夜難眠了。
其實,孩子成長快速,這套車宿設備了不起也只能撐個兩三年吧,對人生來說,時間短暫,但這回憶對孩子的影響可能很長遠。他們現在逢人就說:「我家的馬5是變形金剛,可以睡覺喔~」前陣子,孩子寫作業時用「爸爸」造句,當看到她寫了「我爸爸很厲害。」我覺得一切都值得了,幸好我在孩子心目中的形象是「很會做東西」,而非「很會買東西」。
有人說,母親負責把孩子帶來這世界,父親則負責帶領孩子認識這個世界。動手做,就是我帶領孩子看世界的方式之一。
以上,供同好參考~




















