
最近因為工作競圖方面,竟然無意間接觸了集合住宅,一直覺得這類型的建築不會這麼容易接觸到,結果竟然一瞬間殺我個措手不及。無奈下也只能臨陣磨槍,霍霍向豬羊。假日翻翻學長桌上2016TA雜誌講評台灣住宅,獎無意間提到的經典範例,就又再次回看了這個作品,也趁著機會完成這拖了快半年的文章吧。
參與了競圖才漸漸更了解對於集合住宅的限制,無論是法規、商業模式上的利益權衡,還是都市遠見下釋出的友善回饋都實實在在的決策著許多的設計條件因子,而且竟然幾乎如同戒律般的不容挑戰,彷彿能得到“設計很成熟”這個讚美就可以欣慰的交代自己,的那一絲惆悵。再次反思了自己參觀NEXT21能夠如此落實自己設計的準則與目標感到非常不可思議。雖然相對實驗性質下的權衡不能直接與所有必須面對商業導向的設計直接比較,但還是值得深思。
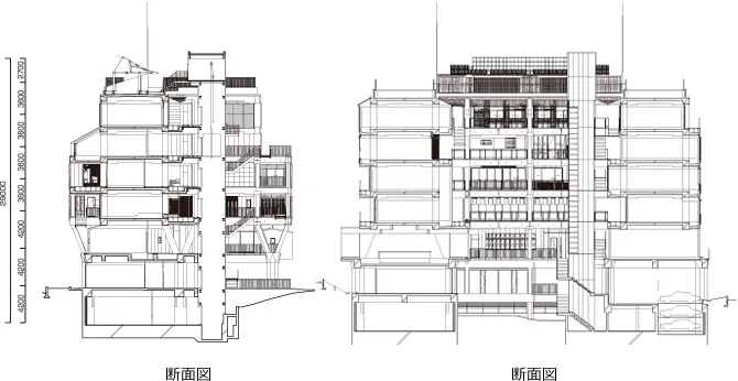
結構框架式的自由與靈活,在這RC柱樑的複合層特別讀的出來對於公共空間的努力與期許。而界定公共與私密的立面材料模矩化的系統與彈性,同時又間接界定出室內半戶外與戶外的系統。可重複使用與回收的材料,卻完全不讓建築充斥著工廠制式化的枯燥,反而是充滿著溢出來的童趣,彩色浪板更在午後的陽光下閃爍著如同這城市中的一個大秘寶。每戶單元都能享受到最大面積的採光。
大量開放的公共空間竟然還直接延伸到了二樓,走到二樓穿廊與公共平台可以讓人更了解這棟建築的野心與宣導的決心,其中更有一整個階梯教室小展覽室的program 也是非常用心,畢竟能讓一個外人走到二樓已經是非常值得肯定的。而回到一樓中最主要的區劃是一個入口人工水池小梯田的植栽造景,喬木灌木與小溪流的穿插如同古代詩人流殤曲水的畫面彷彿還能詠詩論文,飲酒賞景。傳統美學又同時結合雨水回收、微物理環境等各樣系統讓人不經打冷顫。
不同規格的單元更是充分展現了其案子對於自己彈性最大的詮釋,彷彿所有可能性都已經掌握住了,同時又要能統整其量體一體性,可以說說十分大膽的定位,而最讓我訝異與羨慕的莫過於樓上住宅的平面隨著實驗真的因為居住者的遷移而發生變動過,就好像代謝主義沒有完全死亡一樣(作者個人不精準的放大揣測),雖然過程中又多出現了一些新的系統模具,但這也是符合常理的成長對吧,讓人總感慨啟其實驗的扎實,作為實驗建築,並絲毫沒有因此犧牲住戶應有的生活品質,基地的選擇可說是非常的縝密,街角與巷弄尺度關係的拿捏,樓層高度與戶數的權衡,雖然這次去的時候有兩戶是空著的,還有一戶直接變更成了小展覽室供人認識。真的是為之可惜,或許是沒有直接面對市場導向下的得失,確切的原因就真的無法揣測了。
雖然說以結構框架下的變動與組裝還是仰賴大量資源或許不是多麼高科技的設計,而且其模矩實在是太多樣了,幾乎有失原本用意,但如果是更宏觀的一個城市都使用這系統的可能性就又完全另當別論了,只能說他們的願景真的非常大,是名副其實能媲美實驗這兩個字當之無愧。










名称実験集合住宅NEXT21
主要用途共同住宅(18戸)
所在地大阪市天王寺区清水谷町6-16
敷地面積1,542.92㎡
地域・地区第2種住居地域/準防火地域 建ぺい率80% 容積率300%
規模地上6階、地下1階
相關連結http://www.osakagas.co.jp/company/efforts/next21/home/home3.html





















