
延續上一篇【泰國建築實習】Somdoon Architects (一),此篇我會開始介紹我於2020年2月至6月在Somdoon Architects實習過程。
三、Somdoon Architects介紹
Somdoon Architects (簡稱SdA)是一家位於泰國曼谷市中心的中型事務所,辦公室位於BTS站Sanam Pao(สนามเป้า)2號出口,公司規模約35至40人左右, 成立於 2010 年,Somdoon的設計能力獲得了多項認可,其中最知名的是住宅類建築,包括多層別墅、高層住宅、中高型飯店等。

公司的名字 ”Somdoon” (中文空耳:松盹) 在泰語中,是平衡(Balance)的意思。Somdoon相信每一個項目都有不同的客觀條件與挑戰,分析周圍環境、深度調研與其他專業人群合作,為每一個項目尋求出平衡的關鍵,且生成出獨特的設計成果。

Somdoon的前身是新加坡知名建築事務所WOHA的泰國分部,Somdoon創辦人(Pee Peng)即是在新加坡WOHA公司長達8年的時間並累積豐厚的領導與設計經驗。而現在的Somdoon事務所是由Pee Peng為主要主持人和另一位合夥人Pee Benz共同經營,Pee Benz是Somdoon的元老級建築師,最早於2009任職WOHA的泰國分部。

公司的組織如圖所示,主要由剛才說過的兩位泰國一級建築師為總建案之負責人,每個案子都會有一個Project Team,且照著project的大小會分配人數和PA主管或PA助理數量,一般案子多是一個PA配2個team members,但如果該設計建築面積過大或如競圖有時間上的期限,老闆會再評估並分配2到3個PA和7到10人不等共同完成。Somdoon也有自己的室內設計部門,會配合Project來分配哪個室內設計師設計,但大多的是室內設計師和PA主管需同時管理2個以上的案子,我在實習期間大約10到15個案子在跑,有些是剛在DD、CD有些則是已經CC上的微修改。

事務所的環境是上班期間都會開冷氣、光線充足也有對外窗、窗外景致也蠻美的,我猜事務所應該是由舊建築改造成現在的模樣,一樓剛進門即可看到桌球桌,旁邊是會議室、行政人員辦公室和廚房,平常同事下班或午休都會來打桌球,武漢肺炎疫情不嚴重時,同事還約我一起去朱拉大學打網球,後來因為疫情越發嚴重緊急關閉學校致8月,同事之間的感情其實很好,老闆也有意經營像家人的那種感覺。
二樓和三樓都是辦公區,二樓有很大部分的挑空,上下兩樓的員工有時就會直接跨樓層呼喊對方,我覺得整體泰國事務所的氣氛非常活絡,還會開彼此的玩笑,有一些泰國事務所還會帶實習生看景點、看案子或著下班後彈吉他唱歌玩遊戲,這蠻不像我在台灣實習過的模樣,我遇到的台灣事務所都蠻嚴肅的,工作期間也幾乎不開玩笑、不聊天,下班也不會有交集。
我覺得SdA老闆蠻信任實習生和員工,同事之間也會聊要如何改進畫圖技巧、討論最新版的軟體、關心設計上的進度、邀約一起打球吃飯聊天等,我的mentor也有跟我聊他覺得老闆人很好願意給員工設計,且不會大改動設計、環境也不錯、地點也便利、除了薪資少了點XD。
四、任職期間工作內容
接下來是我任職期間的工作內容,前半部分我都跟著我的advisors---Pee Pong 和Pee Noon 一起畫位於南泰普吉島上的4棟6層住宅建築圖,我們基本上都使用Revit畫建築圖,包含樓梯平立剖、RCP、FFP、Door and Window Schedule 等等圖面,對於BIM的使用更深的了解。但同時因為受到武漢肺炎的影響,泰國疫情嚴重爆發的期間是在於3月到5月之間,當時普吉島面臨封島的困難,所以整個案子到3月中就慢慢停擺了,到了4月中因為沒有建築圖可畫,所以我換到幫忙Pee Noon宣傳Somdoon的作品,主要是做英翻中並了解Somdoon設計手法和技巧,Somdoon是因應客戶需求而做的商業設計住宅,同時也會考慮當地的法律規範與綠建築設計來進行規畫。

之後在某次與老闆交談中得知,他想試試非住宅和Shopping mall的公共建築,但礙於泰國的公共建築多是非公開招標,且要回饋金與黑箱作業等原因,在泰國接到的案子多是私人住宅,所以我找了當時台灣的幾個競標案給老闆,當時也找了一個台灣local建築師進行初步的接洽,後來就選定了某個高雄標案進行,之後我當任泰方Somdoon的翻譯者,主要傳達台泰之間的訊息,包含法律檢討、服務建議書書寫、建築面積檢討、綠建築設計表達等。

期間主要做:
1. Assist in the smooth development of this competition, communicate with local architects (Ho Ya Architects & Infinite Architects) and pass it on to Somdoon designers, including review of regulations and calculation of floor area ( GFA).
2. Making site analysis and green building analysis drawings of service proposal.
3. Translate the design concept in the service proposal together with Pee Win.
到實習的後段時,結束了台灣競標案後轉而幫忙Pee Tidtee修改施工圖上的剖面,接觸CC大約3週,學的並不深(so sad)。
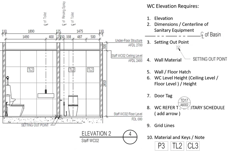
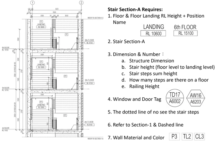
以下是實習期間做的筆記,包含Dimension的標記方式與位置,還有window and door tag、參考線、Material 的標記、平立剖圖面上應注意事項等等。




最後的這是CC圖面,這部分我覺得蠻可惜時間不多了,要不然我覺得可以好好學習施工上的繪畫技巧和知道材料與材料之間的特性,我認為這是讓建築保持外貌風華的關鍵,包含包覆系統與glass structure等細部設計。

-----------------------------------------------------------------------------------
下一篇 【泰國建築實習】Somdoon Architects (三) 將會繼續講我的實習心得與給其他學弟妹的話。

後來想想應該就是一個勁想出國實習,所以就這樣出國了哈哈哈哈哈哈哈,縱使英文很爛,但是因為英文也不是一朝一夕就可以突飛猛進的,所以語言能力還是要一步一腳印呀...




















