德鑫青玉岸外觀
德鑫建設 l 成立2000年1月17日 l 總部地址位於新竹縣竹北市。目前主要建案為竹北、臺中、彰化等地為主。子公司翔鑫建設、巨寶建設、順昇營造
德鑫青玉岸
7期重劃區具有重大建設聚集、道路系統完善與公園綠地多等條件,是台中市屬一屬二的優質住宅區段。
「青玉岸」位於7期西側區,基地3面臨路,主力規劃50~63坪、3~4房大樓住家、戶戶3面採光,全案配置機電預警控制設備。
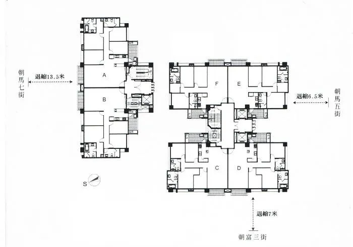
德鑫建設「青玉岸」位於朝馬7街、朝富3街與朝馬5街口,沿朝馬7街步行2分鐘有潮洋環保公園。基地距離朝富路約50米,朝富路轉市政北六路騎機車1分鐘可達老虎城購物中心、轉市政北七路至新光三越百貨公司開車2分鐘,或由河南路至逢甲商圈約4分鐘車程。朝富路可銜接中港路,連結中山高中港交流道與中彰快速道路。
「青玉岸」基地面積730坪,為地上14樓、地下3樓的大樓產品,基地3面臨路並各有退縮,面臨10米朝馬7街退縮14米,規劃門廳、迎賓迴車道與地下室車道。1樓零店面、挑高3.6~6.3米,中庭約300坪,有景觀水瀑牆、Lounge Bar、視聽室與健身房等公共設施。大樓採獨棟、工字型建築格局,戶戶3面採光、深窗節能設計。
「青玉岸」標準層4~10樓,面朝馬7街獨棟大樓單層2戶,每戶63坪、4房格局;工字型大樓每層4併,50~56坪、3~4房。11~13樓為合併戶,最大達125坪,可規劃5+1房。14樓為6米合法樓中樓產品,坪數72坪、每戶4房格局。4房以上住家廚房配置中島;衛浴位於東、西2側,提高通風採光。全案配置機電預警控制設備。
「青玉岸」位於7期西側區內,產品規劃3~4房,訴求中產階級的換屋客層,優點為戶數單純,每戶住家3面採光,且德鑫建設在7期小有名氣,對產品有加分效果。缺點為出入動線臨10米朝馬7街,路幅不大。

物件基本資料:
建設公司: 德鑫建設
案名: 青玉岸
位址: 基地位於西屯區朝馬七街32-36號,近朝馬5街
基地面積: 730 坪
坪數: 50 ~ 125 坪
主要結構: RC鋼筋混凝土結構
格局: 3~5房 4~10樓面朝馬7街獨棟單層2戶63坪4房;工字型大樓每層4併,50~56坪、3~4房。11~13樓合併戶,最大達125坪5房。14樓為6米合法樓中樓72坪4房

戶數: 76 戶
樓層: 地上 14 樓、地下 3 層
公設比: 31 %
管理方式: 24 小時警衛管理
管理費: 約 60 元/坪
學區: 黎明國小、黎明國中
公園: 潮洋公園,秋紅谷生態公園
市場: 南屯商圈,走路7分鐘就有楓康超市
管理室電話: (04)22587373
建築完成日:2009 年 02 月

周邊商圈及區域行情




















