第三年_工作還是蠻硬的一年
主要是去年運氣很好過了一科大設計,所以就是咬著牙認真準備,這一年真的很拚,每天6:42起床爭取可以一天一小時的看書時間(早上較不容易被工做的事情打斷或阻礙),也再次感謝所有借我筆記與資源的學長學姐與朋友們。
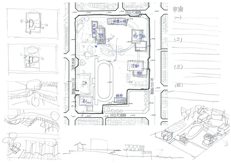
敷地設計
四小時畫圖雖然沒有八小時這麼累,但這個時間超級趕,消耗的能量我覺得未必輸大設計...。前幾次分數都低到報炸,自己都搞不清楚為何...,但因為我手腳超級快,基本上乍看之下的完成度應該不會輸給大設計,老實說我自己都不知道怎樣會過怎樣不會....,但可以確定的是多畫一定會慢慢進步,我第一年第一次連圖的題目第二年還有畫過,應該可以看出思考的模式很完成都還是有差。設計思考
因為通常尺度較大,很容易不小心失真喪失比例感而不和諧,我通常都會先認真想一下這個基地條件或是PROGRAM,有沒有跟我曾經去過的地方或是看過的案例很像,用腦中的案例組合起來。
是比較都市呢?還是郊區或是保護區等等?植栽是很都市感還是鄉下野野的?腦中有了畫面後再配合基本的物理環境、街道巷弄人車等關係決定好大方向,通常題目都會有一些暗示要你回應。
申論題
建議先將想到的關鍵字寫起來,自己習慣都是用列表或是樹狀圖配合一些小插圖去書寫,畢竟也有暫一定比例的分數就努力寫好寫滿吧,因為很不擅長這一塊所以如果比較不會寫我就會把敷地題目的等角透畫大一點....減少版面以免看起來很空洞...
顏色色調
鉛筆稿完成後我會先尚代針筆,接著依序是色鉛筆、麥克筆、補充說明文字(飽和度低一點的原子筆皆可,盡量統一格式,例如標題加框框、重點加底線等等)這邊提供一下我比較常用的色號,這些都是各個前輩們傳承下來的寶貴密技。
因為大小設計還是有一些雷同之處需要注意的地方,大家可以自行看上一篇"無補習準備建築師考試(上)",有任何想問的問題都可以留言我在做補充喔!!!



第一年畫的敷地可以說是慘不忍睹,第二年剛好畫到一樣的題目有稍微可以比較回應道題目與時間掌握較成熟。考試還是需要稍為的練習與策略,我覺得雖然說絕大多數時間都蠻無聊蠻不真實的,但多多少少還是有一絲絲值得享受的地方吧....。





結構
這一科準備起來最不踏實,真的是為了考試而準備...很認真看完結構後其實對設計和工作還是有一部份一點點的幫助吧!!一些基本的常識的建立也不會讓自己看起來發育不平衡....這個真的給不了什麼好建議
推薦書籍"圖解建築結構力學入門"(系列都可以看一下)
第四年_壓力的來源應該是不想重考與再拖下去吧
環控
因為這時候只剩一科,且已經沒有退路了(第四年),所以幾乎網羅所有補習班講義(這個幫助真的很大)、各種課外漫畫讀物和海量的考古題(有選擇題的年代都寫完了...),基本上就是一周至少看4天,每次一小時的節奏,也有花時間練習申論題,然後阿摩線上測驗可成也很有幫助!!其他就當雜書東看看西看看了。日本的圖解系列其實有一些和台灣的法規不太一樣,但也可以看到在意的點的不同也是蠻有趣的,對整體理解能力還是有蠻大幫助的~
推薦書籍"圖解建築設備練習入門"、"圖解建築物理環境入門"

準備考試的方法和時間安排也是千千百百種,補習或是自急準備,全職考生還是邊工作邊準備都有各自的壓力和難處,但特別還是學生時期的話其實自己覺得不用把建築師考試列為自己的終極目標(早考到也是擺著曬太陽而已?),好好享受學生做設計無憂無慮的樂趣與掙扎吧!!!!
這邊也祝所有準備考試的大家都能金榜題名,事事順心!!



















