




Q:請問本案設計理念為何?
以輕盈為起點,適切微調家中各區域,強化過去所缺少的機能性,但仍不失一個家的溫暖調性。將廚房隔牆卸下、縮減廊道寬度,以便爭取更寬闊的餐廚共享時光;公區中植入半高牆,圍塑出可簡易在家處理庶務的工作區。回歸居住上的舒適度,貼近每個使用情境上的便利性,為屋主實現「從心出發」的愜意北歐宅。

Q:本案配色的原則與想法?
白潤澄淨為基底,調入溫潤木色與帶有特殊肌理的仿清水模塗料,勾勒不同層次的灰,呈現溫雅柔和氣息以及輕暖氛圍,引入煦煦光灑,透過百葉穿透而映照於屋內,帶來暖意也挹注敞亮。畫龍點睛的藍色折線,牽引著視覺動線,型塑有如框景般的美感,產生前後遠近的景深效果,也為單純轉折之處帶來變化的樂趣。

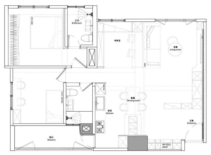
個案基本資料
新北三峽 / 屋齡 16 年 / 電梯大樓 / 室內 27 坪 / 格局 2+1 房 2 廳 2 衛 / 居住人數 2 大 2 小

< 屋主需求 >
• 明亮輕盈的北歐精神
• 結合中島的開放式廚房
• 打造一間娛樂室兼書房
• 整合全室收納櫃
< 各別空間 >
1. 玄關設計:
落下灰色六角磚,以輕快視感鋪敘踏入家屋後的軸線,因應男女屋主的職業所需,擴大落塵區以便裝設衣櫃,吊掛外出工作須穿的西裝,或是卸下返家後的相關防疫隔離衣。

2. 客廳設計:
率性塗上仿清水模塗料,深淺有致又夾帶獨特質感的流紋與分割線映現於立面,散發穩歛灰度氣韻,一側緊鄰玄關相偕而來的直立櫃,再輔以預先抓好音響高度的弧形量體與層板。

內凹弧面的白色修飾板材接續電視牆的收尾,佐入透明玻璃櫃,收藏高低錯落的酒瓶身影,形成客廳裡一道可隨心擺放的端景。

輕淺木系地板切換地坪屬性,使家的氣息增添溫樸雅致感,換下原先略顯破損的卷軸式遮簾,改以清爽白系的百葉捕捉漫淌入內的柔光,照亮敞闊客廳。落下一席與背牆同寬度的灰色布質沙發,角落懸垂一盞暖黃吊燈,為素白基底的空間挹注些許暖意。

3. 餐廚設計:
主人原先對於是否要卸除隔牆猶豫再三,但拆撤後所延伸出的流動感與悠敞尺度,更能契合北歐宅訴求的無拘無束,少了牆體限制,多了居住上的便捷與自由度。

為了使原先一字形的廚區有更寬敞的運作餘裕,加入緊連木質餐桌的大理石紋檯面中島,可當作備料或輕食區。白色潤澤感的亮面鐵道磚,呼應公區的用色原則,新增電器櫃的作法,則大幅提升廚區的使用機能性。

鐵灰色地磚區劃廚區範圍,妥善安置冰箱與各式小家電,按部就班收攏每項物件,型塑整潔有秩序的家景,一氣呵成串起客餐廳與書房。

剛好有一大樑橫越,恰好成為客廳與書房的隱形交界,樑上安裝可調節燈距的磁吸式軌道燈。筆直的深藍折線隨著轉折處勾勒出框線,有如框景般的存在,增加變化趣味性。
樑下空間設以空櫃,當作書架或陳列收藏小物,幾何方正外型呼應全室表現的俐落線條感。
5. 主臥設計:
簡淨留白的睡臥眠區,床頭處揉入大地色系的木紋床頭板,成功避開床頭樑壓的疑慮與不適感,也提供放書、香氛瓶、手機等隨身小物的平台。

6. 走廊設計:
縮減廊道寬度,從 120 公分減為 90 公分,以利擴大廚區的面積,擺得下體積較大的冰箱。洞洞板的出現,一來弱化走廊的深邃感,二來也可靈活作為吊掛衣物所用。


< 總體規劃 >
7. 家具配置:
客廳以暖灰色布質沙發搭配雙圓茶几,書房則挑選符合人體工學的奶茶色皮革單椅,木系藤編椅為餐廚區帶來樸質氣韻。
8. 燈光設計:
嵌燈與磁吸式軌道燈相輔相成,作為屋內主要照明來源,公區角落一隅映現柔光的吊燈,增加溫柔光氛。

設計公司‖琍旭空間設計
設計風格‖ 北歐、混搭
設計工程‖ LSH Design
建案地點‖ 新北三峽
房屋性質‖ 中古屋25坪 屋齡16年
主要建材‖ 木皮 烤漆 Pergo木地板 Cleanup
設 計 師‖ Eric LSH


















