
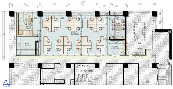
地點:台北市大安區和平東路科技大樓九樓
設計時間:2007.07-2007.08
施工時間:2007.09-2007.10
資訊工業策進會國際事業群這個案子位於和平東路科技大樓九樓,是我在築靖團隊第一個室內裝修案,本案業主的作風是比較傳統保守的,因此本案的主軸以簡單、乾淨、簡約的現代風格為主,並在幾個主要面向加入少許的活潑元素,以求突破以往資策會科技大樓的作法,塑造出本案自我的風格。

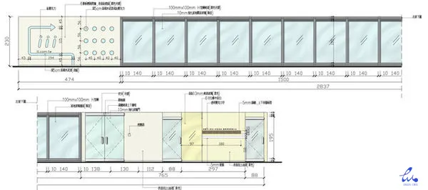
入口走道面原本最初的構想是以H型鋼加玻璃來表現出帶有點粗獷的感覺,但是H型鋼預算造價太貴,經過與鐵工師傅協調建議後,利用扁鐵彎折出H型鋼的樣子來與5mm+5mm的強化玻璃搭配作一結合,沒想到效果比預期好;入口區是本案另一個重點,我們在此區加入了一些普普風的元素,加入黃色的天花、牆面與綠色的烤漆玻璃及幾何的元素,將整個事業群辦公室入口強調出來。

會議室、主管辦公室及檔案室是以傳統現代作法,不多加任何花俏的設計元素,以求莊重、穩重的感覺,在會議室與辦公室牆面間以垂直、水平線條的分割手法搭配白橡木貼皮呈現出乾淨、簡單,且牆面的玻璃層板可擺設盆栽,以最自然的手法產生生動活潑的效果。

辦公室的柱子處理手法,是以仿金屬板來設計,與走道面的金屬玻璃框的手法相呼應,粗獷又不失簡潔。最近在走道面後面的牆面以網際網路較活潑的設計手法來呈現,以事業群的網址文字加入一些圓動、箭頭符號及搭配投射燈,產生本案另一特色。
























