應該部分人也會遇到這狀況,買完房就沒有錢裝潢了,而我表弟就是一個例子,將就住個幾年才有預算繼續裝潢,這次就是要來分享他們的舊家重新裝潢!以下交由我表弟分享:
當初光買完房子就掏空了我們的口袋,沒有預算可以裝潢,一直湊合著住,直到小孩出生,希望可以給家人更好的居住環境,這才打算給舊家一個全新變化讓生活起來更加舒適。居住者有我、我老婆、我媽、小孩和歐A(貓咪)。
┃裝潢前的照片
▼房子內沒有一個正式的玄關,所以我們鞋子都擺在門外,門面實在很雜亂…

▼正在打包搬家中,挪出房子裝潢。

▼當初只有牆壁粉刷打掃乾淨就入住,完全零裝潢!

▼燈具是沿用舊屋主的,款式不愛。

▼櫥櫃也沒有換繼續用,顏色材質看起來都很像老廚房。

▼浴缸用不到變成雜物堆。

┃找設計公司
這次裝修後應該會住很久很久,所以特地找了設計師幫我們規劃。從網路上找了很多喜歡的作品,洽談了三家設計公司,最後選擇這間麥田室內設計,因為我們與麥田的設計師頻率最合!在談房子哪裡想做什麼裝潢的時候,設計師真的很像有讀心術,每句話都說得超準的!回家我和老婆和我媽一起商量,發現我們三人都很喜歡麥田,於是決定交給他們,隔天就簽約了。
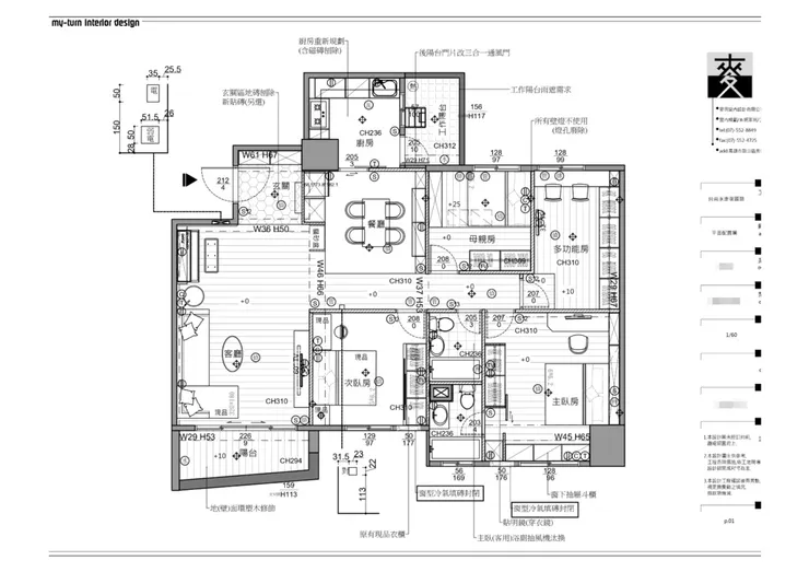
▼平面配置圖

▼3D圖





┃房子裝潢中
這次裝潢我們應該永生難忘…因為暫時租的房子,因為房東要出售我們必須搬走,太臨時了所以只能住回正在裝修中的房子…真的很辛苦做什麼都不方便,不過很感謝工班願意配合,還先趕工一間廁所給我們用,每天結束現場也清得很乾淨,真的太感謝了!!



▼住在裡面也有個好處,就是看師傅施工很方便,每天都在現場監工。


▼高級感人造石流理台!

▼全新櫥櫃、全新瓦斯爐、全新抽油煙機。

▼下方櫥櫃做了側邊的拉抽屜,以後拿醬油、拿醋等等調料瓶很順手。

▼裝好清理好當天我媽就用了起來,應該是史上最快速的入住了吧!

▼平釘天花板,只做客廳,其他空間維持原樣。

▼左邊是木作修飾(開關箱及弱電箱),右邊是安裝系統櫃。

▼設計師推薦用歐洲進口EGGER系統櫃,陽光稍稍灑落,質感很好!

▼玄關屏風。

▼電視牆上了特殊漆,特別大器。

▼房門沿用,重新噴漆。

▼王牌隔音氣密窗。

┃裝潢完工開箱
由歐A帶著大家一起開箱!(歐A:follow me)

◈玄關◈
我們家終於有玄關了!感嘆感動感恩!
鞋櫃高度一直到樑柱,收納空間非常大,左邊櫃子設計師做了斜角設計,留了一個空間可以放水壺、放鑰匙等等,而且看起來也不會太滿,整面牆都是櫃子。

▼地磚是我媽選的,說深色耐看也耐髒,帶點花紋也很好看有層次變化。歐A也很喜歡哈哈!

◈客廳餐廳◈
開放式公共空間,屏風做了空間區隔,進門不會直接看到餐桌。

▼屏風背面做鏤空,保持通透的空間感,底下空間會放置歐A的貓砂盆。

▼全部空間都鋪了木地板,氛圍感很溫馨。也裝了家庭戲院音響組,以後我們全家都能在客廳一起看影集。

▼沙發是我們原有的,吹著冷氣坐起來更舒服了。

▼來到餐廳。溫馨舒適的用餐空間。電器櫃也做足。

▼另一邊是收納櫃和食物櫃,中間是小吧台,有插座可以用咖啡機等等。兩側櫃門用透明玻璃,可以放一些常用的物品,要用的時候一目瞭然不用找!

▼再來帶大家看房間。房門只是換個顏色,質感跟著提升起來!

◈主臥室◈
空間層次變得很豐富,跟以前一片白色的房間差很多。

▼不說真的以為在住民宿!生活氛圍感十足!


▼我超愛這組量身打造的書桌櫃,超美超有特色!開放式的架子也不會有佔據空間的壓迫感,偶爾在家工作一下子變成了享受!

▼這組衣櫃與衛浴門也很值得分享,經過設計師的巧思,將門與櫃融為一體變成一大視覺重點也兼具功能性。除了收納,也避開衛浴對床的風水問題。系統櫃結合木作(木皮框架造型+木作推門+系統衣櫃),減少油漆花費也能縮短施工時間。


◈媽媽臥房◈
她喜歡和式臥室,所以設計師架高做了整層床板,底下是抽屜可以做收納。

▼捲簾+氣密窗。

▼床板和木地板是一樣的款式,一體性十足!床頭也做了雙切開關,可以直接睡覺關燈很方便。

◈其他房間◈
做了簡單裝潢,衣櫃、木地板。


以上是我們的舊家變新家,分享給大家!渡過了一邊施工一邊生活的日子,後面感覺一切困難都難不倒我們,裝潢後的新家住起來格外幸福,也祝福大家裝修都能順順利利!
相關資訊
格局:大樓四房二廳二衛
坪數:35坪
屋齡:17年
裝修費用:230萬
裝潢細項:
·地板工程16萬2千
·王牌氣密窗12萬
·水電工程(含浴廁翻新配管、裝潢配電等) 14萬
·西班牙進口ROCA 衛浴設備(二間浴室)14萬2
>設計師套裝優惠組(設計師訂才會有優待)
·燈具工程5萬9
·進口磚|浴室泥作防水基礎、貼磚(含磁磚)19萬9
·廚房L型廚具(林內牌設備)+餐廳區系統餐櫃及電器櫃23萬
·冷氣28萬6
·油漆工程28萬(含前後陽台)
·系統23萬
·其他都是木作裝潢及木作天花板(浴室也有天花板)45萬2
設計公司:麥田室內設計
地址:高雄市鼓山區美術南六街38號
電話:07 552 8849
























