分享我的鐵皮屋Man Cave!
┃鐵皮男人窩的由來
有感於爸媽年紀逐漸年邁,去年開始幫忙家業,但也產生一個常見的問題:一代與二代理念衝突,和我爸在工廠也吵、回家也吵,我實在不想把氣氛和感情搞得這麼僵,所以我決定搬出去有個距離美,也讓雙方有個冷靜期(眼不見為淨😂)手上差不多有200萬預算,原本打算買個小套房,只是剛好整理廠房時,發現有個閒置儲物的半廢棄空間,靈機一動!如果我整理起來裝潢一下,不就可以住了嗎?而且空間也比套房大很多!
┃原屋況現有問題
1.鐵皮屋隔熱差、生鏽。
2.廁所地板太高、天花板太低,老舊且沒有乾濕分離。
3.窗戶老舊且不隔音。
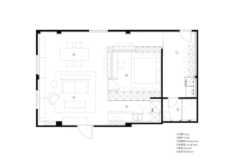
4.空間寬敞但無良好的空間配置及動線安排。
5.原始地磚老舊不堪使用。


┃找設計公司
設計公司一般都是裝潢房子,一開始想說鐵皮屋應該不好找到甚至找不到設計公司願意承接,後來朋友介紹他的同學,認識了這位亞筑設計的年輕設計師小葉,想法很豐富也很活躍,在國外留學過看過滿多車庫、貨櫃屋改成的房子,所以和我很有共鳴。
他還畫了一份圖紙給我,看完我立刻決定、我要做!太讚了!

┃設計概念
整體空間設計以木盒子為空間的核心,其他空間如客廳、餐廳、廚房、玄關則環繞在木盒子四周。而木盒子的設計是以百寶箱作為想象的概念,利用方形體塊內的虛實空間設計成一個臥室,包含了大容積的收納,並整合了床台、衣櫃、書桌、冷氣、收納櫃的功能,外觀方正,櫃體打開後的收納量驚人。


┃基礎工程
預算大約是200萬,其實差不多有一半都是用在翻修的基礎工程,而基礎工程以外,比如硬裝、軟裝、衛浴設備、廚房設備等等,小葉是盡量控制在剩下的預算範圍內,幫我全部完成!
基礎工程如下:
1.全屋的電線水管老化,需要全部換新。
2.廁所因為原本只有馬桶,小葉將廁所全部拆除以及重新劃分淋浴間和馬桶區,並增加排水高度。
3.屋頂和牆體增加隔熱隔音層。
4.從一樓到二樓的鐵樓梯也因為老化,除了鏽蝕,扶著時也會搖晃,為了安全和美觀考量,需要重新製作。

直接快轉來到反差極大的完工>>>>>
┃鐵皮Man Cave完工開箱
完全是震撼爆改!翻天覆地的改變!爸媽來看過也驚訝變化之大,沒想到自家廠房還能這樣變!

因為預算緣故,保留了鐵皮屋局部原本的樣子,新舊結合,打造出我覺得很有趣的住宅!

再來鐵皮屋最擔心會熱的問題,我可不希望未來冷氣開很兇,所以小葉在天花板和牆體加強隔熱。
1.天花板進行隔熱處理,鋪設隔熱板。
2.舊牆體拆除,將新牆體進行加厚的設計,加入隔熱層。完工後看得到新牆體,也能看見鐵皮屋架構,產生新舊對比的碰撞感!

做完之後進去有感覺至少低了2-3度!沒有像以前一樣很像烤爐又悶又熱。兩扇新鋁窗和屋頂兩個天窗,鐵皮屋空間高挑寬敞明亮,住起來其實很舒適。

我自己有收藏一些中古家具,這次搬了一部分來我的專屬Man Cave!由小葉進行挑選及搭配融入到設計中。整體空間我不能說出是哪種特定風格,小葉說是折衷主義的風格,感覺很藝術XD就是喜歡什麼都來一點比較自由,但組合起來我非常喜歡,色彩和變化度很豐富!

用軟裝家具為主的設計可以給公共空間帶來更多的靈活性,住久了我想要改變調整也很方便。




餐桌當初一看就很喜歡它的深沉感,內斂穩當,放在家裡其實滿大器的。

然後我女友看到說,椅背捲起來好像捲尾草,側面看還滿可愛的,穩當的漢子也有點少女心🤣

現代感金屬吊燈、金屬落地燈,來點陽剛感,整體多了一份個性!




旅遊時我有買些小物件當紀念的習慣,小葉幫我規劃了一面格子櫃,可以當展示也能當收納櫃、書櫃。

CD架,放置喜歡的音樂集。


偶爾會做西餐料理,和女友吃個浪漫的兩人晚餐或是招待朋友,有個稱手的一字型廚房很方便。以黑色櫃體搭配不鏽鋼台面的設計,乾淨利落好整理,收納則是以多層抽屜式的設計,讓不同大小的鍋具及物品可以分門別類的進行收納。



原本地板是老式瓷磚,局部沾了油漆又泛黃,修復不如整個換新。地材的部分,小葉幫我用強度高、好整理的白色素面石英磚,放大空間感受,廚房則結合設計選擇了活潑的湖水綠釉面磚,與黑色櫃體做結合,讓廚房空間乾淨利落,又有質感。

從餐桌直走過去,拉開拉門是出入玄關。這裡配置了頂天的鞋櫃和收納櫃體,也整合了洗衣機與儲水式電熱水器的空間,因為原本的鐵皮屋沒有瓦斯管線只能用電,整體俐落與黑白色系搭配簡潔有力。



另外也新增一個盥洗區域,因為廁所空間有限,小葉將洗手台移到走廊做更順暢的空間利用。

淋浴間結合玻璃隔間及天地牆馬賽克磚的乾濕分離設計。


廁所門檻則是小葉的巧思!採用局部石材的做法提升細節的質感,超級正中我心!就是很愛這種小細節!

最後是這個很有存在感的木盒子,這是我的臥室!
這設計超酷的!小葉把房間變成一個大木盒子,裡面藏了床、衣櫃、書桌、冷氣等等,什麼都有!不只收納超強,還能隔絕噪音,讓我在裡面也能好好放鬆休息,不受打擾。
木盒子外面有部分也是收納櫃,就像是一個多功能的收納神器,打開滿滿的儲物空間,還在想什麼時候才能塞得滿😆

點綴兩顆金屬壁燈很有特色。

進到屋內,其實白天採光非常好,光線來自於鐵皮屋兩扇鋁窗和屋頂兩個天窗。



裡面兩側都做了衣櫃,收納空間超大,可以把衣物擺放得井井有條,讓人看了心情都好了起來。

晚上開著檯燈,散發著柔和的光線,感覺躺在床上看書或滑手機都很放鬆。插座面板也搭配設計使用銀色金屬感面板。

┃感想
真的是變廢倉為寶屋!美中不足是浴室需要繞一下,但受限於原先管線規劃,現在這樣已是最佳解,有這樣一個約30坪、空間寬敞、功能齊全的房子讓我一個人逍遙自在,和我爸的關係也獲得緩和!我已經很滿足了不能再貪心了XD
另外也很感謝小葉幫我打造這麼棒的住家,不然當初只有想法卻不知道如何執行很是頭痛,也很慶幸最後是由小葉接手我的案子,他的設計不僅讓我感覺到美感美學,更我感受到他對居住者的生活品質想得多全面,他會在意我住起來舒不舒適,舉凡採光、通風、隔熱,甚至是噪音等等都設想得很周到,這種細緻度真的是量身打造!相信不管是經過10年、20年,這間房子在我心中的驚艷絕對是永不褪色!
最後也希望這篇文章能帶給大家不一樣的裝潢想法!
┃裝潢資料
屋型:屋頂鐵皮屋
屋齡:30年
室內坪數:約30坪
總工程造價:約210萬不含軟裝家具
設計師:小葉-葉昭甫(亞筑室內設計)
地址:台南市東區崇德一街72號6F
電話:06-2602776
Instagram:www.instagram.com/artru.design/
Facebook:https://www.facebook.com/ARTRUDESIGN
官網:https://artru-design.com.tw/
┃施工項目
1.打除工程
舊廁所打除
拆除原始老化蛀蟲牆體,舊門窗
2.水電弱電工程
廚房上下水工程,洗手台上下水工程
廁所蓮蓬頭、馬桶工程
洗衣機/電熱水器上下水工程
全室開關插座電源線路工程
3.軟裝家具
沙發*1組
宜家組合書櫃*3
餐桌椅
茶几*2
CD架
實木椅*2
沙發後櫃
電視櫃
4.木作工程
天花板隔熱層
全室木作牆體
木作廚櫃
木作鞋櫃收納櫃
木作木盒子(衣櫃收納櫃書桌床台門片)
5.防水工程
廁所防水
6.泥做工程
廁所泥做牆體洩水粗胚打底整平
廁所瓷磚鋪設
全室地磚鋪設
廚房地磚壁磚鋪設
7.衛浴設備
廁所洗手台龍頭,淋浴間花灑,馬桶
四合一冷暖風機
8.石材工程
入口戶碇
廁所戶碇
9.冷氣工程
客廳冷氣
臥室冷氣
10.鐵件工程
金屬樓梯工程
廚房不鏽鋼台面
鐵皮頂覆蓋工程
11.油漆工程
全室牆面白色油漆
木盒子處大古保護漆
12.燈具工程
金屬吊燈
金屬落地燈
木盒子壁燈*2
全室崁燈及基礎燈具
13.玻璃工程
木盒子玻璃隔間
衣櫃穿衣鏡
淋浴隔間門
鏡櫃明鏡
14.全室細部清潔/裝修廢棄物清運
15.窗簾工程
白色百頁簾*3
紗簾*2
16.輕鋼架工程
17.鋁窗工程





















