這個案子是台北市一間小坪數案件,
玄關穿衣鏡右邊是鞋櫃,穿衣鏡前是可當作穿鞋椅的上掀收納櫃,
可以收納安全帽等,
左側牆面設計成下半截是玄關這邊可以開啟的收納櫃,
上半截是裡面房間的收納,所以背面貼鏡增加玄關的防大感.
櫃內除了放鞋層板~也附吊衣桿吊掛外出服,
每一片層板都可以做高度微調,
因為櫃子側邊有排孔~每3.2cm就可以調一格~從上到下,
這裡使用比較多鏡子~除了可整理儀容~也兼具讓玄關放大的功能,

小坪數的格局通常廚房會規畫在入門處附近,
所以從玄關的這一頭往內看,
可以看到廚房的工作區,
廚具也是我們重新幫客人規畫的,
你可以看到走到右邊有高身的電器櫃,
左邊則是按照客人量身訂作的超優質廚具.


廚具懸空的吊櫃~
採用無邊框鋁框白色烤漆玻璃門片作為面板~(不是白色結晶鋼烤)
因為白色烤漆玻璃門比結晶鋼烤耐刮耐磨,
同時更容易清潔以及保持潔白晶亮,
玻璃面效果更佳,
同時平整度遠超結晶鋼烤,
原本建商附贈的廚具小小套(因為部份空間還空出來要放冰箱)
但屋主完全不考慮的退了建商的廚具,
又找到我這廚具&系統家具的收納達人,
所以我將冰箱的位置重新規畫到水槽右邊,
這樣才能呈現如此大器的新廚房空間.

水槽的右邊檯面邊緣,
我們裝置了一片安全強化玻璃,
讓水槽的水不會噴濺到屋主心愛的冰箱,

像這樣冰箱就不會濺到水花了,

廚具除了好看漂亮之外,
收納五金功能更是一項很重要的元素,
從這側面圖~你猜看到了幾件五金呢?

接下來讓我一一為大家介紹,
首先看到的是緩衝軌道式鋁抽,
而鋁抽最上層是一體成型的刀叉盤,
便於刀叉,筷子,湯匙,等餐具分類收納,
旁邊同時拉出來的是調味料拉籃,

在下層的則是加了圍桿的加高是鋁抽,
順道一提~鋁抽是看不見滑軌軌道的,
這張應該可以讓大家看明白,
以後就不會鋁抽&鐵抽~傻傻分不清楚,

由於屋主的需求,
我們幫他做了一個隱藏式的伸縮輔助桌面,
當你有需要的時候,
就可以把檯面做延伸,
不用時收回去,收回後完全感覺不到他的存在,

然後碗盤收納的好幫手當然不可少的,

鍋碗瓢盆收納的好幫手,

看過來這邊角落的門板..........

先把門板拉出來,

然後門板往外轉個角度,
這樣櫃子轉角深處的拉籃就都呈現在你眼前了,
好用,

你所看到的所有可動式的五金,
通通在開關時都具有緩衝的功能,
緩衝的意思就是你隨手一推,
在這些五金快要合起來的時候,
通通都會煞車減速,慢慢安安靜靜的閉合.
接下來再看看水槽部份,
在看水槽的時候.
順道一提.
廚房的牆面我們幫客人貼上了白色烤漆玻璃,
好清潔美觀重點是不貴,
此外,
牆面還配上一些吊掛式五金,
屋主的需要都完備了,

在講這個水槽的時候,
先看一下這隻漂亮的水龍頭,
水龍頭的頭部那一截(黑線處)
可以拉出內有水管,
這就是客人要的伸縮水龍頭,
另一隻小的像是天鵝形狀的小水龍頭,
他是符合美國國家生飲表準等級的濾水器出水水龍頭.

水槽跟傳統的不銹鋼水槽不同,
這個進口水槽除了尺寸比較大,質感是不是也比較好?
在視覺上,有不一樣的感覺,

排油煙機還是櫻花超薄造型,

瓦斯爐則是黑色玻璃檯面的櫻花節能安全爐.

客人不喜歡用烘碗機........
所以這裡沒配置,
以上是按照客人需求規畫的廚房.

接著看看其他地方,

一走進客廳,
可以看到鋁框白色烤漆玻璃的緩衝式推拉門,
還有窗前小桌以及電鋼琴收納架,

窗簾採用調光捲簾,
可升可降,也可調光,

客廳採用的是白色主體的櫃子,

推拉門上方是懸空吊櫃~可收納也同時作為推拉門軌道的固定,

我們用茶鏡推拉門隱藏了廁所門,
旁邊的櫃子都是無把手設計,
前面是朋友幫我拍的太白了,顏色有點失真,
接著換我的PENTEX相機拍,

玻璃鏡面效果的鋁框推拉門,
不但是客廳背牆,
推拉門後面還隱藏了2間小孩房,
調光捲簾的調光透光效果與視覺遮蔽性真不錯,
換個角度來看,
窗前小書桌,讓你有個窗前閱讀空間,
同時享受窗外微風與綠意,
紅色的LED燈,
可以作180度的調整,
可以給右邊的電鋼琴櫃使用,
也可轉到左邊給書桌使用,

電鋼琴的架子可以伸縮,
側邊沒有滑軌軌道,
因為這裡用的是blum滑軌,
不但看不到軌道,同時還能支撐這近160cm寬度的拉盤,

真的是一分錢一分貨,超滑順暢.

拍了好多張~
多看一下吧,

你看到的這個推拉門上方的是懸空吊櫃~
設計成無把手的型式,
所以也不易查覺到那是櫃子^^
隱藏收納的一種方法,
而且平釘天花板因需要降20cm,
但這一整排吊櫃都延伸到天花板內,
所以你從外觀看起來是60cm高度的收納,
實際加上延伸入木作天花板內的20cm,
這收納有80cm的高度^^

來講講木地板,
這木地板是德國進口的超耐磨木地板,
享有20年的產品保固,
同時還通過歐盟檢測認證過^^
我原則上都會盡量建議客人我所知道的好東西,
或是有市場口碑的品牌或材料或五金,
才不枉費業主的信賴與給我們服務的機會,

鏡面牆還有鏡面推拉門,
由於要在有限空間隔間出3房1廳1衛1廚房還有1玄關,
我們也費了很大的功夫,
下圖鏡子門後又隱藏了另一個空間,

把鏡子往右推,
答案揭曉,
鏡子後面是浴室廁所,
你再把畫面捲回上一張圖片,
是不是把廁所隱藏起來的感覺還不錯!!


客廳的電視牆左半部有電源插座&電視cable插座&網路及電話插座,
左半部背面朝向主臥也是一組面朝房間的開放式書櫃,
右半部式設計給客廳作書櫃使用,
右半部的書櫃的背面(朝向主臥那一面),則又是主臥的電視牆.
同時下方我們還設計了4格放視聽電器或遊樂器或無線分享器的空間,
還有2個抽屜,
而電視牆後方是架高的和式空間,
我們採用霧面噴砂玻璃的推拉門做入口,
入口處地面那一個階梯,
每一階的檯面還可上掀,裡面一樣有收納.

接下來推開客廳背牆的推拉門,
可以看到隱藏在內的床組^^
下方看到的是書桌,
書桌的3個面通通都是開放式收納櫃,
可以收納的書還不少,
而書桌上方式床組(你一定在想床在書桌上要怎上去)

這4片背牆的推拉門是完全自由的隨你推~

這是只開單扇門

你也可以把門開的大一點
2房間的隔間我們也採用玻璃~讓視覺可以延神,
同時又可以用白板筆寫字當作記事板,
當然4片烤漆玻璃推拉門一樣可當白板使用^^
這讓常常需要在家工作的屋主有好多的記事白板^^

這是右房間邊往左邊看,

這是由左房間往右看~
這一邊有窗戶有採光~
所以2小孩房中間的玻璃隔間~
就可以讓右邊的採光進入左邊的小孩房^^
但2個小孩吵架時........
玻璃隔間上有羅馬簾~
把羅馬簾降下來就看不到對方了^^
玻璃隔間的2側都有同樣的羅馬簾^^

兒童床組的外側,
留了一條走道,
2組一模一樣的床組,
互相對稱,
2個小朋友各自選喜愛的顏色^^
個性化~客製化~色彩多樣化~這就是系統家具的好處^^

當然你走到書桌側邊走道看到後面的階梯~
床組上舖就是從這隱藏在整個床組後面的階梯上去的^^

階梯揭密,

每一格階梯通通具有收納,

不但有收納,
後面4階比較高的階梯底板還可以拿起來,
下方還有暗室夾層的隱藏空間^^


這樣讓階梯一邊靠牆,一邊靠床組的櫃體,
不用欄杆扶手也可以很安全的上下^^
自然的防墜落.


看完小孩房再來看看主臥,

主臥室採用架高收納和室地板,
和室的隔間是用收納櫃隔出來的,
所以牆面就是收納,收納就是牆面,
地板的收納一次全部開給你看.


在這間和室,我們也利用了人體工學設計了一張2人用的桌子,
邊角倒圓更安全,

同樣的連書桌旁的收納也不能放過,

窗前也是調光捲簾,
一樣的把採光最好的位置留給書桌.

書桌旁就是書櫃,
有限空間我們的和室高架地板面積比King size的床還大,
這是與屋主經過多次討論後得到的共識,
歷經工程期間後,
實現了屋主想要的一切,
收納極限,
跟許許多多的點子,
努力的將他實現,
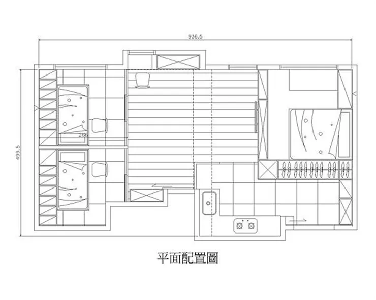
最後附上12.5坪空間平面配置圖

小空間大收納,如果從客變就開始由我們涉入規劃,
相信能創造更多不同的可能.
這篇文章是痞客幫搬家過來的,相片解析度變很差,
有空我在找解析度高的原始照片換上去.
辛苦你的閱讀,感恩.




















