大舅和舅媽幾年前已退休,這中間一直在看房子、規劃怎麼住,直到今年終於住進他們理想的養老退休宅~
他們的退休宅源自於老屋翻新,因為現在大坪數的新房子價格高,價格低的坪數又小,加上大舅也不想買別人改好的中古屋,所以最後選擇買老透天來翻修!空間大、能按自己想法規劃,和小孩分層睡也不打擾,將來還能傳承給下一代。
我覺得大舅的想法很不錯!讓我和老公也動了這麼做的念頭,大舅舅媽也很樂於跟我們分享過程,我一併紀錄下來,如果大家有同樣想法也能參考看看🥰
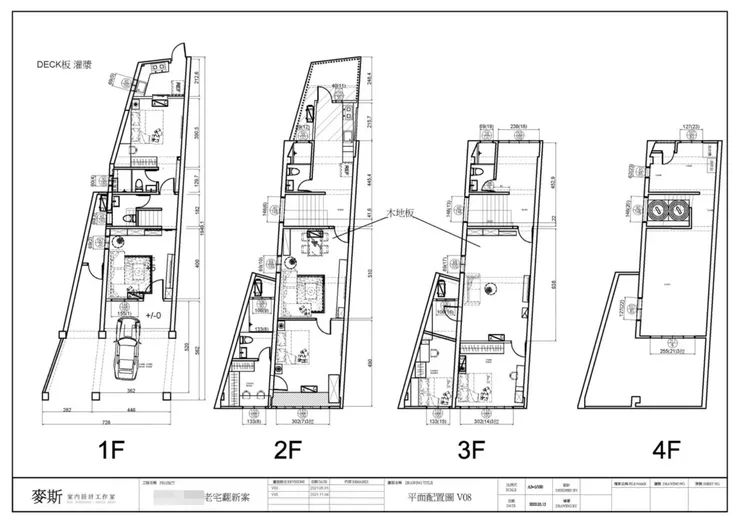
◆老屋翻新的平面配置圖
這是新加坡式透天,一樓前面是車庫,屋齡37年。
格局:
1F:1車庫/1廳/2衛/1房/1廚
2F:1露臺/1廳/2衛/1房/1廚
3F:1廳/2衛/2房
4F:1陽台/1洗衣間/1佛堂

◆找設計公司
大舅以前有翻修過套房的經驗,知道翻修有很多眉角很不容易,而翻修套房跟老屋翻新比,根本是小巫見大巫,老屋翻修細節一定多更多,也更容易產生失誤和缺失。
所以對於會是下半輩子一直居住的房子,希望一次到位!一次做到理想!大舅他們找了很多設計公司來評估,但針對30幾年老屋絕大數設計公司都沒有施工經驗,而最後找到的這間麥斯設計,是經由裝修過的朋友介紹認識,交談後覺得麥斯對老房子翻修非常有經驗,而且特別注意細節,首次面談就獲得大舅一家很大的認同,也自然決定交給他們翻修。
◆翻修過程
大舅說隨著老透天翻修工程的進展,越發感覺麥斯設計的專業度與細節處理超出他的想像!
比如像:
1.原有的給水管線埋在牆體內,因漏水已久造成鋼筋外露牆體水泥粉化,秀面處理時將外牆打至見底外再重新補焊鋼筋加強水泥附著。
2.原有頂樓加建是將紅磚包覆h鋼,造成室內牆體龜裂嚴重導致壁癌產生,設計師依經驗判斷建議大舅他們頂樓外牆穿鐵衣後不再產生壁癌。








3.外側管道另行規劃路線。
4.重新垂直1F~4F整合新的電箱&弱電箱路線規劃。
5.1F增建鐵棟的支架,評估後都需要挖深+灌漿=特地簡易地基處理,讓2F的DECK水泥灌漿露臺後都不會有晃動感,讓大舅更感覺安心踏實。
6.2F露臺是以新製DECK板灌漿銜接舊建築結構,使用特別加強的處理方式,讓交界縫經歷最近的大地震都無任何損傷,真的是很安心!






▼老屋拆到見紅磚。

▼補柱子加強基礎結構。




▼重新配電線水管等等管線。老房子水電一定做好,大舅還特別強調要用粗電線,現在電器用的多,咖勇!




▼大舅說老屋翻新眉眉角角真的很多很細,連水管位置幾公分到幾公分都很講究。








▼他去現場看進度,到處一堆數字標記,設計師和工班真的要是老手才能施工很順。

▼基礎和增建工程做得滿順利的,按部就班,很快裝潢工程就接上,採光罩、系統櫃、櫥櫃、鋪磁磚……轉眼就到交屋的日子!全家都很期待!






◆老屋翻新完工
(😆美照由麥斯設計提供,中間穿插生活隨手拍)
▼嶄新的透天外觀~看起來超級氣派!喜歡這種俐落的現代感!



▼鐵捲門進去就是車庫空間~標準的新加坡式透天。

<一樓>
▼再往內是接待客人的會客廳,簡單大方,放了一張大舅精心挑選的實木桌,泡泡茶、和朋友聊個天,退休就是要這麼慢活!

▼系統櫃收納空間足。

▼平常可以把鐵捲門拉上去,外面採光很好可以透進來。

▼樓梯旁的客用廁所。


▼房子是長條形的,一樓後半部是帶小廚房的獨立套房,目前當作客房,大舅和舅媽說如果未來他們真的行動不方便,就可以轉為他們的臥室,樓上就給孩子和孫子住,所以設備做得比較齊全!我和老公都覺得想得很周到,有廚房也能分開煮自己想吃的,好方便❤️




<二樓>
▼二樓是居家客廳,小而舒適,緊連著餐桌。


▼比較特別是在這裡裝了攝影機螢幕,當初就有規劃主機位置和線路,房子周圍一有風吹草動,大家第一時間就能注意到!

▼一字型廚房,白色亮面好清潔又能放大空間感。電器櫃配有插座好使用。

▼高身櫃也幫助收納很多食品材料!舅媽說以前在舊家會隨手放在桌子上,現在用完順手放回櫃子裡,檯面永遠乾乾淨淨,看了很舒服~

▼特別多挖一面採光,整體廚房非常透亮,白天基本上不用開燈。

▼主臥室
大舅舅媽一貫的追求~簡簡單單舒舒服服!

▼大面百葉窗做採光,底部是臥榻兼收納,左邊櫃子則是大舅的衣櫃。



▼進到裡面還有一個更衣室!則是舅媽的專屬空間~


▼簡單的梳妝台,可以自在保養自己!

▼忘了分享~~好高級的沙發按摩椅啊!!這也太會享受了,我跟老公說必須學起來,以後我們新房子也要擺一台😆

▼衛浴。


<三樓>
▼樓梯間的運動腳踏車,面對陽光揮汗如雨~

▼三樓大舅規劃整層給小孩使用。
進去先是一個多功能空間,可以運動、看影集、看書等等都可以。



再往裡面走則有兩個房間,都配好了書桌、衣櫃和床架。
▼房間一




▼洞洞板可以掛表弟喜歡的動漫周邊,還有各式比賽的獎牌!超多!不愧是運動達人!


▼房間二,大舅說未來等表弟結婚有小孩可以當孫子的房間。




▼衛浴。

<四樓>
▼四樓簡單擺了佛堂。

▼外面則是一個很大的露台,感覺很適合大家來烤肉😆說不定今年中秋就約在大舅家烤了!

<總結>
看完大舅舅媽打造的退休宅,讓我和老公深深心動!忙碌大半輩子後,有這樣一個舒適、夢想中的養老空間,有時間可以坐著好好享受悠閒時光,覺得所有忙碌都值得了!同時也規劃了小孩的專屬空間,讓三代同堂保有親密也留有距離!好棒的退休宅與全齡宅~一起分享給大家🥰
▽老屋翻新相關資料▽
房子:屋齡37年新加坡式透天
格局:
1F:1車庫/1廳/2衛/1房/1廚
2F:1露臺/1廳/2衛/1房/1廚
3F:1廳/2衛/2房
4F:1陽台/1洗衣間/1佛堂
裝潢項目:基礎工程/拆除工程/泥作工程/石膏磚工程/鐵件工程/水電工程/外牆工程/增建工程/裝修工程/木作工程/油漆工程/系統櫃工程
裝潢費用:
基礎工程:486萬
增建工程:64萬
裝修工程:200萬
設計公司:麥斯設計室內裝修
地址:彰化縣彰化市泰和路一段114號
電話:0986 620 609
LINE:@325dxwgp
粉專:https://www.facebook.com/3dsmaxstudio
IG:https://www.instagram.com/maxdesign2015/
官網:https://maxdesign.space/





















