今天來分享大哥的新家!(其實是我大堂哥,因為我們家是五姊妹,我都習慣直接叫他大哥)
我和老公很喜歡他們新家的概念,有點像擴張版的三代同堂,不只和大伯住,還和小叔一起住!然後大哥一家自己專屬一層,就是透天版的公寓~
┃背景交代
這棟是自地自建的四層樓透天,是大伯和小叔一起合建的,因為小叔未婚,大伯說不如一起住有個照應,兒子一家也可以回來同住,大家感情好也想住得近。
一二樓是傳統透天格局,一樓大伯夫妻住,二樓給小叔住,四樓是佛堂。三樓則是給大哥一家四口住,規劃成公寓般屬於自己的獨立空間,有自己的客廳、廚房、陽台等等,住得近也能保留距離美!

┃找設計師
大哥說他很認真做功課,對於自己的居家習慣與裝修需求非常清楚,但是找不到一位可以將想法表達出來的設計師。在遇到麥斯設計前,找了很多位設計師,都在洽談時不斷打搶想法或是達不到所想要的設計,甚至有點硬性要求他改變想法,讓他滿失望的。
後來輾轉經由朋友知道麥斯設計,知道他們從事室內設計多年也累積不少作品,才介紹給他認識洽談,初次見面就聊了很多,麥斯也快速給出配置圖與報價單,完全達到他的要求,這是之前多位設計師達不到的完成度!後來決定與麥斯簽設計合約,期間晚上想到什麼就和麥斯設計師做細步討論,像是使用上的動線、櫃內收納的需求、想要呈現的感覺風格,在裝潢過程中才由一開始的擔心慢慢轉變成期待。
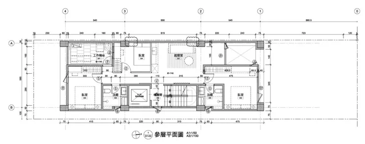
┃平面配置圖
透天建到後期大哥才找好設計師,所以來不及客變,原本實際內部空間就不大,預留格局也和他想要的有所出入,和麥斯設計經過多次的討論與修改,終於可以擠下三房一廚一廳,而且動線與入住後的習慣相當順手。
▼初始平面圖

▼修改平面圖
紅色框起來是變動的地方,小小挪動給出廚房空間。
┃3D圖
實際完工和3D圖非常相似,讓大哥他高度稱讚!








┃開工裝潢
房子是狹長型的,這裡規劃成客廳,再前面是主臥室空間。

▼大嫂喜歡的弧形天花板,可以遮樑。

▼石膏磚要重建姪女的房間,因為她之後要到外縣市上大學,會比較少在家,所以願意把空間讓出來一點給媽媽想要的廚房,真是貼心~


▼姪女房間擺單人床,不大但是很精緻!

▼主臥室大窗戶,視野超好。

▼安裝系統衣櫃。

▼姪子房間,床架書桌書櫃衣櫃一樣用系統家具,有效利用空間!

▼油漆也是全屋的重心之一!大哥希望用特殊塗料打造一種純樸的天然質感,聽說花了油漆師傅很多工夫做出自然批痕 ,比平整油漆還費工,因為還必須考慮到美感和平衡!


┃圓夢開箱
大哥說每天去工地打卡,最期待的就是看到自己的家一天比一天更完整!雖然前期很累,但看到成果就覺得一切都值得了!
/玄關/
進門是簡單的玄關櫃,包包、手提物品等等可以暫放檯面稍後做整理。

▼玄關櫃與電視櫃走簡單俐落風格,在顏色和門板形狀上做些小變化,簡約卻也質感耐看。

/客廳/
大哥他們是大家變小家,原以為會不習慣,但住了之後才發現這樣的小空間也很棒,起身轉身拿東西就在身邊或近在眼前,逐漸不會隨意堆放雜物,整理清潔也變得更輕鬆。

▼充滿暖意的奶茶色系搭配,很溫馨。

▼沙發裡面的小空間,是做為一個多功能空間,可以當小書房、小瑜珈空間、小休息室。所以設計師在內側規劃了臥榻的放鬆空間,臥榻下還有藏酒的空間!

▼特別的是戶外採光需與客廳共用,中間使用捲簾隔開,需要休息時就出現別於客廳的使用習慣。


/廚房/
廚房是大嫂的必須要求,她喜歡烹飪,需要小吧台製作飲料,所以在不大的空間內,設計師抓取到了舒服的使用尺寸,活動起來游刃有餘,還配置了電器櫃!小小的但是五臟俱全哦~但平時需要大火熱炒或全部人一起用餐,就會去一樓共用的大廚房,享受大家庭的快樂氛圍!


▼入住後~
加入擺飾品更有家的感覺,玄關櫃底部空間原來是給了掃地機器人!

▼頭頂風扇好好看!我喜歡❤️葉扇很像大型桃花心木種子,帶來微風也不會佔據地面空間。

▼全室牆面用了天然特殊塗料,油漆師傅控制做出了自然批痕,讓整個空間看起來更放鬆,充滿自然禪意,完成了大哥的期待!材料本身還會吸濕氣,可調節室內濕度~

/主臥室/
大哥對主臥的要求是微飯店風,所以設計師打造了一間擁有精品質感的臥室空間,系統家具配色中性沉穩搭配大理石紋,並運用黑鏡的光澤反射呈現視覺深度,高級時尚感出來了~


▼床頭是訂製繃布,特地搭配了金屬暈染的繃布質感,做不同材質與色系的混搭,豐富視覺同時也柔化黑與白的銳利。




▼入住後~
窗戶視野開闊,採光也很好。

▼大哥大嫂買到喜歡的椅子,很新家設計也很速配!


▼衣櫃玻璃若隱若現,衣物不會太明顯但又能看見裡面擺了什麼,也算很方便找衣服😆

/姪子房間/
標準的男孩子房間,深藍深淺灰系統櫃搭配,而暖系木地板讓房間在陽剛中帶點溫柔。





▼入住後~
標配電腦椅!陽光斜灑下來很舒服。我問怎麼沒看到電腦?姪子說準備換一組最新的,哇~新家配新機,給自己很棒的入住禮物!

▼牆面塗料的自然批痕,質樸感搭配系統櫃的俐落線條,我覺得很有碰撞感,很特別的組合。

/姪女房間/
鹹甜適中的顏色搭配😆不會過甜也不會過素,搭配柔和的弧形半圓鏡,連我老公看了也很喜歡,未來有機會搬新家也想給Emma來一間!


▼櫃子也使用了圓弧元素,很有整體感!


▼牆面近拍塗料批痕。

▼樑角的圓弧也是特意做的不均勻感,越看越耐看!

/曬衣陽台/
天花板吊掛曬衣桿,牆面配置收納櫃與摺衣平台。

┃心得分享
我看到的是完成品,但其中的艱辛和裝潢完成後的滿足感,從設計被打槍到逐步完成,到滿懷期待入住,我想只有大哥大嫂當事人體會最深,而我負責把它分享出來,希望看到文章的大家有所共鳴或想法!
▼這是大哥寫給設計公司的感謝文,我也貼上來分享給大家,能想像他到底有多感動!
------
當大家不認同你時
如何保有自身的想法
設計。 很主觀
而我
只是想請設計師,將心中想要家的樣子,協助規劃出來
經過一年..….嶄轉碰到了麥斯設計,願意傾聽我的想法,協助將.....夢想 中家。實踐出來
每天走進工地,最期待的應該是我吧😂
因為,在其中,走的好辛苦很有感觸
看著看著漸漸完成的作品,內心真的很感謝,協助我的大家
圓我的任性跟執著
屋內的每個角落,都有故事
------
┃其他資訊
格局:3房/1廳/1廚/2衛/1陽台
坪數:19坪(含二衛一陽台25坪)
費用:全室裝修147萬,不含冷氣、家電、全室特殊塗料29萬
設計公司:麥斯設計室內裝修
地址:彰化縣彰化市泰和路一段114號
電話:0986 620 609
LINE:@325dxwgp
粉專:https://www.facebook.com/3dsmaxstudio
























