│前情提要│
在買房子前,我朋友Eva是標準的租屋派,覺得租屋可以住得好又不用背貸款,但歷經幾次搬家,最後一根稻草是房東說房子賣掉了請她搬家,身不由己的無奈,讓她下定決心要買一間屬於自己的房子。
│裝潢要求│
1.要很多圓弧的設計。(猜測是從我家獲得的靈感哈哈~)
2.要有很多的電器櫃(有在做烘焙)
3.主臥房間很小要把它擴大。
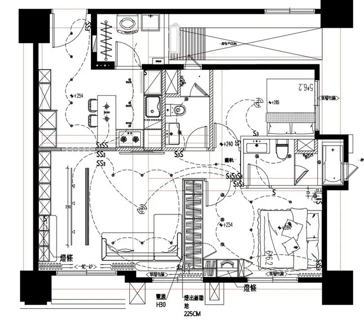
│平面配置圖│
⬇裝潢重點在主臥、客廳、餐廚。

│施工前│
⬇左手邊是廚房(磁磚地),當初設計的時候就是要區分兩個空間。


⬇廚房預定地~

⬇電視牆預定地~讓設計師燒腦一下的地方!(完工後變得超美哦❤️)


│施工中│
⬇看木工師傅大顯神功,用木工做了很多圓弧裝潢。

⬇Eva說她不喜歡看到冷氣管線裸露,所以裝隱藏式冷氣,設計師規劃設計藏在天花板裡。



⬇天花板做了類似波浪的斜角設計,也可以保留比較高的天花板高度。


│完工開箱│
<餐廚>
⬇進門後左手邊是餐廚空間,右手邊是玄關櫃與電器櫃。

⬇Eva她超級熱愛料理和烘焙,我也收過很多手作小餅乾~好香好好吃!所以她平時也自己做飯吃,設計師幫她規劃了滿大一座冰箱櫃(有提前跟設計師討論),空間很夠冰~可以很放心囤食材!以及一座麻雀雖小五臟俱全的系統廚具和中島,中島下方還藏了掃地機器人,設計師真的很會利用空間!

⬇玄關櫃設計簡單大方,搭配微歐式風情的黑手把,旁邊還有一面圓弧全身鏡!總是在不經意的地方出現圓弧元素,喜歡這種小驚喜,也很呼應裝潢主題~

⬇電器櫃的部分,本來是想要炊飯器櫃但價格太昂貴了...所以設計師建議做系統櫃替代,並將櫃子大小一致類似炊飯器櫃的感覺,做出來之後非常喜歡~

⬇上掀式對身高相當友好,最上排櫃子也能好好利用。

⬇弧形拱門好美😍充滿異國風情~柔和曲線減少生硬感,也能輕鬆界定廚房和客廳的空間。

<客廳>
⬇拱門進來是客廳~

⬇Eva說當初想要有很多的櫃體收納,所以設計師規劃了一整排的系統櫃,並搭配圓弧元素,這些圓弧門板是用系統板材做出來的,原來系統櫃也能做到這麼設計感!大開眼界了~


⬇另外因為需要很多收納櫃,導致電視牆跟沙發需要轉向,不然不夠寬敞,設計師很巧妙把電視牆轉向,但又因為廚房的牆太短了,所以設計師把它延伸出來做造型牆的設計,經整個拱門銜接起來。(這是Eva補充的,聽完覺得設計師太厲害了!因為我看到的已經是成果~如果沒聽前因後果,都不知道原來經歷了一場乾坤大挪移!)

⬇還有隱藏式電視櫃!不希望唯一的走道上有阻礙,所以設計師規劃在電視牆下挖出一個空間,將電視櫃嵌入進去,所有東西都可以隱藏起來!

⬇電視牆上方為了隱藏大樑跟冷氣,所以做了一個空間出來並使用斜角設計,美觀~也讓天花板造型更加活潑。

⬇收納櫃左手邊則安置工作空間,Eva說她現在有大半時間在家工作,這個空間讓她很自在,動線也很順暢,工作累了餓了需要休息,客廳、廚房就在左右。書櫃下方裝了燈條,可以替代檯燈,也不會佔據工作桌空間。

⬇書櫃下方裝了燈條,可以替代檯燈,也不會佔據工作桌空間。

⬇桌面也很夠用,雙螢幕工作綽綽有餘!

⬇白天可以將窗簾拉開,讓自然光灑落進來,工作起來也特別振奮,我覺得是很棒的位置!

⬇落地窗旁邊也有大樑,因為不喜歡硬梆梆的直線條,所以設計師也設計了一個斜角來美化,也不用再另外做窗簾盒~一舉多得!

<主臥>
原本格局有一間小房間,如果把小房間留著的話,客廳跟主臥空間會很小,所以Eva跟設計師討論後,決定捨棄小房間,把空間分給客廳跟主臥。
⬇右手邊的主臥系統衣櫃是雙功能!除了當作衣櫃收納衣物,同時也是一道隔間牆,外面就是客廳,讓客廳沙發有一邊是可以靠著牆面,讓公共空間整體動線走起來更流暢。

⬇神秘的化妝台!隱藏在衣櫃裡面的化妝台!這位置太妙了!就是為了把凌亂的空間藏起來~(Eva說她什麼都想要藏起來🤣)其實這樣也很方便,如果有人需要進房間,例如維修打掃之類的,不想被看見的雜物,把門關起來就好!

⬇而化妝台的左邊,其實還有做一個飾品櫃,裡面擺滿了漢服小飾品(她很喜歡穿漢服,和我們出遊近八成都是漢服裝扮!)

我很喜歡設計師規劃的各種設計巧思,除了貼合朋友Eva的生活習慣、愛好,整體色系也看起來舒服和諧,又能放大空間,當我實際走房子,其實並不會覺得空間太狹小,反而覺得一切位置都規劃得剛剛好!
不過Eva也說到,她一開始找設計師其實不太順利,因為她的要求比較龜毛,但既然買了做了就想用到最完美(是的我也是這種想法!),詢問好幾位計計師,才決定給現在這位~能理解她的需求,並在預算內盡量達成(像是仿炊飯器櫃的電器櫃)
最後~很開心Eva擁有屬於自己的家~我有更多烘焙小糕點可以吃啦!也把這份喜悅分享出來,希望大家都能找到自己喜歡的裝潢設計!
設計公司:水設室內設計
官網:https://www.shuei-design.com/
粉專:https://www.facebook.com/shuei.interiordesign


