開箱熱騰騰的新家~是表弟(小漳)一手設計的裝潢力作!
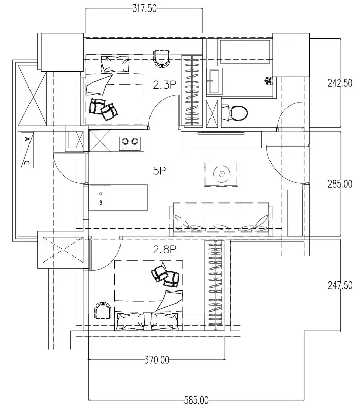
格局:小兩房一廳風格:美式輕古典
裝潢費用:70萬
▼配置圖

▼模擬圖




房子不大但我希望家裡又美又好用(丟出難題😆),小漳就好像變魔術一樣,把有限的空間運用到了極致!利用各種收納技巧和空間分割手法,讓小空間也能擁有大格局的視覺效果。並且精挑細選好看又實用的材料,重點是價格也比較親民,讓整個家看起來既有質感又不會太傷荷包!

▲圓弧造型天花板。
將小兩房一廳的格局佈局互連,並利用開放式的設計,讓光線可以自由穿梭,整個家變得更明亮通透,也讓空間感變大了。

▲開放式小廚房。
在美式風格的家裡,相信大家一定會看到很多這種「經典線板」,是美式特色經典中的經典~


▲玄關櫃門片也做了線板。
上~~完工照
輕古典風格就是把傳統的古典設計變得更簡單、更適合現代。既保留了古典的奢華感,又加入了現代的簡約元素,用一些溫暖的色調和恰當的裝飾,讓家裡看起來既有質感又不會太花俏,營造出一個舒適又高雅的居家環境,住起來很舒服~

搭配美式風格的經典元素,像是線板和溫暖的色調,讓整個家看起來既時尚又舒適,充滿美式風情,使得每個角落有著鮮明的風格又各自和諧融合,顯得有質感又不會雜亂。


▲燈光變化。
牆面上的線板設計很精緻,讓整個空間都充滿了細節美~看起來很簡單,但又有點華麗的感覺,讓家裡變得更有層次!好像在跟大家說:「我是這個家的主角!精緻但又不會太高調。」而且它們還能平衡古典和現代的感覺,讓家裡看起來更有韻味。



▲電視櫃也使用線板呼應美式風格。
新古典風格的巧妙運用~壁燈設計!
因為家裡空間不大,所以燈光設計就變得很重要~小漳把壁燈和線板結合在一起,讓家裡看起來既溫馨又時尚,看起來就像個小型的藝術角落,我特別喜歡❤️

廚房的窗戶和3合1門裝了調光柔紗簾,可以調整透光度。白天想讓陽光照進來的時候,它可以透光,但又不會讓別人從外面看進來,這樣就可以在不影響隱私的情況下享受自然光。


臥室的日夜風琴簾,可以調整光線的亮度,醒著可以享受採光,白天想看書的時候,就不用開燈了;睡覺可以完全遮光,我是一個很怕光的人,這樣就可以在一個完全黑暗的環境裡享受睡眠,不受到早晨陽光的干擾!




▲燈光變化。
由於是小戶型的住宅,所以收納問題很困擾,很需要聰明的收納方式!
小漳特別設計了高深床頭櫃,把床頭櫃和書桌的寬度設計成一致的,這樣一來,床頭櫃就可以當作一個小型的收納櫃,不僅有平台放東西,裡面也可以放很多東西,像是大行李箱、棉被、不常使用的物品等等,這個設計非常符合收納量大的需求,完全解決了收納問題,把房間的空間利用最大化,看起來更整潔~




▲燈光變化。
最後真的要好好稱讚表弟一下!他很細心,發現建商給的插座根本不夠用!而我又很吃電器需求!他重新規劃了插座的位置,現在沙發旁邊、書桌底下、床邊都有插座,連一些沒有櫃子的地方都特別加裝,連一些比較隱蔽的地方都想到了!整個家變得更方便、更實用,免得怕熱的我提著風扇到處找插頭,或是筆電沒電了滿屋找電,實在不喜歡工作被打斷,正投入呢~🤣
基本需求面面俱到,感謝表弟為我打造了一個溫馨舒適的家,讓人一踏進去就感到放鬆。當初對他的設計非常信任,所以給了他很大的發揮空間~沒想到結果這麼棒!很幸運有他這麼一個貼心的弟弟!現在我擁有了一個又溫馨又有點小華麗的家,每天都超享受待在家裡的感覺,超開心的!
以上分享給大家~如果有想了解的細節可以廠商聯絡哦!
設計師:小漳(麥斯設計室內裝修)
地址:彰化縣彰化市泰和路一段114號
電話:0986 620 609
LINE:@325dxwgp
粉專:https://www.facebook.com/3dsmaxstudio
IG:https://www.instagram.com/maxdesign2015/
























