
沒想到我家得獎了!很開心自己的裝潢品味獲得認可!
整理一下照片和大家分享(翻了好久相簿XD)
-買房-
北漂新竹8年,大約2年前,才下定決心終結租屋人生。
當初決定買這間房子,除了離上班地點近一點,附近也有超商、大賣場、公園等等很方便。
房型23坪3房,雖然目前僅我一人居住,但未來很希望能有新成員!同時也有客臥空間,親友想來玩過夜也沒問題。
-想要的設計風格、需求-
我很喜歡石材的質感,沉穩粗獷,也喜歡黑灰白、簡約一點的風格,但又不希望整間房子像石板屋,冷冰冰的。也需要一個辦公空間,遠端處理工作。
-找設計公司-
會找上水設,是因為同事朋友介紹,他們家也是給水設裝潢的,我也看過不少水設曾經做過的案例,設計風格非常接近我腦海中的樣子。第一次洽談時,設計師很快抓到我想要什麼,相談甚歡,讓我也開始放心把裝潢監工交給他。
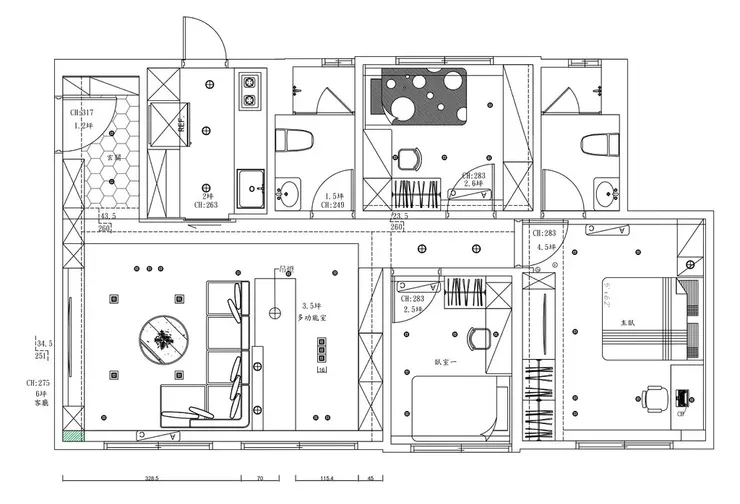
-房子平面圖-
公領域在左,私領域在右。辦公空間放在客廳,開放的多功能室。

-裝修過程-
裝修前的樣子(已包了工程保護)
▼這裡是電梯公共區域,沒想到也是包滿滿,設計師說進出料避免刮傷,一定要做的。

▼屋內裝修前,新成屋況。

▼室內門框、地板也包好保護。



▼平釘天花板、做了一些木作弧形包樑修飾,多了一些設計感。



廚房原本只是小隔間,但我擔心油煙,請設計師多規劃一道拉門。
▼調整前,油煙絕對會飄出來!

▼調整後,拉門裝上去,關起來就能隔絕油煙!
(在左邊牆面,設計師巧妙地運用線條和邊條設計,將木作與實牆完美結合,不但提升了牆面的整體質感,更讓左側牆面渾然天成,成為空間中的細節設計,實在是太加分了!)

▼我的岩板電視牆!(御影石)質感超讚的!

▼完工後清潔完畢等家具陸續進來。

-完工分享-
(設計公司拍的美圖搭配我的隨手拍一起服用XD)
玄關
六角花磚讓我很驚艷!當初只是不希望整個家看起來太無趣(都是灰灰灰),所以請設計師幫我搭搭看,沒想到現在卻成了我的心頭好,不管哪位親友來玩,一進門絕對會稱讚一下!

客廳
貫徹我愛的灰色調,搭配暖色木地板,讓整個空間不至於那麼冷XD

▼電視牆是黑御影石,和設計師挑了滿久的,看來看去,還是這樣濃度的黑我更喜歡,上下兩條燈線,更加凸顯御影石,有一種脫穎而出的立體感。

▼好細膩的紋路,有發現角度是一致的嗎?貼的時候設計師有特別請師傅注意。

▼每個方向看都有不同的質地呈現,對我來說就是一副藝術石畫!

多功能空間
開放辦公區,目前只有自己住,滿自在的,落地窗採光很好。桌面也能作為餐桌。

▼訂製的辦公桌,桌面大片玻璃很有總經理辦公室的感覺XD桌腳是鐵件,很穩固。

▼木頭紋理系統櫃,為空間增添一點溫暖,收納空間充足。比較私人的文件可以收在櫃內,藏書、收藏品則可擺放在展示櫃。

廚房
延續我愛的黑,廚房加裝一道黑色鋁框玻璃拉門,隔絕油煙。


▼新增設的系統邊櫃,增加廚房收納空間與實用性。

主臥室
待在臥室的時間比較少,裝潢簡單就好。
床頭背牆同樣是我喜歡的中性灰,而系統衣櫃與床頭櫃則是米白色系,中間鑲入一塊黑色石紋板材。
設計師說主臥空間不大,用明亮的白色系視覺上更加開闊,確實,在房內完全沒有壓迫感,很舒適。



次臥一&二
兩間次臥簡單做了一體式的系統衣櫃與書桌,目前當客房,未來想改成小孩房或是獨立書房皆可。


衛浴
建商的原裝潢,和整體裝潢風格很搭。

從住進來到現在超過一年了,要說有沒有缺點...那應該就是太舒服到不想出門XD屬於自己的大空間真的很舒適!很感謝水設設計師團隊完成我的夢想新家,回想當時跟著設計師去挑岩板,真是難忘的經驗!希望這次開箱也能幫助到大家,祝福各位都能擁有夢想中的家!
設計公司:水設室內設計























