我和這位朋友從小一起長大,算是見證彼此人生每一個重要階段。
這次陪他一起記錄夢想新家從零到實現的過程!
完工後,一進門那刻,我就知道,他終於擁有了一個,真正屬於他個性的家。

因為太喜歡這間房子的設計了,決定用我的視角來寫一篇記錄,分享他家這次的室內設計故事。
我一直都知道我這位朋友最偏好自然調性,不喜歡太複雜的造型,也很注重生活機能和動線。
這次他說他想要一個清爽舒適、北歐風格為主軸、又有「綠色元素」點綴其中的空間,
🛠️ 裝潢需求與施工範圍
我們這次是28坪的新成屋,全室裝潢工程包括:
- 保護工程(地板保護、公共空間保護、清運)
- 木作工程
- 水電工程
- 油漆(油漆、批土)
- 系統櫃
- 超耐磨木地板
- 鐵工(安裝玄關吊衣桿)
- 空調安裝
- 玻璃安裝
- 清潔
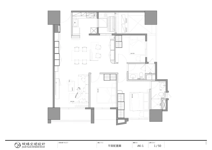
📐 平面圖與3D渲染圖
平面圖:

一開始朋友傳給我看 3D 渲染圖的時候我還想說:
「嗯~反正渲染圖都很漂亮,參考參考就好」(以下是3D渲染圖)





但!不得不老實說,我覺得施工完成後的作品,是超越3D渲染圖的!
不論是配色、線條或細節配置,軟裝等。
從這點也能看出設計師與施工團隊的細膩與執行力。
🚪 玄關空間 Before & After
📸 裝潢前:

原始玄關空間較為狹長,而且還有個電箱!電箱!電箱!。
厲害的就來了,設計師特別設計了一個全身鏡拉門,巧妙地將電箱隱藏起來,既實用又美觀。(往下看)
📸 裝潢後:

看到全身鏡拉門了嗎!?這就是設計師巧妙的地方,
藉由原本電箱的位置,善用空間搭配生活性!
而且啊!朋友有提汙衣櫃的需求,所以就出現了開放式的掛衣空間。
一來,衣物可以保持通風,避免悶在櫃內產生異味,
二來,簡約俐落的造型更為玄關空間增添時尚感。
這樣一回到家就能放下外面的煩惱,這就是設計+哲學。
🛋️ 客廳空間 Before & After
📸 裝潢前:

書房與餐廳區原本有明顯區隔,一堵牆讓空間顯得較為封閉。(左邊那面)

看到沒有,多大的一面牆!!!
往下看設計師怎樣變魔術~
📸 裝潢後:




設計師建議將書房與餐廳之間的隔牆打通(原本算是另外一個房間),
讓光線和動線更自由地流通。
整體主色調以淺木色、白色與莫蘭迪綠為主軸,簡約中帶有個性。
電視牆使用藝術塗料打造柔霧質感,轉角處以弧形修飾,
並搭配懸浮式電視櫃與展示層板,輕盈之中蘊含設計語彙。
窗邊放置一盆大型綠植,在陽光灑落下,空間彷彿一幅靜止的畫作。
🍽️ 開放式餐廳與書房 Before & After
📸 裝潢前:

原本為封閉式三房格局,只有這間是開放,但可惜中段採光難以延伸進來。
📸 裝潢後:



因應朋友不需太多房間的需求,設計師將其中一房打開,改為開放式餐廳與書房。
書櫃以開放格搭配木紋門片交錯設計,創造豐富的視覺層次。
L型曲面木書桌沿牆展開,搭配雙面插座讓使用彈性加倍。
餐廳緊鄰書桌區,整合照明、插座與收納,整體動線簡潔順暢,非常適合小坪數空間規劃參考。
這個空間我朋友說,給他一種對突破的渴望,從一個封閉隔間做成開放空間!
尤其是他工作時,總是能看著前面的開放式餐廳~他說他會有種動力和期盼,
希望那桌上能夠常常有夠多朋友或家人齊聚,而他就好像那個護航者,能守護著!
🛏️ 主臥室 Before & After
📸 裝潢前:


格局方正但空間有限,這時候就考驗設計師功力囉。
📸 裝潢後:




主臥延續清爽柔和調性,主牆面特別刷上清水模的效果,再搭配我朋友最愛的綠色!
如果是正常清水模,就是灰色的,這樣設計,多了更多個人品味。
入門可以看到展示端景,看到一個小木馬沒有!搭配一個吊燈,我都可以想到這邊以後有許多不同變化,放點香氛蠟燭,還是什麼,一定都很美!
床頭設有淺凹平台放置小物,衣櫃採橫拉門減少干擾。
這點我個人很愛,窗簾則選用調光捲簾,具備調光與隔熱功能,可以依照自己心情的明亮來調整窗簾,哈哈。
從色調上來對應我朋友,我覺得設計師抓的超好,大面的綠色調,對應著我朋友內心深處深層的喜好,其他的沉穩配色,反應出我朋友低調內斂的個性,果然是主臥!
🛏️ 次臥空間 Before & After(孝親房&客房)
📸 裝潢前:


現在的房型的房間都偏小,所以設計師怎麼再創造一個好的生活體驗,我覺得很關鍵。
其中一間是孝親房,我朋友特別找他媽一起跟設計師討論了她喜歡的色調。
📸 裝潢後:




客房選用灰白為主調,搭配深色窗簾與抱枕,呈現低調現代感;
孝親房,則以淺木色搭配奶油白牆面,營造日系簡約感。
這次朋友媽媽特別挑選的色調和氛圍,認真覺得果然一家人審美觀都很好~
兩間皆有收納機能與調光窗簾設計,能依需求靈活調整為孝親房或客房使用。
所以我看到這兩間以後,要是我,我就會把這兩間也當作能量補充房,
需要沉澱就去沉穩一點的空間;需要更多暖心,就去溫暖點的空間!
這次讓我體會到,用軟裝的柔和來增加空間的層次感,真的很重要。
但這些溫度是如何產生的?
我覺得其實就是藉由許多色調與不同軟裝的元素,堆疊出來的一種人的氣息
那種氣息是讓你看到後,會覺得生活是能夠有更多想像的。
🧩 設計整合與軟裝亮點
這次最令人驚豔的是設計團隊對比例、材質與色彩的拿捏。
從家具選配、系統櫃設計、插座配置到照明位置,皆展現極高的整合度與實用性。






整體空間主軸圍繞「北歐風格」、「自然感受」、「收納與生活機能兼具」!
不只是好看,而是生活感十足的設計實例。
我覺得很適合現代都會小家庭或單身族參考。
🏠 真正的設計風格,來自屋主對生活的渴望
我自己參與完整個過程,有些小小心得,現在流行許多不同風格,
北歐風、侘寂風、美式,各種各種,但這些都只是一種靜態的名詞而已。
真正的好居所,我覺得是要和主人的心境搭配在一起,而這些心境其實很難以某種風格來定調。
一個能讓屋主在面對現實生活中,提供各種情感價值的居所,就是一種好的風格與好宅。
這次設計師和我朋友事前談得非常細,包括許多對自己生活的期許,其實都聊到,而不是只有生活習慣,因為這些生活習慣是來自於對生活的期盼產生的。
我想能讓我朋友這麼滿意的訣竅,大概就是設計師有打中他的內心深處對生活願景的渴望,給了一種新的希望吧!
📌 室內設計聯絡資訊與官方社群
想了解更多這次的北歐風格空間設計,分享這次的設計團隊:
台中_綻緣空間設計
🔸Instagram|綻緣空間設計ig
🔸Facebook|綻緣空間設計臉書粉絲團
🔸官方網站|綻緣空間設計
🔸地址:Google我的商家
🔸服務項目:住宅、商空、辦公室設計與施工整合





















