
老二出生後,明顯感覺原本的家空間不夠用。和老婆商量後,決定換個大一點的家,找一個能真正長住、符合一家四口生活需求的地方。
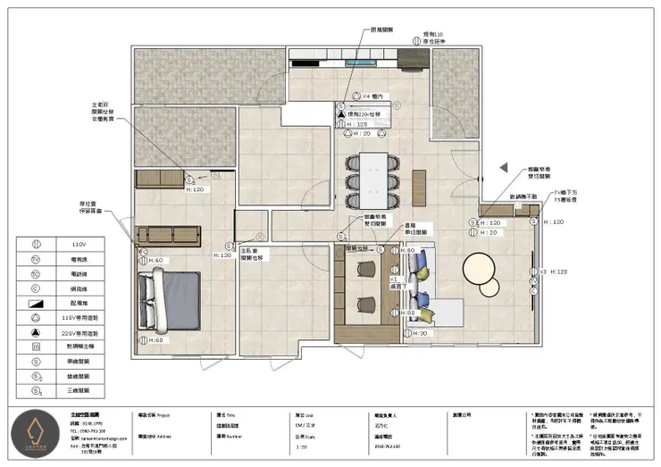
最後選定這間27坪的新大樓,格局是3房2廳2衛浴2陽台,空間方正。最吸引我們的是,這裡還有足夠的空間可以隔出一間書房,這對需要在家處理工作的我來說很重要。(買房前就先找設計師討論過隔間的可行性,這點很重要!)

找台南設計師的過程
之前就認識全境的小石設計師,看過朋友家的作品覺得很不錯,風格和我們想要的方向很合,這次新家就直接請他負責設計和施工把關。
小石提供的3D圖,是我們喜歡的俐落中性風格,色調搭配很百搭,不會過時。櫃體收納也盡量考慮到一家四口的需求,說實話兩個小孩的東西加起來,搞不好比我們夫妻倆的還多哈哈...收納真的很重要。





台南新成大樓施工過程記錄
水電配管階段│費用約8萬
建商原本的電路規劃和我們實際需要的用電需求有落差,小石幫我們重新配置,該增加的插座都有增加,位置也調整到比較實用的地方。

消防設備調整│費用約3萬
原本的消防灑水頭位置和我們的木作天花板會衝到,小石協助申請變更,確保安全也不影響美觀。

木作工程│費用約33萬
木作天花板
全室都有做木作天花板,主要是要美化原本的樑柱,同時加入嵌燈營造氛圍。



木作儲藏室
電箱的部分特別做了修飾門片,還規劃成小型儲藏室,一舉兩得。

木作書房隔間
書房的木作隔間是這次的重點工程,新增木作牆面隔出獨立空間,特別留了凹槽準備嵌入玻璃,這樣既能區隔空間,又能保持視覺上的通透感,不會顯得太封閉。




▲書房完工的樣子,不說的話,很像房子原本就有的存在!
木作電視牆
電視牆的木作完成後還要經過油漆、批土、研磨等程序,整個木作工程工序比想像中複雜。



系統櫃安裝│費用約30萬
懸空式的開放衣櫃安裝時需要用水平儀確保精準度,師傅很仔細調整到完美水平。



書房金屬門片安裝
書房的開關門片選用金屬門片搭配玻璃,也是為了配合整體俐落的風格。

台南新家完工開箱(各空間介紹)
雖然細清還沒進來,但實在等不及想看成果,先來拍照記錄一下!
玄關|告別亂丟鞋的日子
玄關的設計考量到實用性,規劃了污衣吊掛區和全身鏡,方便出門前整理儀容。進門就有落塵區可以放鞋。鞋櫃收納量很夠,還有日用備品的收納空間。掃地機器人和吸塵器都有專屬的收納位置,讓玄關保持整潔。另外旁邊還有一個小型收納儲藏間,可以放一些不常用的物品。


客廳|簡約電視牆透著高級感
我們預計會放一台85吋的壁掛電視,沙發尺寸大概落在260公分左右。整個空間保持開闊明亮,電視牆用特殊塗料處理,下方規劃了收納櫃,可以收納一些客廳用品。
這個電視牆是我最滿意的地方之一,塗料的質感在不同光線下會有微妙的變化,很有層次感,比起貼壁紙或做造型,這種簡約的處理方式更耐看。

藝術塗料vs乳膠漆vs壁紙
電視牆材質選擇比較
三種作法在價格與效果上差異滿大。以我家客廳的電視牆為例,當初請小石設計師幫忙評估以下三種作法的差異:
- 藝術塗料大約$20000+(塗料品牌與施工手法多樣)
- 電腦調色漆大約$6000+(僅有顏色變化,沒有紋理造型)
- 壁紙大約$4000+(紋理款式眾多,但是考慮家裡有小朋友,未來刮傷不容易修補)
最後我們選擇了藝術塗料,整體質感比較符合我們想要的氛圍,也更耐看耐用。

書房|在家工作的夢想空間
書房是這次新家多出來的寶貴空間!主要用來處理工作文件和辦公,真的是我的夢想實現,在家工作時終於有獨立的空間了,不用再和客廳搶地方。前面提到,我們不想要太封閉的感覺,所以用大面積玻璃保留視野通透性,同時讓我在工作時還能看到客廳的狀況,小朋友在做什麼都能注意到。金屬門片搭配玻璃的設計很有現代感,符合整體風格。






主臥|充足收納解決衣櫃爆炸問題
主臥收納方面,規劃了恰當的衣櫃收納,一直做到天花板充分利用空間。還有預留了梳妝桌的位置給老婆使用。其中一區衣櫃採用開放式設計,放一些常穿的衣物比較方便拿取。入門處和衛浴門片也都改成了金屬推拉滑門崁玻璃,讓風格更加一致。





小孩房|簡約風格為未來留彈性
兩間小孩房裝潢比較簡單,因為小朋友還小,考慮先用現成家具,只有做天花板包冷氣管線和燈具安裝。但其實這樣也好,小孩的需求變化很快,等他們大一點有自己的想法時,再來重新規劃會比較合適。


台南裝潢心得總結
整個裝潢過程大概花了三個多月,小石設計師的專業度和溝通都很不錯,遇到問題都會主動提出解決方案。雖然預算有稍微超支,但看到成果覺得很值得,終於有了更大的空間讓一家人舒適生活!
最滿意的是書房的設計,大約花費16萬(木做、油漆、燈具、系統櫃、玻璃、金屬門片等...(不含冷氣窗廉)),玻璃隔間真的很實用,工作時有獨立空間但不會有封閉感。整體收納空間也規劃得很充足,一家四口的物品都有地方放。
給想要裝潢的朋友一個建議,找設計師真的很重要,不只是美觀,更重要的是實用性和施工品質,多花一些時間溝通需求,後續會省很多麻煩。
設計公司|全境空間規劃
官網:https://tainaninteriordesign.com/
設計師:石乃仁
手機:0960-762-160
LINE ID:nbalakers212
地址:台南市東區東門路二段301巷56號
門市服務時間:一到五8:00-18:00
服務地區:台南、高雄
工程日常(IG):https://www.instagram.com/all_territory/
隨手拍拍(YT):https://www.youtube.com/channel/UCSrZ9rvlFGXYuVbXPpAcD-A


