
這兩天去開箱了朋友的新家,替他感到很開心!
終於不用漂泊常常搬家,他說買下屬於自己的房子後,才有種塵埃落定的感覺,那是一種很濃烈的安全感!由於預算有限,朋友的裝潢選擇以系統櫃為主。這也是我一直覺得很聰明的做法,在預算範圍內可以最大化利用空間,而且系統家具的優點是耐用、實用又美觀,對於小資族來說CP值很高。
朋友找的九十度系統家具規劃師很專業,進場丈量規劃,在預算內盡力規劃出充足的收納空間,也選擇耐用又划算的用料。
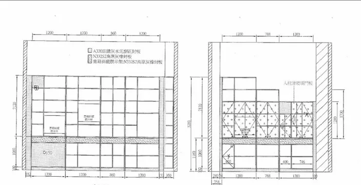
▼我覺得這家系統家具規劃師服務很貼心,提供詳細的規劃圖和精確尺寸,以利後面溝通進行順暢,讓朋友他們覺得錢花得值得!心情也加分很多XD


整面牆的系統書架設計得相當出色,朋友多年來收藏的書籍全部都能妥善收納,空間還綽綽有餘,未來添購新書也不用擔心。
(▼安裝前)

(▼安裝後)


廚房的系統廚具選用了特殊紋路的櫃板,質感相當不錯,整體看起來就像高級廚房一樣,完全不輸給昂貴的客製化廚具。
(▼安裝前)

(▼安裝後)

▼考慮到爸媽的使用習慣,朋友特地在另一個空間規劃了小廚房,不鏽鋼檯面的設計不僅實用,清潔保養也很方便。


以上開箱分享到這裡,再次恭喜朋友買新家!!
如果你也是剛出社會不久或是預算有限的小資族,系統家具真的是一個很棒的選擇,它不僅耐看實用,還有一定程度的彈性調整空間,能夠根據實際空間大小做最適合的規劃。
如果你也正在尋找優質的系統家具廠商,朋友推薦這家他合作的廠商,服務很貼心,可以詢問看看:
📍九十度系統家具-小港店
地址:高雄市小港區宏平路686-6號
連絡電話:07-8053190
營業時間:周一~周六 08:00~17:00/周日公休
📍九十度系統家具-民族店
地址:高雄市左營區民族一路950號
連絡電話:07-3597039
營業時間:周一~周六 09:00~18:00/周日公休
📍九十度系統家具-建國店
地址:高雄市苓雅區建國一路151-1號
連絡電話:07-7262782
營業時間:周一~周六 09:00~18:00/周日公休
📍九十度系統家具-瑞隆店
地址:高雄市鳳山區瑞隆東路30號
連絡電話:07-7660119
營業時間:周二~周日 09:00-18:00/週一公休
























