鄉村風別墅-L小姐的花園
撰文:趙硯華Clare
這是位於宜蘭的獨立別墅,地下一層地上三層,並帶有花園。
全毛胚交屋,意即全屋室內完全沒有任何的磁磚表面建材,也沒有任何隔間。如此能更自由的為業主量身打造屬於她心目中的理想度假別墅。
業主非常喜愛鄉村風格,對色彩鑑賞與接受度也非常的高,也由於是度假空間,在設計上也能更加大膽並展現強烈風格!
這個案子運用了許多經典的鄉村風設計元素,這也是我們想特別與大家分享這個案子的原因!
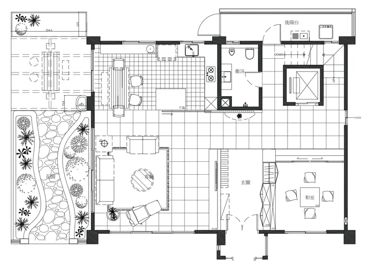
由於坪數較大,本篇先介紹1F空間

1F平面配置圖

1F玄關大門
入口的玄關,我們想打造一個視覺強烈的大門。在歐洲旅遊時,大門通常都極具裝飾性與強烈特色。這裡以實木板染色做舊,將鐵件、鉚釘手工訂製於門上,並選擇與其風格相符的大門門把。

外玄關使用地毯花磚
西班牙風格的手繪花磚,細膩優雅。

1F玄關
大門的背面也以鐵件製作裝飾。綠色的鞋櫃上挖空裝飾,並搭配外露式古典鉸鍊。地板則是以地毯式花磚拼貼並在四周抿石子收邊,呈現豐富細節。
客廳以火頭磚施作矮牆,保留空間穿透感。火頭磚也叫火燒磚,上面有焦黑的碳燒痕跡,紅黑相間並帶著稜稜角角的粗曠質地,具有獨特的紋理質感。室內以鵝黃色為主搭配綠色、藍色、紅色織品。色彩豐富,充滿活力與熱情卻十分協調。其中的色彩比例與選色搭配仰仗王鎮總監多年的經驗與功力。
在天花板處以數根實木樑呈現結構之美,四周有裝設間接燈光以補足夜晚所需光源需求並營造柔美氛圍,中間的水晶吊燈是業主精挑細選的骨董水晶吊燈。
拍攝照片時業主尚未入住,因此家具還未完全購置完成。

手工鑲嵌玻璃
開放式的廚房與餐廳中間,規劃了一面鑲嵌玻璃的屏風拉門,可以完全的收入牆中隱藏起來。不同色彩的玻璃拼貼並以鉛條焊接而成,獨特的立體質感與不同角度觀賞時的變化產生與空間中的色彩對話。
鑲嵌玻璃在台灣大多都只能在教堂裡欣賞到,但這項古老的技法其實已融入歐洲的生活之中隨處可見。台灣近年也有許多鑲嵌玻璃工坊推出體驗課程,推廣更多人認識這項美麗的技藝。
廚房部分地板有別於客廳的紅陶磚,使用花磚來區隔出空間場域。雖然空間挑高但櫃體並不需要頂到天花板,反而會讓空間感更加開闊。空間足夠的話非常推薦能有兩個水槽,一個是專門處理油汙的洗碗槽,另一個則是專門清洗杯子的洗槽,把重油汙與較簡單沖洗的品項分開不只在使用上感受較佳,整理上也十分方便。
值得一提的是,在這裡剛好能看到三種不同形式的窗簾呈現,有一布一紗搭配的布簾,羅馬簾、以窗簾桿固定的半窗紗簾。不同的窗簾樣式與布料搭配會形成不一樣的效果。布簾典雅層次豐富,而羅馬簾則能非常好的呈現出布料之美與圖案細節。

廚房窗戶的半窗簾
在現有窗框上我們也用木工包覆了窗框座造型上的修飾,並在下方延伸出平台。可以在上面放上小巧的辛香料植物與可愛的小杯子。窗簾的部分是由屋主L小姐搭配,典雅的蕾絲刺繡窗紗以半窗的形式呈現。光線灑進室內時透過窗紗映出的精美圖案與柔和的光,形成寧靜美好的畫面。

美麗的古董餐椅。
這個多功能空間,以架高地板的方式來規劃,地板中間有一張隱藏的小桌子。除了可以與親朋好友在此打打麻將玩桌遊。若過夜時房間不夠,把門一關也能當作一間客房使用。門片上方也使用了彩色玻璃並搭配透明的花紋玻璃。

公共衛浴,使用大膽的橘紅色搭配復古地鐵磚。磁磚不一定需要貼到全滿,貼到半牆高後上方以不同色彩的油漆搭配除了各有更有個性外,也能讓視覺上放大空間。
地板是以數十種不同的花磚與彩磚拼貼而成,形成一張獨一無二的彩色地毯。很多磚都是我們收藏很久的寶貝,小小間浴室地板光是來來回回調整加施作的時間大概就花費了一個多禮拜。但對成品十分滿意!

花園3D設計時的構想圖
在房子側面,有一個空地規劃為花園
花園入口的門以鐵件製作曲線造型,圍牆為抿石子與石頭搭配,內部地板我們用了不同大小與色彩的石頭拼貼出豐富的圖案。這樣漂亮的花園,是不是一走進來就心情愉悅呢?


花園的磚砌造型水槽
花園的水槽,這是屋主購買的小鳥造型水龍頭。搭配彩色玻璃珠顯得閃閃發光。
這座水槽是由泥作師傅磚砌之後手工塑型,外面貼的是珍珠釉面的馬賽克磚,在陽光下會有細緻的閃亮光澤。
在撰寫文章的過程中,翻看到曾經提案討論的圖片,再對照完成後的樣子,認為提案時的探討與常識可能性也非常有樂趣,因此放上一些討論過程的資料。在每一個作品的背後,都是無數的設計探討與施工方法的實踐,與志趣相合的客戶碰撞出的燦爛火花。
About Us 關於我們
GiGi Design集集設計,成立以來已走過27個年頭。主持設計師王鎮總監,擅長混搭風不同風格,不拘泥固定形式。
趙硯華Clare:從事室內設計已十一年,仍持續探索設計的各種可能性
GiGi Design 集集設計 FB:
Clare的IG:





















