


我哥就是那種看上眼就毫不猶豫的個性,只要覺得喜歡就直接行動。
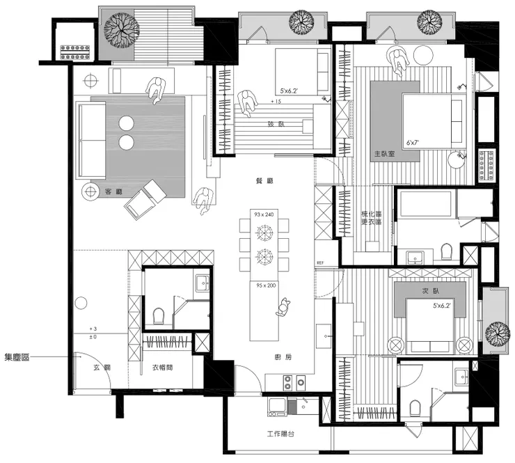
之前陪他去看樣品屋,他根本還沒聽完介紹就被整個風格迷到不行,二話不說直接買下同戶型,還指定設計師「照著樣品屋 99% 重現」。行動派到不行!平面配置圖

實品屋約 50 坪,亞筑實際設計規劃範圍為 42 坪(扣除衛浴空間)。整體動線以「開放式 × 隱藏收納 × 材質整合」為主軸,讓空間乾淨俐落、生活感卻不被犧牲。
3D 設計理念:空間整合+隱藏機能








這次的設計由台南的亞筑設計負責,核心概念是將「機能融入設計」:
• 大量隱藏門設計,視覺乾淨
• 櫃體整合材質,層次一致
• 光線與線條並用,放大空間感
• 開放與界定兼具,生活動線自然流動
這種沉穩的現代木質風,不只是好看,而是真正適合長期居住的風格。
先看看樣品屋的魅力
我第一次到樣品屋時真的被驚艷到,難怪我哥會直接決定照著做。
整個家的底色是木質調,搭配黑白灰的俐落線條,看起來穩重又帶點精品感。雖然現代感十足,卻完全不會讓人覺得冷冰冰,反而是那種一走進來就想賴著不走的舒適氛圍。

亞筑在「光影 × 材質 × 收納」上的細膩度非常高,櫃體機能都藏得剛剛好,讓整個空間乾淨有呼吸感。


玄關亮點:藏著兩項機能的「大方塊」


一進門右手邊的這個大立方體,是整個空間最聰明的設計之一!
設計師把:
• 客用衛浴 • 衣帽間 • 玄關展示收納
全部整合在同一座立方體裡,門片做成無縫隱藏,視覺上乾淨到不行。
開放式公領域:客廳 × 餐廳 × 廚房



開放式空間讓整個家看起來更寬廣,客廳、餐廳、廚房彼此相連,
但使用時又不互相干擾。
一家人在這裡活動,是那種「各自做事但彼此都在身邊」的舒服互動感,適合煮飯的人邊料理邊與家人聊天。



我也超喜歡那個紅酒架與中島結合的設計,好看又好用,完全是生活質感的加分細節。

主臥室:溫柔高雅的療癒風格

主臥延續整體木質調性,但加入白色烤漆木皮,讓室內更柔和。
床頭後方的隱藏式拉門窗景是我非常喜歡的設計:
• 晚上關起來更有安全感
• 白天可以打開讓自然光灑進來
• 光影層次更豐富



整體就是一個會讓人秒放鬆的舒服臥室。
次臥:沉穩大器的「企業家風格」

黑木皮 × 白木皮 × 伯爵灰主牆,空間氣場滿滿。
搭配厚實木作家具後,整體有種沈穩、內斂又高級的質感。
男人看到都會愛爆。
小孩房:彈性最高的多功能空間


小孩房延續木質溫度,但加入美式休閒感,更活潑、也更有生活氣息。
最大亮點是兩大片可移動的滑門,能瞬間變身為:
• 書房 • 客房 • 遊戲室 • 工作室
孩子長大後也不怕空間浪費,彈性十足。
我哥家實際完工:更輕盈、細節更符合生活


整體設計延續樣品屋,但材質比例做了微調:
• 增加灰白木皮,視覺更輕盈
• 空間整體變得更柔和
• 櫃體存在感下降,生活感更舒服
超實用!客廳 × 廚房的玻璃大滑門



這個大滑門真的非常實用
• 不煮飯時全開,維持空間通透
• 煮飯時關上,阻隔油煙又不壓迫
• 還能維持整體視覺一致性
是很多現代家庭都會想加的高機能設計。

兩片大拉門打開後,整個家完全串在一起,好看又大器。
各自挑選喜歡的臥室牆色:家的溫度更濃厚

每個房間都依照使用者喜好挑選牆色,更有專屬風格,也更有生活氣息。
實住心得:這真的會越住越喜歡
看過我哥實際入住後,我真心覺得他這次「照樣品屋做」的決定完全不會後悔。
• 收納量超強 → 家永遠看起來乾淨
• 動線順 → 每天使用都舒服
• 色調耐看 → 不會住久就膩
• 設計細節多 → 光影、線條都很穩定
• 機能適合家人實際生活
亞筑把美感、實用與居住感平衡得很好,真的能讓人越住越喜歡。
如果你正在找台南室內設計師,或覺得自己不確定喜歡什麼風格,「看樣品屋+挑喜歡的方向複製」真的會省下很多溝通時間,也比較不會踩雷。
|店家資訊|
地址:台南市東區崇德一街72號6F
電話:06-2602776
Instagram:www.instagram.com/artru.design/
Facebook:https://www.facebook.com/ARTRUDESIGN





















