
除了上一篇文章介紹的柏圖斯酒莊之外,波爾多右岸還有一個很重要的傳奇性酒莊,就是也是位於玻美侯 (Pomerol) 的 Le Pin,據說聯發科的最新旗艦晶片的內部專案代號就是取做 Le Pin。

深耕波爾多右岸的天朋家族 (Thienpont)
講到樂邦酒莊的歷史很難不提到天朋家族。第一代移民是喬治・天朋 (George Thienpont),他生長於比利時,1904 年就加入家族的賣酒事業,當時常常會到波爾多一帶來買酒並進口到比利時賣。對當時的比利時酒商來說,波爾多代表的是右岸地區,包含聖愛美濃 (Saint-Émilion),玻美侯,以及鄰近的衛星產區。到了 1921 年,他買下了位於聖愛美濃,有 30 公頃葡萄園的卓龍夢特堡 (Château Troplong Mondot)。然後在 1924 年,又另外買下了老瑟丹堡酒莊 (Vieux Château Certan)。雖然在 1935 年時,因為當時的經濟大蕭條,他不得不把卓龍夢特堡賣掉,但老瑟丹堡酒莊還是持續經營,並也傳給的他的下一代。今天老瑟丹堡已經是玻美侯地區最古老酒莊之一。
不只是老瑟丹堡,從上圖我們也可以看到,天朋家族的第三代有許多人都是葡萄酒界的重要人物,旗下管理了波爾多右岸好幾個重要的酒莊。其中我們今天的主角,就是在這張圖右下方賈克・天朋 (Jacques Thienpont) 和樂邦酒莊。
1979 年,當時的管理者里昂・天朋 (Léon Thienpont)在玻美侯物色葡萄園,希望可以拓展酒莊,增加老瑟丹堡的產量。他剛好知道鄰居露比女士 (Madame Laubie) 有個一公頃的葡萄園要出售,葡萄園旁有個小而簡陋的酒窖,酒窖旁種了一株看起來很孤單的松樹。里昂知道那塊葡萄園的品質很好,但當時只有一公頃的葡萄園就要價一百萬法朗 (大約是今天的 152,000 歐元),家族的人覺得這個價格貴的無法接受。當時他的姪子賈克・天朋 (Jacques Thienpont) 還在比利時處理家族賣酒的工作,認為對他來說,不但是一個可以有自己的葡萄園來釀酒的機會,這個葡萄園也夠小,即使他一個人也有辦法管理。因此他說服整個家族的人,並跟他父親借了一大筆錢,就把這個葡萄園買了下來。

在當時,玻美侯地區大約有 750 公頃的葡萄園,有大約 180 間酒莊。產量小,玻美侯在當時並不是著名的產區,釀出來的酒單價低,酒莊也就賺不了太多的錢。大部分的葡萄酒農都是繼承祖先傳下來土地的契農,收成葡萄後,按契約提供給合作的酒莊。因為當時整個產區的價值還沒有被帶起來,葡萄農也就沒什麼資金可以投資添購設備,蓋酒窖。對於當時的葡萄農來說,比較明智的選擇可能是把葡萄園變現。因此,後來酒莊的數目也逐年減少,現在玻美侯地區大約只剩下 100 間酒莊。老瑟丹堡酒莊就是少數有辦法堅持下來的酒莊,在當地擁有 14 公頃的葡萄園,而現在玻美侯也成了世界知名的產區,葡萄園價值飆高的每公頃要價五百萬歐元,所以老瑟丹堡光是土地價值就超過 7000 萬歐元。
在查資料的時候,有一些中文的資料會說樂邦酒莊的前手露比女士是個很小氣摳門的人,不願意花錢投資農藥和化學肥料,才讓樂邦酒莊這塊葡萄園是個沒有被化學農藥和肥料給污染的寶地,也才讓他有辦法釀出高品質的葡萄酒。這部分的傳說我找不到英文的資料佐證,所以就不特別提。但我更傾向於相信葡萄園設備的簡陋是因為大環境的關係。當經濟效益還不夠的時候,葡萄農就不願意投資比較先進的設備,和她是不是個小氣的人,我覺得沒有關聯。
從原本小小的一公頃的葡萄園,賈克在往後幾年一點一點的購買周圍的葡萄園,有時候就從一些地主手上買個幾行的葡萄園。時至今日,他已經擁有約 2.7 公頃的葡萄園。但只有最初一公頃葡萄園所產的葡萄他才會拿來釀作樂邦酒莊的酒。賈克不做二軍酒,但他會將不是用來釀樂邦酒莊的酒的其他的葡萄,蒐集三個年份之後拿來作混釀,把它稱為三重奏 (Trilogie),只賣給一些熟客。

樂邦酒莊就在賈克・天朋和亞歷山大・天朋這對堂兄弟的管理下,開始釀造自己的葡萄酒。他們的第一個年份是 1979 年。當時他們可以說是相當的克難。他只有一個二手的 5,000 公升的不鏽鋼槽可以用來發酵,然後從老瑟丹堡拿來了幾個二手法國橡木桶用來讓葡萄酒陳年。不過也因為這樣,居然讓他們意外成了最早在橡木桶中做二次發酵的酒莊。所謂的二次發酵,是在酒精發酵過後,再進一步將葡萄酒液中過酸的蘋果酸轉化成較為柔軟的乳酸,因此讓葡萄酒可以有類似奶油般的口感。當時比較普遍的做法是在不鏽鋼槽做完一次和二次發酵後,再將酒液轉到橡木桶中去做陳年。但因為賈克就只有這麼一個不鏽鋼槽可以用來發酵,一部分的葡萄酒液發酵完後,他必須把桶槽空出來讓下一批葡萄汁可以做酒精發酵,避免那些葡萄汁暴露在空氣中,不得已只好把已經一次發酵完的葡萄酒液直接裝到橡木桶中,在橡木桶中做二次發酵。沒想到因為這樣讓釀出來的酒更為圓潤和柔軟,讓其他波爾多酒莊也開始效法,帶起了在橡木桶中二次發酵的風潮。這樣的做法還有一個好處是讓當年份的新酒在期酒試飲 (en primeur tastings) 的時候,因為酒液和橡木桶接觸的時間相對較長,表現出來的風味也比較圓潤和柔軟,可以賣到比較好的價格。
樂邦酒莊一直都維持低產量,精緻,但是簡單的釀酒手法。賈克關於釀酒的知識都是從他叔叔里昂・天朋那邊學來的,他也遵循著和老瑟丹堡一樣的原則:在種植的時候嚴格的對葡萄藤做剪枝,但堅持不使用人造肥料、殺蟲劑或除草劑。並且在收成期前採用綠色採收,當葡萄葉開始轉色之前,如果產量過剩,透過人工的方式,摘除有瑕疵或是比較不成熟的果實。
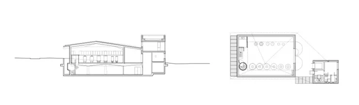
隨著生產的葡萄酒受到肯定,賈克也認為要改善原本釀酒的環境,將原本不知道是像農舍還是倉庫一樣的酒莊整個重建。新的酒莊是由比利時知名建築設計師保羅・羅伯里奇 (Paul Robbrecht) 所設計,在 2011 年落成。新的酒莊也把樂邦酒莊的酒帶到一個新的標準:更好的衛生環境和更精準的溫度和流程控制,並透過重力而不是馬達來移動酒液。所有的葡萄都是人工採收和人工挑選過後,在七個 1,600-4,500 公升的不鏽鋼槽中做酒精發酵兩週後,移到橡木桶中做二次發酵和陳年。18 個月後,不做過濾就裝瓶上市。


風土口味

是什麼讓樂邦酒莊的酒這麼特別呢?和我們前一集介紹過的柏圖斯酒莊一樣,最大的秘密還是在於他的風土環境。位於玻美侯高原 (Pomerol plateau) 的中心,葡萄園在一個南向的斜坡上,可以享受到充足的陽光。上層的土壤含有很大一部分古老的鵝卵石 (ancient pebbles),這在主要是黏土 (clay soils) 的玻美侯產區很少見。下層的土壤則是由石灰岩 (limestone)、礫石 (gravel) 和沙子所組成。梅洛在這裡可以成熟的早,發展出咖啡和黑醋栗的水果香氣。而當時的葡萄酒主流風氣正好因為 Robert Parker 的崛起和逐漸增加的影響力,開始朝向口感豐富,甜美的波爾多紅酒靠攏。知名的法國葡萄酒作家賈克・呂客塞 (Jacques Luxey) 在 1983 年時將樂邦酒莊評為「波爾多的羅曼尼康蒂」,Robert Parker 也在 1986 年出版的「波爾多」一書評給了 1982 年樂邦紅酒 88 分的成績,然後又在 1998 年再版的「波爾多」將 1982 年份修正為滿分的 100 分,可見樂邦酒莊的酒,陳年潛力有多麽的驚人。
樂邦酒莊的酒是和陳年 10-15 年,年輕的年份開瓶後也要醒酒 2-3 小時後,酒才會變得比較柔軟,香味也才會釋放出來。樂邦酒莊的酒通常可以放個 10-35 年,才會釋放出他最大的潛力,到達他的試飲期。
幾個樂邦酒莊最好的年份是:2016, 2015, 2012, 2010, 2009, 2008, 2006, 2005, 2001, 2000, 1998, 1990, 1989, 1985 and 1982。
樂邦的酒有多貴?
樂邦酒莊每年只有 5,000-6,000 瓶的產量,稀少而珍貴。如果我們看台灣 iCheers 網站上的資料,他平均價格大約在 20 萬新台幣上下。2010 年份要 19 萬多,2009 年份要 20 萬,2007 年要超過 24 萬,2005 年便宜一點,也要 18 萬。這樣的平均價格似乎比上一集介紹的酒王柏圖斯更貴。
是什麼原因成就了 Le Pin 的成功
從 1979 年生產第一個年份到現在,樂邦酒莊也不過 40 多年的歷史,但他的成功就像一顆流星畫過天際一樣,突然的出現,然後吸引了大家的目光,是個很傳奇性的故事。從樂邦酒莊崛起的故事我自己有三個小心得:
- 認清自己的能力,專注很重要:樂邦酒莊最讓人津津樂道的就是他堅持小規模的生產,甚至有人說他是車庫酒的始祖。但我覺得讀了很多關於賈克的故事後就會覺得,他是一個不隨波逐流,有自己堅持和匠人精神的人。一公頃的葡萄園在其他人看起來或許太小,但他卻覺得這剛好是他可以處理得來的規模。當他在 1979 年買下樂邦酒莊的葡萄園的時候,他還沒有釀酒的經驗,這樣的小規模正好讓他有機會可以試錯。堅持葡萄的種植、管理和採收都是使用人工,也在一開始就專注在高端市場,努力提升酒的品質。
- 善用資源很重要:開始釀酒的初期,雖然使用的設備很破爛,但賈克懂得善用他最大的優勢,就是天朋家族經營老瑟丹堡的釀酒經驗。老瑟丹堡本身就生產高端酒,這讓賈克在起步的時候就站在一個別人沒有的制高點。雖然釀酒的經驗不多,但他知道一瓶在當時頂級的葡萄酒應該要是什麼樣的風格,他也有足夠的資源可以讓他知道一瓶頂級的葡萄酒要怎麼樣釀成。站在巨人的肩膀上總是可以看得比較遠。這也讓他少走了很多冤枉路,只用了三年的時間,酒莊生產的第三個年份 1982 年,在當時就一砲而紅。雖然葡萄園的風土是影響風格最重要的一環,但有辦法在短短幾年就讓樂邦酒莊的葡萄酒品質到達最頂級的水準,我覺得這個制高點很重要。
- 時機很重要:從上一篇講柏圖斯酒莊的時候我們就知道,玻美侯其實在 1900 年代不算是個頂級的產區,名氣沒有鄰近的聖愛美濃那麼大。而整個產區的名氣其實也是因為柏圖斯酒莊的成功而帶動的。在 1979 年左右的時候,一來柏圖斯的價格已經跟左岸的一級酒莊相當,也就代表玻美侯產區已經有一定的能見度,他的風土是有潛力可以和左岸最好的地塊相提並論的。也是剛好在這個時候,Robert Parker 開始崛起,也是酒評家開始發揮影響力,推升葡萄酒的價格和影響大眾口味的時候。有辦法抓住這個時機點也是樂邦酒莊成功很重要的關鍵。假設他早了十年推出第一個年份,當時玻美侯產區還沒被大眾認可,Robert Parker 也還沒出現;如果晚了十年,一來樂邦酒莊的那塊地可能也買不到了,二來一定有其他酒莊霸榜佔據世人目光,要突圍而出也沒有那麼容易了。所以我覺得樂邦酒莊的成功和當時的時空背景很有關聯。
酒莊基本資訊
- 參訪:樂邦酒莊沒有自己的網站,但或許可透過老瑟丹堡官網的聯絡方式詢問是否可以參訪酒莊。
- 地址:11 Rue la Fontaine, 33500 Pomerol, France
- 怎麼去:樂邦酒莊就在我們上一集介紹的柏圖斯附近。玻美侯附近的大城市是利布爾納 (Libourne)。如果是從波爾多市區出發的話,先搭火車到利布爾納,只需要 20 幾分鐘就可以從波爾多車站 (Gare de Bordeaux Saint-Jean) 搭法國國鐵到利布爾納,然後再轉搭 Uber 大約 10 分鐘車程就可以到樂邦酒莊。如果是開車的話,大約 40 分鐘左右就可以從波爾多市區到樂邦酒莊。
- 網站:https://www.thienpontwine.com/en/
- IG:https://bit.ly/3zom8K4



















