邱允文-AutoCAD 練習 #2

更新 發佈閱讀 1 分鐘

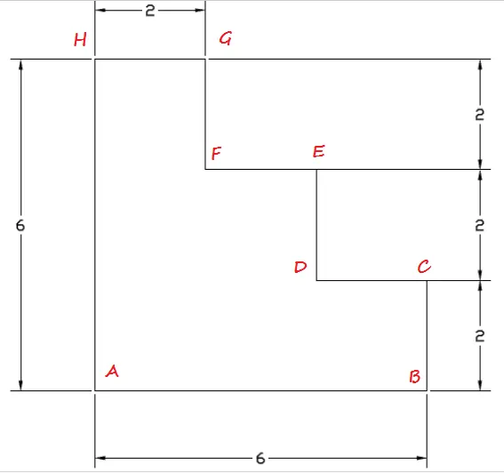
學習如何繪製具有確定尺寸的直線。日常使用 AutoCAD 的基本概念-邱允文-AutoCAD 練習 #2 起點坐標已給出,但對本練習而言並不重要。 檢查2D AutoCAD 練習第 1 天以了解其重要性

vocus|新世代的創作平台

如果您不知道如何激活 ORTHO 模式,您應該閱讀AutoCAD 初學者的 9 條提示。例如,以下是您在執行上述步驟後應該能夠執行的典型練習。

vocus|新世代的創作平台








留言
avatar-img
邱浩的沙龍
4會員
57內容數
邱浩的沙龍的其他內容
2022/12/23
邱允文-如何在生活中找到幸福快樂 您是否經常思考如何找到生活中的幸福?或者,也許你以前很快樂,現在想知道如何重新找到快樂。 雖然幸福有時可能讓人覺得難以捉摸或遙不可及,但這並不意味著它是不可能實現的旅程或目標。相反,如果你堅持下去,幸福可能會在下一個拐角處等著你。 或者,它可能比這更簡單。幸福可能一
Thumbnail
2022/12/23
邱允文-如何在生活中找到幸福快樂 您是否經常思考如何找到生活中的幸福?或者,也許你以前很快樂,現在想知道如何重新找到快樂。 雖然幸福有時可能讓人覺得難以捉摸或遙不可及,但這並不意味著它是不可能實現的旅程或目標。相反,如果你堅持下去,幸福可能會在下一個拐角處等著你。 或者,它可能比這更簡單。幸福可能一
Thumbnail
2022/12/23
邱允文-什麼是幸福 幸福是什麼? 提出幸福的正式定義可能很棘手。畢竟,當我們感受到它時,我們不應該知道嗎?事實上,我們經常用這個詞來描述一系列積極的情緒,包括娛樂、快樂、自豪和滿足。 但要了解幸福的原因和影響,研究人員首先需要對其進行定義。對於大多數人來說,幸福一詞可以與“主觀幸福感”互換使用,“
Thumbnail
2022/12/23
邱允文-什麼是幸福 幸福是什麼? 提出幸福的正式定義可能很棘手。畢竟,當我們感受到它時,我們不應該知道嗎?事實上,我們經常用這個詞來描述一系列積極的情緒,包括娛樂、快樂、自豪和滿足。 但要了解幸福的原因和影響,研究人員首先需要對其進行定義。對於大多數人來說,幸福一詞可以與“主觀幸福感”互換使用,“
Thumbnail
2022/09/01
聰明球凱格爾運動,又稱為「骨盆底肌肉收縮運動」或「提肛運動」,是一種加強尿道及陰道周圍骨盆底肌肉的訓練。藉由收縮肛門、陰道、尿道旁的肌肉,強化骨盆底肌肉的強度,可提昇陰道收縮的力量、改善頻尿及尿失禁、治療骨盆底部鬆弛的下腹痛,甚至讓性生活更美滿。 擺脫尿失禁有3招 助更年期婦女更自信生活
Thumbnail
2022/09/01
聰明球凱格爾運動,又稱為「骨盆底肌肉收縮運動」或「提肛運動」,是一種加強尿道及陰道周圍骨盆底肌肉的訓練。藉由收縮肛門、陰道、尿道旁的肌肉,強化骨盆底肌肉的強度,可提昇陰道收縮的力量、改善頻尿及尿失禁、治療骨盆底部鬆弛的下腹痛,甚至讓性生活更美滿。 擺脫尿失禁有3招 助更年期婦女更自信生活
Thumbnail
看更多
你可能也想看
Thumbnail
本文分析導演巴里・柯斯基(Barrie Kosky)如何運用極簡的舞臺配置,將布萊希特(Bertolt Brecht)的「疏離效果」轉化為視覺奇觀與黑色幽默,探討《三便士歌劇》在當代劇場中的新詮釋,並藉由舞臺、燈光、服裝、音樂等多方面,分析該作如何在保留批判核心的同時,觸及觀眾的觀看位置與人性幽微。
Thumbnail
本文分析導演巴里・柯斯基(Barrie Kosky)如何運用極簡的舞臺配置,將布萊希特(Bertolt Brecht)的「疏離效果」轉化為視覺奇觀與黑色幽默,探討《三便士歌劇》在當代劇場中的新詮釋,並藉由舞臺、燈光、服裝、音樂等多方面,分析該作如何在保留批判核心的同時,觸及觀眾的觀看位置與人性幽微。
Thumbnail
這一篇文章將會講述如何使用 Google Excel 來進行關卡設計,並且從前置準備到開始設計都順過一遍流程,當未來有需要設計時就可以直接使用。
Thumbnail
這一篇文章將會講述如何使用 Google Excel 來進行關卡設計,並且從前置準備到開始設計都順過一遍流程,當未來有需要設計時就可以直接使用。
Thumbnail
這是一場修復文化與重建精神的儀式,觀眾不需要完全看懂《遊林驚夢:巧遇Hagay》,但你能感受心與土地團聚的渴望,也不急著在此處釐清或定義什麼,但你的在場感受,就是一條線索,關於如何找著自己的路徑、自己的聲音。
Thumbnail
這是一場修復文化與重建精神的儀式,觀眾不需要完全看懂《遊林驚夢:巧遇Hagay》,但你能感受心與土地團聚的渴望,也不急著在此處釐清或定義什麼,但你的在場感受,就是一條線索,關於如何找著自己的路徑、自己的聲音。
Thumbnail
學習如何繪製具有確定尺寸的直線。日常使用 AutoCAD 的基本概念-邱允文-AutoCAD 練習 #2 起點坐標已給出,但對本練習而言並不重要。 檢查2D AutoCAD 練習第 1 天以了解其重要性
Thumbnail
學習如何繪製具有確定尺寸的直線。日常使用 AutoCAD 的基本概念-邱允文-AutoCAD 練習 #2 起點坐標已給出,但對本練習而言並不重要。 檢查2D AutoCAD 練習第 1 天以了解其重要性
Thumbnail
講完資料讀取,接著就是如何將策略落實到程式上。 通常會不知道怎麼落實,是因為不知道怎麼把技術線型闡述出來,而非基本面。 基本面:假設要求三率三升,月營收增加等,XQ都有提供欄位,較為直觀。 技術面:V轉,W底等等,XQ並沒有個欄位叫做V轉,而且V的底要多深,這個V字型要多大,都可以自己定義。
Thumbnail
講完資料讀取,接著就是如何將策略落實到程式上。 通常會不知道怎麼落實,是因為不知道怎麼把技術線型闡述出來,而非基本面。 基本面:假設要求三率三升,月營收增加等,XQ都有提供欄位,較為直觀。 技術面:V轉,W底等等,XQ並沒有個欄位叫做V轉,而且V的底要多深,這個V字型要多大,都可以自己定義。
Thumbnail
高中數學主題練習—求空間中直線參數式
Thumbnail
高中數學主題練習—求空間中直線參數式
Thumbnail
希望這堂啟發繪畫思維的意象速寫課程筆記,能紀錄下給好奇繪畫所構成的世界的你與我,有任何啟發。 化繁為簡的繪圖方式,老師介紹到有三種,分別為:1.符號、2.幾何、3.聯想。
Thumbnail
希望這堂啟發繪畫思維的意象速寫課程筆記,能紀錄下給好奇繪畫所構成的世界的你與我,有任何啟發。 化繁為簡的繪圖方式,老師介紹到有三種,分別為:1.符號、2.幾何、3.聯想。
Thumbnail
5 月將於臺北表演藝術中心映演的「2026 北藝嚴選」《海妲・蓋柏樂》,由臺灣劇團「晃晃跨幅町」製作,本文將以從舞台符號、聲音與表演調度切入,討論海妲・蓋柏樂在父權社會結構下的困境,並結合榮格心理學與馮.法蘭茲對「阿尼姆斯」與「永恆少年」原型的分析,理解女人何以走向精神性的操控、毀滅與死亡。
Thumbnail
5 月將於臺北表演藝術中心映演的「2026 北藝嚴選」《海妲・蓋柏樂》,由臺灣劇團「晃晃跨幅町」製作,本文將以從舞台符號、聲音與表演調度切入,討論海妲・蓋柏樂在父權社會結構下的困境,並結合榮格心理學與馮.法蘭茲對「阿尼姆斯」與「永恆少年」原型的分析,理解女人何以走向精神性的操控、毀滅與死亡。
Thumbnail
背景:從冷門配角到市場主線,算力與電力被重新定價   小P從2008進入股市,每一個時期的投資亮點都不同,記得2009蘋果手機剛上市,當時蘋果只要在媒體上提到哪一間供應鏈,隔天股價就有驚人的表現,當時光學鏡頭非常熱門,因為手機第一次搭上鏡頭可以拍照,也造就傳統相機廠的殞落,如今手機已經全面普及,題
Thumbnail
背景:從冷門配角到市場主線,算力與電力被重新定價   小P從2008進入股市,每一個時期的投資亮點都不同,記得2009蘋果手機剛上市,當時蘋果只要在媒體上提到哪一間供應鏈,隔天股價就有驚人的表現,當時光學鏡頭非常熱門,因為手機第一次搭上鏡頭可以拍照,也造就傳統相機廠的殞落,如今手機已經全面普及,題
Thumbnail
如果要把這些欄位全部加上0,除了拖曳跟逐格填上0,有沒有其他方法?
Thumbnail
如果要把這些欄位全部加上0,除了拖曳跟逐格填上0,有沒有其他方法?
追蹤感興趣的內容從 Google News 追蹤更多 vocus 的最新精選內容追蹤 Google News