
老人 住宅無障礙之家-提案設計
設計單位:黑崧空間
案件類型:老屋翻新
用途:無障礙住宅空間
位置:宜蘭市
面積:約28坪
「老人 住宅」又稱為終老無障礙住宅,這樣的空間的設計除了改善現有的空間幫助居住者方便使用外,也須考量未來有輪椅使用以及有主要照顧者幫助的需求,將初老到終老的需要都反映在空間上。
原住宅是一近40年老公寓的一樓空間,內部原有2房2廳2衛,廁所及廚房街外推至後陽台。屋主約60歲左右,健康狀況還算不錯,但因過去有幾次為要去廁所跌倒的經驗,後輩決定重新整理房屋,讓屋主母親,可以安全的在家終老。
原住宅的問題主要有幾項:
- 房間與衛浴設備、廚房的距離過遠,且後陽台外推處有高差,有跌倒風險。
- 廚房及廁所外推至後陽台,因防盜心理,門窗較少開啟,部分窗扇外側以鐵皮遮掩,導致室內採光、通風不良。

現況平面-現況問題
我們羅列在此次設計的重點:
- 主要起居室房間)需容易移動至衛浴與廚房。
- 主要動線、空間需有可暫時休息的支點,如扶手或扶手高度的櫃體。
- 各空間出入口與動線至少淨寬85~90公分,方便輪椅出入。
- 衛浴設備需可容納兩人,並設置扶手,地面也需做防滑處理。
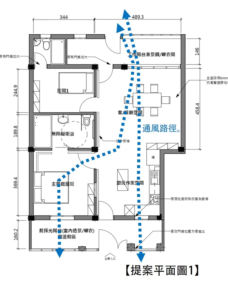
- 地坪鋪設抗衝擊塑膠地板,地坪也不能有高差,以防跌倒及受傷。
- 改善室內的通風及採光,提升室內的舒適度。

提案平面方案1-設計說明

提案平面方案1-通風路徑

提案平面方案2-通風路徑






















