1.全室系統櫃+木作
2.廚房格局做小變更3.廚具修改要增加洗碗機
左下水槽櫃寬90改80CM
人造石檯面拆下補結構
原寬50CM抽屜櫃拆除改放60CM洗碗機
爐台櫃增加拉籃(原廚具只有隔板)
壁面2邊增加烤漆玻璃








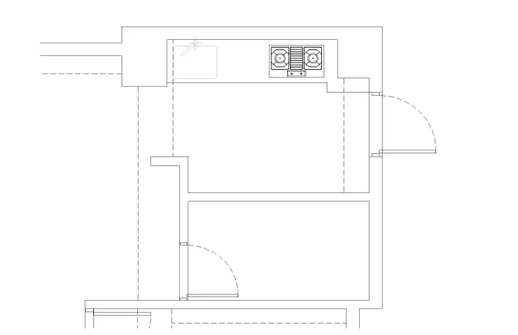
平面規劃示意圖

原廚房格局....

更改後......

廚具修改的部份.....




廚具修改後......

1.全室系統櫃+木作
2.廚房格局做小變更3.廚具修改要增加洗碗機
左下水槽櫃寬90改80CM
人造石檯面拆下補結構
原寬50CM抽屜櫃拆除改放60CM洗碗機
爐台櫃增加拉籃(原廚具只有隔板)
壁面2邊增加烤漆玻璃








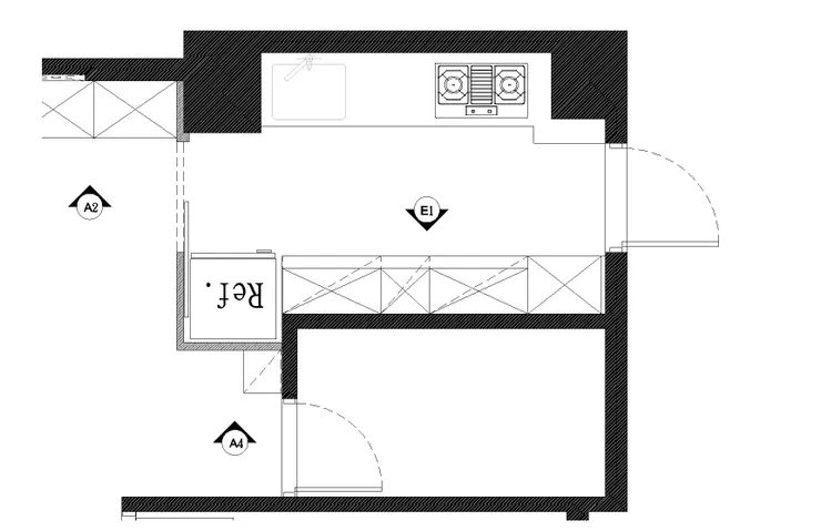
平面規劃示意圖

原廚房格局....

更改後......

廚具修改的部份.....




廚具修改後......






















