哥哥小孩要來高雄讀大學了!我們在高雄老家有一間在一樓的老公寓,打算重新翻修給小孩們求學住宿用,住在一起也有伴互相照顧!因為我哥平常在台東打理民宿,所以這次翻修主要是交給我監督~
▼老家之前是出租,有十幾年了,現在收回來整理翻新。

▼屋況滿舊了,階梯有裂要處理。

▼牆壁貼紙是房客的居住痕跡。


▼壁癌漏水。

▼廚房和衛浴也老舊了。


▼臥室有兩間。


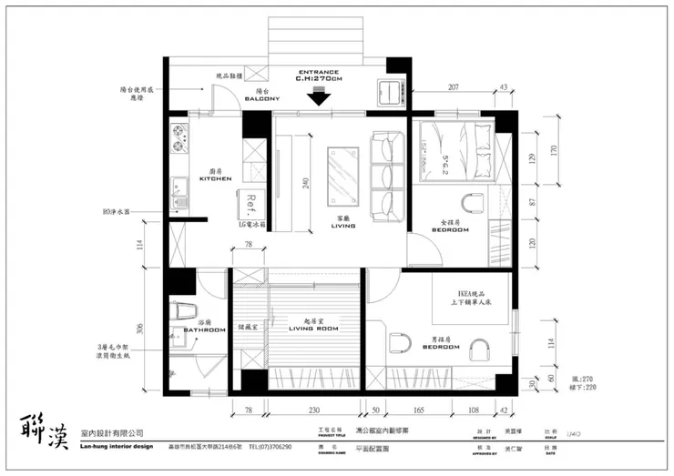
平面配置。
▼格局照舊只是裝潢翻新,臥室一間給女生,一間給男生。
聯漢室內設計是我哥合作很久的設計公司,我哥在台東經營兩家民宿,都是給聯漢操刀設計,互動和成果都讓我哥很滿意,所以這次老屋翻新交給他們很放心~

裝潢過程。
▼把不好的牆壁都打了,水電也全部換新重牽!





▼泥作工程~上水泥做粉光。


接下來輪到我出馬!和設計師一起去挑磁磚、地板等等的裝潢材料~基本上是設計師給提議,我來下決定。
▼挑完!北歐混搭現代風的組合,相信不管大人小孩任何年紀都會喜歡❤️






▼鋪磁磚工程。


▼師傅整地中,要準備鋪地磚。


▼木作工程~櫃子也是量身訂製!好期待完工!





▼油漆大部分是用白色~一個空間只有單面牆用跳色,設計師說這樣可以做一點層次變化,我們要維持也比較簡單不用費心思。


完工開箱
快馬加鞭來到完工日!(家具陸續到~還在整理有點亂)
-大門-
▼階梯重新做、大門換烤漆防盜門,整體好有質感,喜歡!!

▼洗石子材質的階梯,結實耐用。

▼格柵烤漆大門,搭配電子鎖,小孩們在外唸書我們才放心!

▼玄關長廊煥然一新,老舊時代感byebye 👋

▼剛好廠商來安裝洗衣機。

-客廳-
▼現代簡約風~這下終於獲得年輕人點頭願意住了!

▼色系中性最耐看,乾淨大方,同學來訪也不漏氣。

▼兩層窗簾,白天可透光也保有隱私,畢竟在一樓。

▼廠商設定電視中。(電視牆也滿不錯的,有層次讓整個空間不會顯得很平面)

-起居室-
▼這裡算和式房,裡面還有一小塊置物空間。可以當客房,我們來也有地方住~

▼長虹玻璃門,平常可以拉起來阻隔冷氣飄散。

▼裡面安裝了吊隱式冷氣。

-廚房-
▼廚房也大變身!裝了LG人造石檯面+結晶鋼烤門櫥櫃,以及林內雙口IH爐和烘碗機!還有大冰箱!

▼也裝了廚下淨水器!設備這麼齊全,不自己煮太可惜了,趁現在抓緊廚藝特訓班😆

-衛浴-
▼強烈的黑白撞色!現代感十足。拆掉浴缸,改成乾濕分離更加實用。

-女生房-
▼溫馨小臥室,就差雙人床墊到來,其他佈置等小女生自己發揮啦~

-男生房-
▼俐落簡潔,放了一張上下鋪,雙胞胎兄弟一起睡!


▼整理後的新窗台,可以種種小盆栽,培養點雅興。

▼好特別,第一次看到這麼簡約的門擋!這樣門後地板也能放置比較窄的收納櫃。

▼最後是火災警報器,我們覺得很重要,每個空間都有安裝!!

老屋翻新終於完成了!看著煥然一新的空間,心中充滿了感動與感謝。尤其感謝設計師的用心!專業的設計規劃、細心的施工品質、完善的售後服務,都讓我們非常滿意。小孩們也即將入住,相信他們也一定會喜歡這個充滿溫馨與愛的家,度過充實而美好的求學生活~
⬇️⬇️⬇️
風格:北歐風、現代簡約風
坪數:28坪,3房1廳1廚1衛
價格:385萬(含水電、泥作、大門、系統櫥櫃、木作、廚具、裝修、油漆、拆除、拋光石英磚、大理石工程、鐵件、採光罩、鋁門窗)
售後服務:協助進家具、家電
設計公司:聯漢室內設計有限公司
地址:台東縣台東市衡陽路128巷40號
電話:0921233330/0970749330


