猶豫買房好幾年…價格一路往上,蛋黃永遠是蛋黃,我姊說自住覺得價格可以就買了吧!買房要一股衝動,趁這波撩落去了!
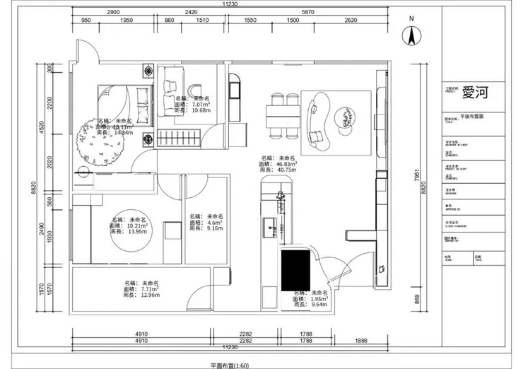
▼我個性喜歡一次到位,預算內盡量往大坪數買,未來結婚生子不用傷腦筋空間小。直上入手3房2廳2衛新成屋,可以看到愛河夜景,機能好。

▼原屋況,就是一般新成屋的樣子,有基本系統櫥櫃、衛浴,但廚房很封閉,想改成開放式。





第一間屬於自己的房子,其實心情很雀躍,什麼都想要好,裝潢設計也希望有特色,不想就用系統櫃帶過!
看了很多設計作品,選了三家高雄室內設計,接洽了解後決定給這間好事室內裝修做,主要是設計風格對口味,面談之後設計師也很好聊,有切中我腦海中想要的住家畫面。
▼玄關櫃和中島吧台是我最愛的設計,看到3D圖就覺得新家一定要有它們!



▼但施工上也不容易,石英石中島吧台大U字型加工,設計師說要把石頭美縫拼接並異形加工,是非常費工夫的,很考驗師傅的功力,然而完成後,會非常有質感,將開放式餐廚房,提升到不一樣的檔次,顯得更大氣高級。

▼期待完成品!

▼玄關櫃太美了…看3D圖時美歸美但沒有真實感,現在看了成品很驚艷!給讚當初決定要做的自己!!

▼屋內有許多大樑,如何設計木作天花板及實際施作,都是一大考驗,因此設計師運用許多圓角、圓弧元素來消化。
從設計到施工,設計師就得先依現場所需要弧度準確丈量及繪製圖面,再請加工廠雷射切割弧形骨料,進而讓木工工班做現場施作結合,需切割及修飾的部分就很多,才能夠美化我想避開的大樑,也是整場裝潢最困難的地方。


還沒正式交屋(裝潢細清中),不過等不及就先來看完工!照片我順手拍的,實品真的很美…可惜我拍不出來…
▼玄關當初這樣設計是為了解決穿堂煞,但我又不想要太一般的設計,所以設計師幫我想了一個很特別的圓弧框型腰身,連接了鞋櫃、置物櫃、屏風櫃,一進家門就覺得新家很有設計感!

▼大樑弧形處理,成果相當高級,極力保留樓高,也多了一份層次與細緻度!

▼電視櫃角和背牆繼續使用圓弧角元素,牆面使用司曼特特殊塗料,多了一股沉澱的平穩氣息。

▼另一側則是新家裝潢大重點!開放式廚房的大U字石英石中島,成品超讚!!

▼因為我想要比較沉穩的感覺,所以櫃門改成深藍色,並搭配金屬邊框(玫瑰金拉絲)系統櫃皮革門片,質感無與倫比!!連我姊看過也說想搬回家(抱歉啊只能過過眼癮這我的搬不走哈哈)


▼房間則以極簡與功能性為主。

▼主臥室,大面牆櫃體,其中一片櫃門以格柵形式呈現,搭配跳色變化,簡約中體現設計感。

▼床頭背板延續弧形元素,配置雙邊插座與床頭燈具開關,簡單舒適的主臥出爐!

▼次臥一,一體式的系統衣櫃和書桌,未來會做小孩房,目前我先當辦公室。


▼次臥二,溫和大地色系櫃體,同樣使用格柵門片變化。


▼窗戶做L型櫃,是收納也是臥榻。這間目前做客房,爸媽來或朋友來有房間過夜。

▼衛浴,我也有做小變化,有發現櫃子顏色不一樣嗎!我把原本3D圖用在中島的淺藍換到廁所來!之前是木紋色覺得太死板,現在淺藍點綴覺得廁所整體更加清新!

簡單開箱就到這裡,我也要來打包入住了!希望大家也能盡快買到理想的家!如果對裝潢上或其他有什麼問題,歡迎私訊或留言!
房子格局:3房2廳2衛新成屋
室內坪數:約27坪
裝潢費用:約180萬元(含設計)
裝潢細項:室內設計、保護工程、系統櫃工程、木工工程、水電配置工程、廚餐廳改造工程、櫥櫃包膜換色、房門烤漆換色、燈光照明設計工程、房屋精緻清潔
設計公司:好事室內裝修工程
地址:高雄市三民區清朗街12-1號1樓
電話:07 976 6162
營業時間週一到五9:00–17:00























