終於輪到艾薇我分享自己家了!好激動也好感動有了屬於自己的家,還有我新出爐的老公~~哈哈前身份是多年男友😆
我們買的是新成屋大樓,社區內是安靜的居住環境,走到大馬路則是熱鬧的機能地區,有餐廳、超市、健身房等等,整體來說我們覺得是非常棒的地點!
┃房子原樣
▼格局是2房2廳大約23坪。室內最大的缺點大概就是一進門就見廚房😂好赤裸!




目前對小孩的共識就是隨緣,所以優先考量兩人的裝潢和使用需求,未來如果真的有驚喜再改變也不遲~另外我們也需要書房和獨立更衣室~老公需偶爾在家工作,而我是衣服多到會被朋友當服飾商,非常需要自己的更衣室!
裝潢需求如下:
1、希望進門有玄關,也希望避免直接看見廚房。
2、玻璃隔間書房,老公說工作也想要能融入客廳的生活感。
3、更衣室空間,並且要有化妝台因為會每日上妝。
4、800L敲敲門大冰箱需求,喜歡到好市多一次大採購!
5、電子衣櫥需求,幫外套除臭除濕,當香香人!
6、原始隔間不對稱,讓公共空間不太好利用。
7、喜歡弧形設計、奶茶色、與眾不同的設計!
┃設計敲定
由於嚮往與眾不同的家很久了~這次終於能在自己的家天馬行空😆和設計師來來回回討論好多次,比如在哪裡想用弧形設計、在哪裡來個不一樣的小巧思。
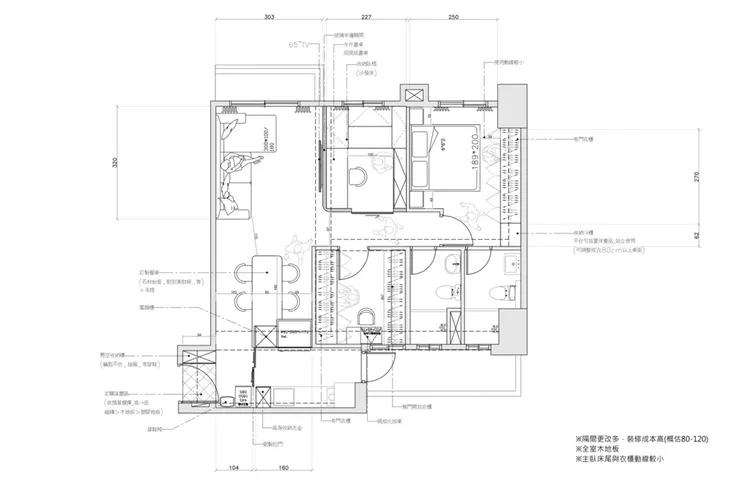
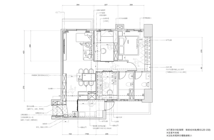
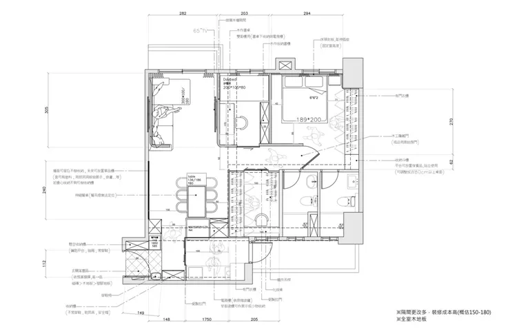
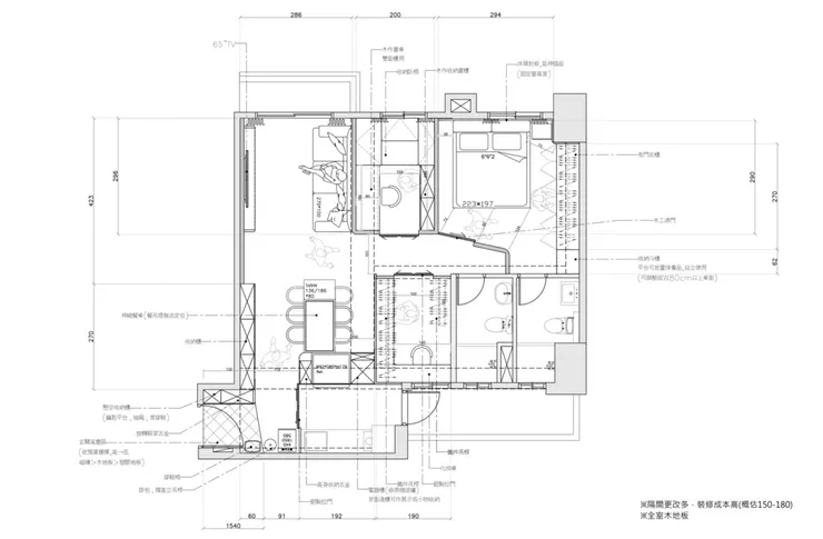
▼設計師也很用心,光是平面配置圖就出了四張給我們!裝潢預算從80-120萬、120-150萬、150-180萬的都有,讓我們比較好抓資金,或是再擠一擠完成自己想要的規劃!




▼定稿差不多用了一個月時間,期間設計師一直被我訊息轟炸🤣逛裝潢分享社團、dcard、01等等,看到喜歡的就傳給設計師幫我看看能不能加進去!每天想法都有點小變化,而我老公讓我自由發揮,他的書房不要忘記就好!如此這般融匯成最後定案~~


▼3D圖~部分家具有標記尺寸,讓我們可以提前選購,到時候就能快快入住啦❤️










┃裝潢過程
▼不對稱隔間拆除,之後會再變成我的更衣室。

▼重作隔間並塞入隔音棉。


▼我們做了很多木工,因為用了很多弧形設計,相信絕對不會和別人的房子撞衫😆


▼斜的隔間屏風牆,在彎的地方做個弧形,好期待最後呈現出來的效果,這也是設計師幫我們想出來的設計小巧思,比起90度直角隔間,這樣更有變化也符合弧形的柔和感,跳脫直板板的線條!


▼對面也是變斜切~

▼這個置物櫃也是我們好喜歡的設計😍木工師傅做了很久,我喜歡它圓圓的可愛,而我老公喜歡它的獨一無二,外面真的找不到也買不到!

▼哇😍我的夢幻電視層板~真的做出來了耶!!我們還特地跑到工廠看怎麼做的,一層一層木板疊黏起來,再切割出設計師畫好的形狀,很像把雲朵打扁了~




▼建商附的系統櫥櫃,為了統一風格,櫃門請木工師傅重新製作,是高雅的淺灰色~

▼往外多安裝一片人造石平台,更多流理空間使用...也是因應我們遇到的裝潢災難(繼續往下看😂)

廚房差點發生的裝潢災難😭是建商的問題,差點沒了我們的洗碗機!施工中發現廚房水槽下方的排水管管線走向怪異,居然是90度的!設計師說這樣如果大量用水可能會導致反湧或流很慢,所以洗碗機只能安裝在流理台右側,最後大改設計增設新的人造石平台並在下方規劃洗碗機,事件才完美解決!
▼奇怪走向的排水管。通常洗碗機會放在中間的位置,水槽排水管不應該經過這裡,設計師說這樣不正常

▼正常排水管應該要像這樣👇
(感謝同社區先施工的鄰居們分享,讓後施工的我們有機會趁早修正圖面。)

▼淨水器~可以直接出熱水,冬天想喝暖飲方便多啦~

▼敲敲門大冰箱!還有自動製冰功能。

▼冷氣戶外飾管。

主臥洗手台底下的浴櫃,擋住醜醜的下水管。
▼安裝前。

▼安裝後。

▼安裝燈具~即將完工啦!每天看著新家一點一滴變成夢想中的樣子,我和老公越來越期待入住!

今天搬家具進來,搬家工人不小心蹭到裝潢,還好設計師說有包含入住後油漆和特殊塗料修復,鬆了一口氣!太貼心了~~
▼修復前。

▼修復後。

┃新家開箱
▼先給大家看一下新家room tour影片,東西還沒整理好,還很亂~不過想先讓大家大致了解格局方位。
接下來就是設計師給的美美照片啦!
◈玄關◈
▼我們是全室木地板,所以玄關地板沒有做落塵區隔,而是用隔牆做出一個小空間,同樣滿足落塵區的功能。

▼置物櫃完成的樣子,好喜歡❤️搭配一盞精緻的玄關燈,與同為圓弧造型的穿鞋椅,並將牆面漆上清水模特殊塗料,讓玄關空間多了一份沉澱的味道,也讓我們回家時可以做一個心情轉換,壞情緒扔在門外~


▼燻粉色線版屏風也完美遮擋直視廚房的視線!

▼另一個斜角隔牆是用富美家磁性板,可以當作留言板或備忘板~反面也妥善利用做了洞洞層板,可以掛廚房生活用品!

▼隔壁則是電子衣櫥,出入隨手穿脫外套,動線很順暢。

◈廚房◈
▼一字型廚房~樣樣俱全!
設計師將採光較差的客房牆壁拆掉,更多空間留給廚房和餐廳使用,所以我們多了放冰箱和電器的收納空間。

▼額外添加的人造石平台底下也放置了必須的洗碗機。

◈餐廳◈
▼依原先格局是沒有現在這麼寬敞的餐桌空間,感謝設計師幫我們重新規劃配置,才能在滿足我們的需求下,又讓廚房和餐廳繼續在一起,用餐、收拾的動線很流暢!


◈客廳◈
▼在家待得最久的地方~白天不用開燈就很明亮,採光通風極佳!

▼天花板做了一圈間接照明,特別有氛圍~


▼電視牆簡單乾淨,搭配一些特色點綴,是我和老公一直很喜歡的感覺!

▼花了木工師傅很多心思的電視層板~我的最愛~同樣刷上特殊塗料,圓圓的感覺又軟又有高質感,我閨蜜看過之後也很想復刻同款在她家😆

▼格柵門板、暖色奶茶色調、充滿日式感的置物櫃,目前裡面已放了不少我們出國帶回來的各種愛好小收藏!

▼軟Q軟Q大沙發、客廳必備!當初看它覺得好像一塊塊大豆腐,又很好坐好躺就帶回家了!

◈書房◈
▼老公需要的書房,圓弧設計好好看😍是溫柔款的書房,感覺在裡面工作都溫馨了起來!


▼從玻璃可以直接看到客廳、電視,少了封閉感。老公說如果在家工作還可以一心多用(追球賽之類的🤣)

▼裡面也放了一張單人床,兼具客房的功能...另外和老公吵架了也可以叫他到書房睡哈哈哈!


◈化妝更衣室◈
▼專屬化妝更衣室get~~可以完全滿足我愛好之一的空間❤️


▼雖然我明面上是美食吃貨,但私底下可是很愛穿搭~外套多、衣服多,每晚嗜好就是搭配明天一早的全身穿搭,從衣服飾品到鞋子,再畫個美美的妝容,亮麗出門!


▼終於有專屬化妝檯,可以完全收納我的美妝品了~也可以舒服地精雕細琢妝容。

◈主臥室◈
▼柔柔的奶白色主臥,讓人感到心平氣和的睡眠空間。

▼我和老公一人一組床頭櫃、小夜燈和插座,使用起來順手方便。

▼主臥內的衣櫃主要是放老公的衣服...但我看還有空間...嘿嘿。

▼這張小桌子是我的保養專區,習慣把化妝和保養切開來(蝴蝶結椅子是不是很可愛~一眼看到很喜歡就買了!)

▼設計師在上方幫我裝了線燈,不會佔據桌面的空間,鏡子也是折疊式的,需要再打開,這樣進房門就不會直接照到鏡子。

┃入住心得
搬進新家差不多3個月,很享受和老公的兩人世界🥰加上新家全部是符合我們自己心意的裝潢和設計,住起來更幸福了~~好感謝設計師幫我們完成這麼完美的新家!一起和大家分享我們的開心!也祝福大家都能住進心滿意足的房子~
┃設計公司
三行設計
粉專:https://www.facebook.com/threerow/
台南辦公室
台南市中西區民生路一段100號

























