住了一年多,應該可以發表一些裝潢的心得。40年老公寓幾乎全部打掉重新翻修。
我算是DIY能力很強的人,從開發工程師起,就是動手修車、動手加工製造零件、動手組裝樣品車。到後來從接觸大型車生產線,管理生產線!基本上大部分製程,一直到打磨補土噴漆板金車內裝潢全部都接觸了,沒有專門的師傅厲害,可是學術理論知識跟多面向看問題這一點應該勝過現場師傅。家裡要裝潢,不放心讓設計師全權操刀!畢竟設計師角度跟實用派工程師看法完全不同!大部分設計師是從"視覺美感"出發,再妥協實用性!工程師是"實用性"出發,再妥協視覺美感!所以,我是自己畫圖,自己規劃,出3D,然後請設計師修飾!天馬行空的跟設計師討論,通常要改非常多次才會接近客人要的樣子。直接給規劃圖跟3D,設計師可以很快的了解你要的模樣。當然也會省一些費用!
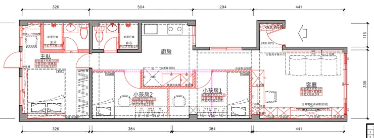
從自己丈量全屋尺寸,繪平面圖,2D平面規劃開始,我畢竟是學機械製圖,並不知道裝潢的圖怎樣畫怎樣標示,就用"自己認為"容易理解的方式畫圖

後然後用機械工程繪圖軟體繪製3D,然後做了一個簡單的裝潢說明書給裝潢公司參考。

這是非常早期的版本,因為有一些問題我不知道怎麼克服,譬如我希望有自己的工作桌,但是空間上不允許!客廳擺放大型家具,冰箱飲水機之類的,空間上縮減很多!於是跟設計師討論之後,更改了部分設計!犧牲一些小孩房的空間,增加了廚房餐具櫃與放冰箱的空間,客廳加了我的個人工作桌!不得不說,專門的設計師經驗多,對空間的想像也好,我非常滿意這樣的變更,於是修改了設計圖。大方向就這樣確定,剩下都是小細節的修改。

裝潢的過程,除了水電讓我非常不滿意之外,其餘都算愉快。不過裝潢公司也很負責的換了一組水電!撇除增加的費用,第二組水電救場救的蠻好的,總算是把問題都處理完。其實第一組水電施工的時候我就蠻多意見,可是通常我不會說太多。畢竟這不是我的專業,我也不是包頭。把師父弄得不開心也沒好處,只能不斷地提出疑問,間接的提醒!
再來是我對老屋裝潢的建議!
第一點,如果樓層高度夠,務必重作天花板!重新裝潢後,格局改變,加上舊公寓牆內預留的線孔很細,重配燈具、開關、插座等等會受到非常大的限制!重作天花板,線不要再走舊的管槽,走天花板喜歡怎樣走就怎樣走,喜歡拉幾條線就拉幾條線,迴路要怎樣拉救怎樣拉,燈具想開哪裡就開哪裡,省工省事非常多。
一開始想省錢,沒有平釘天花板,實務上配電要符合現代人的需求,電線會比舊房原本的配線多非常非常多,根本塞不下,後來為了施工方便還是決定整個平釘,解決一開始配線配的亂七八糟的問題。
第二點,收納空間非常重要,寧可多不要少!很多設計師會說高處不需要做收納櫃。會放在那種地方的東西大概率你也不會再用。這句話我認為對一半!因為現在都是小戶型,收納空間很少,通常都不夠用。退一萬步來說,做了要用就有,沒做就沒機會用!
最現實的收納空間考量就是冬季跟夏季。床單被套通常會有2套交換使用。冬天的棉被、床單、被套,一個人兩套。這個非常的占空間,通常可以放滿整個床架底下都不一定夠放!
衣櫃也是,我認為一個人至少需要一個90公分寬的衣櫃才夠用!女生可能需要120公分以上。這是常態穿的衣服,你會需要另一個空間擺放換季的衣服。冬天厚衣服、外套等等,非常非常佔空間。
如果你家的收納空間,確定可以容納居住人數的冬季棉被、床單、被套2套+冬季的全部衣物。這樣再來考慮放棄高櫃。不然千萬別放棄,高櫃拿來放行李箱都好,行李箱佔空間又少用。
如果空間上允許,有個比較高的收納櫃非常不錯,我們是拿來當清潔用具櫃,收納吸塵器、掃把等等器材,非常實用。我客廳滿滿的收納櫃,可是還是不夠用!棉被、被單、外套等等冬季的東西,超出預期的佔空間。
先分享一小部分,有空再慢慢分享其他心得!
附上3D模擬圖



















