台南系統櫃裝潢40萬內完工?完成不可能的任務

更新 發佈閱讀 5 分鐘
vocus|新世代的創作平台

今天要來跟大家分享一個很溫馨的小故事,也順便開箱我弟弟和弟媳在台南的新家啦!

弟弟跟弟媳北漂工作了一段時間後,最後還是決定回到熟悉的台南定居。現在兩個人都在南科上班,作息穩定、生活節奏也很一致,對他們來說,能住得近、生活舒服才是最重要的事。

他們在永康找到一間地點相當不錯、距離上班又近的房子,實際室內空間約 15 坪,規劃為 2 房 1 廳 2 衛 2 陽台,另外還附有一個平面車位。以目前兩人世界來說非常夠用,也保留了未來有小孩再換房的彈性。



小資夫妻裝潢設定|重視實用、不做過度設計

💡 裝潢方向先說清楚:

因為未來有換屋計畫,他們在這次裝潢時就很明確設定目標——

「現在住得舒服、動線順、收納夠用就好,預算一定要控制住。」

這次全室空間規劃找的是我介紹的 全境空間規劃 阿石設計師

我會推薦他,主要是因為他真的很懂年輕夫妻的需求,不會為了設計而設計,也不會硬塞不必要的裝飾,整體規劃都是站在「實際生活」的角度出發,預算掌握得也很精準,對小資族來說相當友善。



3D模擬圖分享|配色耐看、空間感清楚

3D 模擬圖出來時,其實就讓人很安心。
vocus|新世代的創作平台

整體配色走明亮、耐看的路線,不會過於流行化,也不容易看膩,對於未來轉售或出租也都是加分。

vocus|新世代的創作平台
vocus|新世代的創作平台
vocus|新世代的創作平台



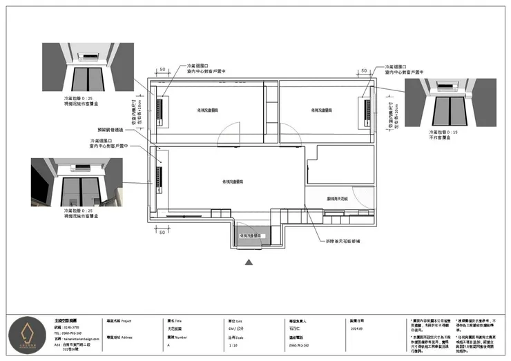
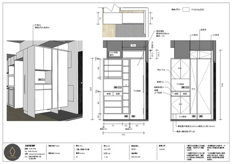
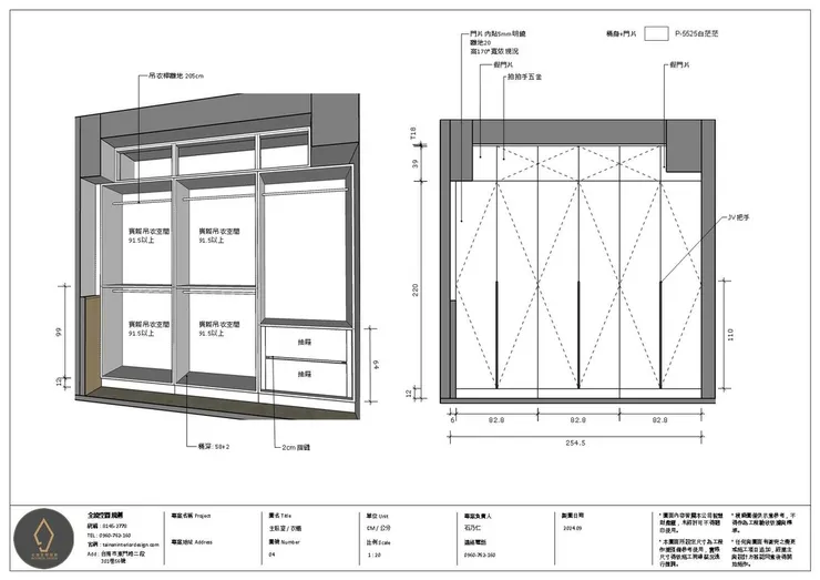
系統櫃尺寸規劃|新手屋主也能一看就懂

另一個我覺得很重要的細節是:系統櫃尺寸圖全部標示得非常清楚。

對第一次裝潢的新手屋主來說,能清楚知道櫃體深度、高度、實際收納量,真的會安心很多,也比較不容易出現「做完才發現不合用」的狀況。

vocus|新世代的創作平台
vocus|新世代的創作平台
vocus|新世代的創作平台
vocus|新世代的創作平台
vocus|新世代的創作平台



裝潢施工紀錄|每個階段都很關鍵

拆除工程

工班陸續進場後,第一步就是拆掉原本廚房的一面小牆。

vocus|新世代的創作平台

拆掉之後,空間立刻有感放大,多出來的位置也沒有浪費,而是直接規劃成超實用的廚房收納櫃。

vocus|新世代的創作平台


冷氣與水電配管

接著進行冷氣、水電配管與拉線工程,這一步其實是日後生活順不順的關鍵,線路事前多規劃一點,真的會少很多麻煩。

vocus|新世代的創作平台
vocus|新世代的創作平台
vocus|新世代的創作平台


木作與系統櫃安裝

最後是木作與系統櫃安裝,整體節奏掌握得很穩定,每一個階段都有確實完成才往下走。

vocus|新世代的創作平台
vocus|新世代的創作平台
vocus|新世代的創作平台
vocus|新世代的創作平台

最讓人感動的是,師傅們甚至在新年期間還幫忙趕工,只為了讓小夫妻能準時入住、迎接人生新階段,真的很感謝每一位施工人員的用心

vocus|新世代的創作平台
vocus|新世代的創作平台
vocus|新世代的創作平台



完工後實際空間分享

客廳空間|小坪數也能很舒服

全室鋪設木地板,一進門就有很明顯的溫暖感。

牆面保持簡單乾淨,搭配明亮色系,讓原本不大的空間視覺上更放大。

vocus|新世代的創作平台


雖然坪數有限,但娛樂不能省!

65 吋大電視+約 200 公分的沙發,追劇、看電影完全是小家庭等級的享受。

vocus|新世代的創作平台

另外,因為弟弟有大量公仔收藏,阿石設計師也特別規劃了專屬展示與收納區,既能展示收藏,又不會讓客廳顯得雜亂。


玄關設計|小宅也能收得很乾淨

即使是小坪數,玄關收納也不能馬虎。

進門先規劃落塵區,搭配污衣吊掛空間與全身鏡,回家、出門都很順手。

玄關櫃內則整合了掃拖機器人、吸塵器、鞋櫃與日用品收納,把雜物全部藏起來,維持視覺整潔。

vocus|新世代的創作平台



廚房與餐桌區|拆牆真的很加分

原本那道小牆拆掉後,整個廚房動線與收納量都大升級。

多出來的空間直接做成儲藏櫃,洗碗機、廚下瞬熱飲水機、電器櫃通通到位,並且預留專用迴路,使用上更安全也更方便。

vocus|新世代的創作平台
vocus|新世代的創作平台



臥室空間|收納規劃一次到位

主臥規劃整面白色頂天衣櫃,收納量相當驚人,也讓空間看起來更清爽。

梳妝桌位置與插座高度都依照使用習慣事先規劃,細節真的很貼心。

次臥目前作為儲藏室使用,有親友來訪時也能快速轉換成客房,這種彈性配置正是小坪數的最大優勢。

vocus|新世代的創作平台
vocus|新世代的創作平台
vocus|新世代的創作平台



裝潢心得總結|小資也能住得有質感

弟弟和弟媳其實沒有追求豪華裝潢,只希望住起來舒服、好清潔、收納夠用。

這次的規劃,真的把每一坪空間都用在生活上,而不是只為了好看。

阿石設計師把小坪數發揮到最大化,從動線、收納到日常使用細節,都能感受到「生活優先」這件事。

如果你也是小資族、新婚夫妻,或預算有限但希望住得舒服、耐看又實用,真的很推薦可以找他聊聊。



台南系統櫃裝潢推薦|全境空間規劃

官網:https://tainaninteriordesign.com/

設計師:石乃仁

手機:0960-762-160

LINE ID:nbalakers212

地址:台南市東區東門路二段301巷56號

門市服務時間:一到五8:00-18:00

服務地區:台南、高雄

工程日常(IG):https://www.instagram.com/all_territory/

隨手拍拍(YT):https://www.youtube.com/channel/UCSrZ9rvlFGXYuVbXPpAcD-A

留言
avatar-img
我是藍小姐的沙龍
2會員
32內容數
2025/12/15
看到阿嬤因為駝背與肩頸緊繃,走路越來越吃力,家人真的很心疼。這次陪她到台南元強仙骨微調,體驗溫和、不勉強的姿勢調整方式,不需大力扳動,長輩也能安心接受。調整前後站姿明顯改善,阿嬤自己也感覺走路比較輕鬆,對怕痛的長輩來說,是難得願意持續嘗試的選擇。
Thumbnail
2025/12/15
看到阿嬤因為駝背與肩頸緊繃,走路越來越吃力,家人真的很心疼。這次陪她到台南元強仙骨微調,體驗溫和、不勉強的姿勢調整方式,不需大力扳動,長輩也能安心接受。調整前後站姿明顯改善,阿嬤自己也感覺走路比較輕鬆,對怕痛的長輩來說,是難得願意持續嘗試的選擇。
Thumbnail
2025/12/15
開店裝潢時,地板選擇往往最讓人猶豫,尤其是高人流的商業空間是否適合鋪木地板。實際走訪使用兩年的店面,分享商業空間鋪設 QUICK-STEP 快步地板的真實經驗,從耐磨、防潑水、清潔維護到整體質感,一次整理給正在找台南超耐磨地板推薦的開店族參考。
Thumbnail
2025/12/15
開店裝潢時,地板選擇往往最讓人猶豫,尤其是高人流的商業空間是否適合鋪木地板。實際走訪使用兩年的店面,分享商業空間鋪設 QUICK-STEP 快步地板的真實經驗,從耐磨、防潑水、清潔維護到整體質感,一次整理給正在找台南超耐磨地板推薦的開店族參考。
Thumbnail
2025/06/13
老屋翻新出租,一次完整流程分享!從設計規劃、施工過程到注意事項,一次告訴你。案例分享:如何將老屋改造成四個獨立出租單位,包含設計師選擇、預算控管、施工細節、以及老屋常見問題(壁癌、漏水)解決方案。
Thumbnail
2025/06/13
老屋翻新出租,一次完整流程分享!從設計規劃、施工過程到注意事項,一次告訴你。案例分享:如何將老屋改造成四個獨立出租單位,包含設計師選擇、預算控管、施工細節、以及老屋常見問題(壁癌、漏水)解決方案。
Thumbnail
看更多
你可能也想看
Thumbnail
二十坪小宅改造三房兩廳!台南高森系統空間設計蘇設計師,成功將有限空間最大化,打造一家四口溫馨舒適新居。兼具美感與機能的收納設計,以及巧妙的格局調整,讓小坪數住宅也能擁有寬敞舒適的居住體驗。
Thumbnail
二十坪小宅改造三房兩廳!台南高森系統空間設計蘇設計師,成功將有限空間最大化,打造一家四口溫馨舒適新居。兼具美感與機能的收納設計,以及巧妙的格局調整,讓小坪數住宅也能擁有寬敞舒適的居住體驗。
Thumbnail
《轉轉生》(Re:INCARNATION)為奈及利亞編舞家庫德斯.奧尼奎庫與 Q 舞團創作的當代舞蹈作品,結合拉各斯街頭節奏、Afrobeat/Afrobeats、以及約魯巴宇宙觀的非線性時間,建構出關於輪迴的「誕生—死亡—重生」儀式結構。本文將從約魯巴哲學概念出發,解析其去殖民的身體政治。
Thumbnail
《轉轉生》(Re:INCARNATION)為奈及利亞編舞家庫德斯.奧尼奎庫與 Q 舞團創作的當代舞蹈作品,結合拉各斯街頭節奏、Afrobeat/Afrobeats、以及約魯巴宇宙觀的非線性時間,建構出關於輪迴的「誕生—死亡—重生」儀式結構。本文將從約魯巴哲學概念出發,解析其去殖民的身體政治。
Thumbnail
我哥和大嫂的第一間新房位於11樓,雖然空間有限,但他們希望透過室內設計來提升居住舒適度。在裝潢過程中,他們採用了系統櫃來節省空間和時間,設計師將各個區域如客廳、餐廳和玄關巧妙分隔,同時注重收納和美觀,最後成功地將這個小空間轉變為功能齊全的家。這篇文章分享過程和設計重點,非常適合考慮裝潢的朋友參考。
Thumbnail
我哥和大嫂的第一間新房位於11樓,雖然空間有限,但他們希望透過室內設計來提升居住舒適度。在裝潢過程中,他們採用了系統櫃來節省空間和時間,設計師將各個區域如客廳、餐廳和玄關巧妙分隔,同時注重收納和美觀,最後成功地將這個小空間轉變為功能齊全的家。這篇文章分享過程和設計重點,非常適合考慮裝潢的朋友參考。
Thumbnail
姊姊視角開箱分享!記錄了弟弟新家從裝潢到完工的過程,小坪數空間的設計巧思。從玄關櫃的雙功能、巧妙隱藏的廁所門、沙發邊櫃的多功能收納,到客廳仿清水模塗料與圓弧圖案的個性化牆面,以及廚房L型中島吧檯的滑動與展示設計,處處展現設計師對現代生活需求的精準掌握與彈性運用。
Thumbnail
姊姊視角開箱分享!記錄了弟弟新家從裝潢到完工的過程,小坪數空間的設計巧思。從玄關櫃的雙功能、巧妙隱藏的廁所門、沙發邊櫃的多功能收納,到客廳仿清水模塗料與圓弧圖案的個性化牆面,以及廚房L型中島吧檯的滑動與展示設計,處處展現設計師對現代生活需求的精準掌握與彈性運用。
Thumbnail
去年下訂了人生第一間房子,上個月和老婆開心入住,搬家期實在忙碌,現在才有時間寫文章分享。分享我們買的三房兩廳新成屋大樓的裝潢過程,特別強調系統傢俱裝潢以及設計師的室內設計底子。希望把這個喜悅分享給大家,也祝福大家可以找到滿意的房子!
Thumbnail
去年下訂了人生第一間房子,上個月和老婆開心入住,搬家期實在忙碌,現在才有時間寫文章分享。分享我們買的三房兩廳新成屋大樓的裝潢過程,特別強調系統傢俱裝潢以及設計師的室內設計底子。希望把這個喜悅分享給大家,也祝福大家可以找到滿意的房子!
Thumbnail
分享我大哥女兒的南科小公寓裝潢過程與心得,包含設計需求、設計師推薦、施工流程及最終的入住感想。文中詳述了空間規劃、傢俱選擇及風水禁忌考量,展示瞭如何在小坪數中創造舒適的居住環境。期待這份喜悅能分享給大家。
Thumbnail
分享我大哥女兒的南科小公寓裝潢過程與心得,包含設計需求、設計師推薦、施工流程及最終的入住感想。文中詳述了空間規劃、傢俱選擇及風水禁忌考量,展示瞭如何在小坪數中創造舒適的居住環境。期待這份喜悅能分享給大家。
Thumbnail
分享我哥和大嫂在婚後的新居裝潢過程,從設計圖面到施工階段的細節,都透露出設計師的用心與專業。住宅空間的規劃和配置,讓他們的家既美觀又實用,特別是利用冷暖色調搭配帶來的舒適氛圍。不論是客廳的電視牆還是廚房的收納設計,這些元素展現了現代家庭的需求。期待他們的新生活,也希望能啟發更多對於居家設計的靈感。
Thumbnail
分享我哥和大嫂在婚後的新居裝潢過程,從設計圖面到施工階段的細節,都透露出設計師的用心與專業。住宅空間的規劃和配置,讓他們的家既美觀又實用,特別是利用冷暖色調搭配帶來的舒適氛圍。不論是客廳的電視牆還是廚房的收納設計,這些元素展現了現代家庭的需求。期待他們的新生活,也希望能啟發更多對於居家設計的靈感。
Thumbnail
這是一場修復文化與重建精神的儀式,觀眾不需要完全看懂《遊林驚夢:巧遇Hagay》,但你能感受心與土地團聚的渴望,也不急著在此處釐清或定義什麼,但你的在場感受,就是一條線索,關於如何找著自己的路徑、自己的聲音。
Thumbnail
這是一場修復文化與重建精神的儀式,觀眾不需要完全看懂《遊林驚夢:巧遇Hagay》,但你能感受心與土地團聚的渴望,也不急著在此處釐清或定義什麼,但你的在場感受,就是一條線索,關於如何找著自己的路徑、自己的聲音。
Thumbnail
背景:從冷門配角到市場主線,算力與電力被重新定價   小P從2008進入股市,每一個時期的投資亮點都不同,記得2009蘋果手機剛上市,當時蘋果只要在媒體上提到哪一間供應鏈,隔天股價就有驚人的表現,當時光學鏡頭非常熱門,因為手機第一次搭上鏡頭可以拍照,也造就傳統相機廠的殞落,如今手機已經全面普及,題
Thumbnail
背景:從冷門配角到市場主線,算力與電力被重新定價   小P從2008進入股市,每一個時期的投資亮點都不同,記得2009蘋果手機剛上市,當時蘋果只要在媒體上提到哪一間供應鏈,隔天股價就有驚人的表現,當時光學鏡頭非常熱門,因為手機第一次搭上鏡頭可以拍照,也造就傳統相機廠的殞落,如今手機已經全面普及,題
Thumbnail
分享朋友新家裝潢範例,屋主是金融業,以極簡無印風為設計理念,加入淺奶茶色等清新色系,及全室木地板帶來視覺溫暖與腳感溫潤的感受。改變原有格局,達成全室系統櫃收納功能,彰顯空間美感及機能需求。如果有裝潢需求,可以參考全境空間規劃設計案例。
Thumbnail
分享朋友新家裝潢範例,屋主是金融業,以極簡無印風為設計理念,加入淺奶茶色等清新色系,及全室木地板帶來視覺溫暖與腳感溫潤的感受。改變原有格局,達成全室系統櫃收納功能,彰顯空間美感及機能需求。如果有裝潢需求,可以參考全境空間規劃設計案例。
Thumbnail
本文分析導演巴里・柯斯基(Barrie Kosky)如何運用極簡的舞臺配置,將布萊希特(Bertolt Brecht)的「疏離效果」轉化為視覺奇觀與黑色幽默,探討《三便士歌劇》在當代劇場中的新詮釋,並藉由舞臺、燈光、服裝、音樂等多方面,分析該作如何在保留批判核心的同時,觸及觀眾的觀看位置與人性幽微。
Thumbnail
本文分析導演巴里・柯斯基(Barrie Kosky)如何運用極簡的舞臺配置,將布萊希特(Bertolt Brecht)的「疏離效果」轉化為視覺奇觀與黑色幽默,探討《三便士歌劇》在當代劇場中的新詮釋,並藉由舞臺、燈光、服裝、音樂等多方面,分析該作如何在保留批判核心的同時,觸及觀眾的觀看位置與人性幽微。
Thumbnail
台南15坪新婚小宅裝潢實錄!80萬預算打造溫馨舒適的3房2衛小家庭空間,詳細公開裝潢費用、設計師選擇、空間設計理念與入住心得,推薦給準備打造小家庭的你!
Thumbnail
台南15坪新婚小宅裝潢實錄!80萬預算打造溫馨舒適的3房2衛小家庭空間,詳細公開裝潢費用、設計師選擇、空間設計理念與入住心得,推薦給準備打造小家庭的你!
追蹤感興趣的內容從 Google News 追蹤更多 vocus 的最新精選內容追蹤 Google News