我哥婚後搬離老家,和大嫂在工作附近買了新愛居,裝潢已經差不多,剩裝潢細清正在進行,好奇心旺盛的我就來搶先看做個開箱XD
▼首先是各種配置圖面,跟我哥要來看看,有插座配置、木地板配置、系統櫃配置等等,不少張!


▼看一看發現設計師事前工夫做得很仔細全面,位置、尺寸數據、使用材質等等都標示很清楚,不僅讓屋主我哥我大嫂看得明白,也讓師傅施工時降低做錯的機率。










我哥說施工階段是交給設計師監工管理,兩個人工作太忙只能盡量擠出一點時間看一眼,好在設計師很盡責,施工到哪個段落會拍照通知,加上前期溝通建立的信任,所以對設計師滿放心的。

▲現場確認3D與現況關係。

▲冷氣師傅配管安裝中。

▲天花板製作中(1)

▲天花板製作中(2)

▲天花板製作中(3)

▲天花板製作中(4)

▲各種燈具迴路新增。

▲油漆工程大致完成(1)

▲造型塗料牆面施工中。

▲油漆工程大致完成(2)

▲系統櫃+水電安裝中。

▲系統櫃安裝中(1)

▲系統櫃安裝中(2)

▲系統櫃安裝中(3)

▲軌道燈定位、安裝。

▲大致完成,等待地板工程進場。

▲木地板完成,準備細清。
直接快轉到完工開箱XD
(不過還在裝潢細清,照片有些地方還沒清到)
格局
實際室內25坪
一平面車位
4房2廳2衛浴2陽台
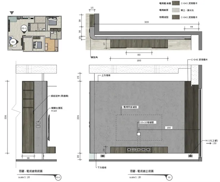
┃客廳
我哥和大嫂喜歡冷色調,希望裝潢整體風格是成熟、穩重,多一點現代配色、少一點木紋。
▼設計師在系統櫃上大多使用黑灰色系,但為了綜合冷感,搭配暖色燈光和偏暖色調的木地板,如果全部是冷色調就太冷冰冰,現在這樣反而剛剛好,呈現了整體穩重中又不失家的溫馨感!

▼客廳保持開闊明亮,沒有過多繁複的設計。沙發預計買250cm以上,還在購物車抉擇中。到時候一定很舒適!

▼電視牆上油漆的手刷痕超讚的!是客廳的亮點但不會太張狂XD

▼我哥考慮買65-75寸電視,大螢幕超爽!

▼邊緣做圓弧,有設計感,走路不小心撞到也不會很痛!


┃玄關
做了落塵區,區隔空間使用。並且預留了一個空間,我哥說等入住後再決定是否增添污衣吊掛或全身鏡。
▼電箱藏在造型門版後面,讓家門口不會看起來很施工風XD

▼一整面收納系統櫃,包含鞋櫃收納、日用備品收納。掃拖機器人也收納其中,高度寬度插座位置都已提前規劃好。建議大家可以先把想用的電器的尺寸給設計師,這樣才好量身打造系統櫃!


▼側面踢腳也有插座,如果要用吸塵器也很方便。

┃廚房&餐桌區
雖然餐廚空間有限制,但未來預計會生小孩,所以我哥請設計師冰箱櫃盡可能做最大,以後有小孩才不會常常鬧糧食慌🤣一次多囤一點!之後也會買180-200cm的大餐桌!我已經準備好來吃吃喝喝了!
電器櫃也是必須的,裡面配有三孔插座,底部平台也能滑進滑出,使用起來更方便。



▼同時也需要有海量收納的餐邊櫃,一個家庭的東西真的擺出來可不少!設計師幫忙規劃了很大一座餐邊收納櫃,還帶小平台,以後要泡奶粉也很方便使用。

▼我哥打開給我看到底多少空間!超多!左邊還有側拉高身櫃,可以放很多東西了!

▼櫃子板材好厚,近看才發現材質很不錯,潑墨渲染貼皮也是觸感很細緻。

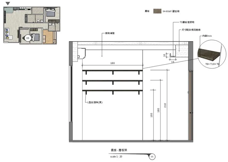
┃遊戲間
還有專屬遊戲間,也太爽了吧!這是我哥他們預計玩遊戲的地方,只需要簡單層板,當展示架或書架都可以,未來要轉化成書房也只需要書桌椅搬入!

▼展示架質感好讚,很有工業風,是客製的!

┃大嫂專屬更衣室
這應該是所有女生的夢想吧?一整面衣櫃,收納也有不同高度,長大衣、長褲直接掛入即可!之後也會購入梳妝桌椅,變成專屬梳妝保養區。




▼最上面玻璃櫃是大嫂希望能有一小區展示收藏小物的地方,所以設計師將它規劃在這裡,就像一個小小的專屬自己的寶藏室!

┃次臥室
未來的小孩房。目前先作為客房使用,簡單衣櫃收納即可,未來小孩出生再添現成家具就好,還能隨著小孩長大更換適合的家具,彈性高!



▼每一組系統櫃的板材都很厚,摸起來質感也很好,感覺很耐用!

┃主臥室
我哥希望能避開頭頂的大梁,所以設計師做了床頭板並規劃實用的床邊插座。

▼上面還裝了燈條,晚上可以當小夜燈!

▼衣櫃則是以我哥的衣物收納為主,覺得空間也很多XD


▼抽屜板材也是厚的,而且抽屜是有深度的不是淺的,比較好利用。

┃兩間衛浴
都是乾濕分離,不會讓整間浴室濕氣太重。


┃陽台
長型前陽台,有個透透氣的好地方。後陽台則可以曬衣。

▼最後分享一張藍天好天氣給大家XD望出去非常遼闊,好棒的視野!也再次恭喜我哥和大嫂新居落成,為他們感到開心,也期待小姪子或小姪女的誕生!

┃設計公司
全境空間規劃
官網:https://tainaninteriordesign.com/
設計師:石乃仁
手機:0960-762-160
LINE ID:nbalakers212
地址:台南市東區東門路二段301巷56號
門市服務時間:一到五8:00-18:00
服務地區:台南、高雄
工程日常(IG):https://www.instagram.com/all_territory/
隨手拍拍(YT):https://www.youtube.com/channel/UCSrZ9rvlFGXYuVbXPpAcD-A
┃裝潢項目
1、保護工程:
全室地面PP板+1分夾板+公共區
2、木作工程:
全室冷氣包管+電視牆面+全室天花板+總開關箱門片
3、水電工程:
各式開關插座延伸+弱電新增+燈具回路新增+專用插座新增
4、油漆工程:
全室木作部分上水性水泥漆+電視牆塗料+牆面局部修補+入住後修補一次
5、系統櫃工程:
全室內櫃體
6、地板工程:
全室QS超耐磨地板























