搬進新家⼤概是⼈⽣最幸福、但也最費⼼⼜費⼒的⼀件事(笑)。
我和先⽣在⼯作、家庭與⽣活品質之間拉扯了很久,最後才決定落腳在長治。
現在住了幾個⽉,總算能好好坐下來,分享這次新家找設計公司規劃的完整裝潢過程與⼼得,希望對同樣在找新成屋改造靈感的你們有幫助。
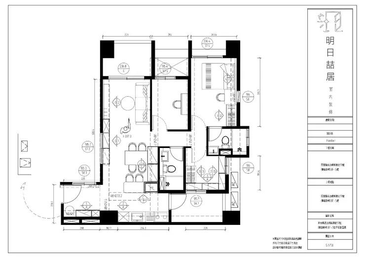
▼先給⼤家看⼀下設計師幫我們畫的平⾯配置圖

▼這是3D設計圖,完美呈現⽞關、廚房與客廳的美好視⾓

▼3D圖:中島 × 廚房|機能、美感、互動,⼀次到位

▼3D圖:下⽅滑⾨的巧思更是神來⼀筆——即使餐桌靠牆也能順利開關,不會撞到,也不會佔空間

先跟⼤家介紹⼀下我們家成員:我&老公+未來⼩孩
我先⽣的家就在長治,我們希望能就近照顧長輩。⽽我們兩個到屏東市上班只要⼗幾分鐘⾞程
交通便利⼜不會⽣活太吵鬧。再加上這是新成屋,不⽤等、也不⽤擔⼼中古屋的⽑胚、⽔電等地雷!
可以說打開⾨、找好設計公司,就能直接開始規劃我們想要的家。
其⼀開始我們只想找像系統櫃+⽊⼯統包師傅就好,跑了好幾家,報價也都很快
但總覺得好像還差了什麼的感覺?直到遇到這家——明⽇喆居室內裝修,我跟我老公直接被他們的耐⼼跟專業收服。
▼3D圖:客廳視⾓

▼3D圖:主臥視⾓

▼原本格局玄關與廚房之間沒有明顯的分界,門一開就看到廚房,少了緩衝空間。

▼當初就是看上這個挑高客廳,所以特別和小蔡設計師討論
希望在保留挑高感的同時,也能弱化那根大樑。

我們家是新成屋、正三房格局,跟⼤家分享當時我們⾃⼰列的重點需求:
• 開⾨不要直接看到客廳(強迫症)
• 許願有⽞關、收納、跟穿衣鏡• 希望有幸福的中島!
• 冰箱跟餐桌不要打架
• ⾊調以奶油跟⽊質的暖⾊調為主,有美感也兼具機能
• 一次臥做為⼩孩房保留彈性
• 一次臥規劃為儲物間,兼顧收納與彈性使用
• 結果全部達成!甚⾄超標!
▼尚未做任何規劃前的餐廳與廚房

▼ 原本⽞關、廚房與客廳的明顯⼤樑

▼客餐廳格局

▼房間格局

我們家有⼀道非常明顯的⼤樑,剛看到時其有點疑慮。不過明⽇喆居室內裝修的做法很厲害
透過⽞關、客廳到廚房的⼀體式天花板整合設計,把突⺎的樑巧妙藏起來
從客廳看過去是⼀條乾淨俐落的線條,視覺⼀瞬間變得平順⼜寬敞。
這種看得到差異,但⼜感覺不到施⼯痕跡的效果,對空間氛圍真的很加分。
▼完⼯照:登愣 ⼀進⾨就看到乾淨俐落的線條,⽞關、廚房與客廳視覺超絲滑

▼不只有完整的玄關區,跟廚房之間還有完整的分界感

▼小蔡設計師直接⽤收納櫃+穿衣鏡,把「沒⽞關」變「超有質感⽞關」,儀式感100分!
電箱部分,小蔡設計師建議我們可以直接用軟裝遮擋,幫我們節省預算。

▼開⾨看到⼀整⾯⽔磨⽯SPC地板(這塊⽯紋超美!還不⽤打磚)

▼細緻的⽞關⽯紋款地板拉出落塵區

▼客廳部分,跟小蔡設計師討論後,選擇不做天花板,凸顯原本⾼度,搭配⽩⾊軌道燈後,空間立刻變得通透。
加上雙⾯採光的空間優勢,我們在⽩天幾乎不需要開燈,客廳窗簾則選擇⼀布⼀紗的搭配,兼顧遮光與通透性。

▼貼⼼的是設計師還在窗下做了矮櫃設計,讓⽇常的收納變得更有秩序。(對了就連掃地機器⼈都有專屬插座呢)
矮櫃上方的窗簾,小蔡設計師還建議我們選用透光捲簾,不只預算上比較節省,也讓客廳採光兼具隱密跟通透。

▼客廳電視牆是霧香素⾯烤漆,質感好、低調卻很耐看!
上⽅圓⾓開放式⼩層板柔化線條,讓我旅遊帶回的紀念品終於有容身之處啦!

當初討論時,我⼀直跟明⽇喆居室內裝修的小蔡設計師說:「如果空間允許,我⼀定要有⼀個中島!」
加上設計的時候想讓動線更輕鬆,所以把洗碗機做成嵌入式,再把電器櫃結合拉盤⼀起規劃
像氣炸鍋、微波爐這些⼩家電,拉出來就能直接⽤,真的⽅便很多。
⽽且中島真的很好⽤,不只是備料的⼯作檯,有時候我們也直接在那吃飯、聊天,完全是餐桌延伸的⼩天地。
上⽅那盞超美的長型吊燈也讓整個空間質感提升不少,真的有種住在雜誌裡的感覺。⾄於餐廳這邊,設計師另外做了⼀個⼩⼩的Mini Bar家電櫃,咖啡機、烤箱全都收在裡⾯,下⽅做滑⾨設計,就算餐桌靠牆也完全不影響開關。
平常泡咖啡、準備早餐都在這裡,動線超順,⽤起來真的很舒服。
▼小蔡設計師在中島下⾯做了收放⾨片跟開放層板,垃圾桶和常⽤的雜物都能放進去。
廚房跟餐廳之間做了L型木紋壁板,不只讓廚房跟客廳空間看起來更有分界感,也多了一點儀式感
小小巧思就能讓生活質感大大升級!冰箱上方空間則做了吊櫃,不但可以遮擋灰塵還多一個空間可以收納。這設計我真的是愛了~

▼ 中島上⽅的長形吊燈畫龍點睛,讓中島看起來更加延伸

這間房⼦的規劃我們希望空間要能隨著⽣活變化,包括主臥:儲物、睡眠、儀式感都要到位
次臥的兒童房預備區(現在是開放空間或遊戲區,將來可直接升級⼩孩房)
第⼆個次臥的儲物空間+更衣室(⼩空間的⾼效收納)。
感謝明⽇喆居室內裝修的設計師很快抓到我們的重點,讓我們未來⼗年的⽣活都能穩穩接上。
▼主臥床頭上方原本有⼀道⼤樑,非常有壓迫感,小蔡設計師很聰明的用床背板將床頭位置整個墊出來
讓樑不再直接壓在頭頂,上方再以⽊作弧形造型搭配油漆跳色,將原本的樑轉化為「刻意的設計亮點」。
讓視覺重點從壓迫→變成空間的小驚喜。

▼背板內崁燈條,晚上開著暖光,氛圍⼀秒變放鬆。化妝桌部分我們選擇⽤現成家具
設計師完全尊重彈性。窗簾部分採⽤全遮光風琴簾,睡眠品質⼤幅提升。

▼木作弧形造型延伸到窗戶上方,不但可遮擋樑體,又結合窗簾盒的功能。
更巧妙的是,弧形直接修飾衣櫃的側板,讓原本平凡的系統櫃也有了層次跟設計感。

這次和明⽇喆居室內裝修合作,最深的感受就是溝通順暢、專業、安⼼。
從第⼀次接觸開始,他們的流程就讓⼈很有安全感:前期丈量、兩次會議、初步配置討論全都不另外收費
真的先把⽅案談到我們理解⼜滿意才進入下⼀步。確定要合作後才會簽規劃約。
如有順利進到工程約還可以全額折抵設計費,等於是「零設計費」的概念,對第⼀次裝修的我們來說友善⼜透明。
▼ 主臥背板內崁燈條設計

施⼯期間也讓⼈覺得可靠,每週都有主動回報進度,不需要我們⼀直催或追蹤。
保固更是給到兩年,比外⾯普遍的⼀年多⼀倍,讓⼈放⼼不少。
材料也選得很在,因為我們滿怕甲醛對小孩的傷害,所以在找設計公司時,有特別詢問使用的板材等級。
他們使⽤的系統板材接近零甲醛,符合歐盟標準E1以下,住起來更安⼼。
最讓我們印象深刻的,是他們固定合作的⼯班品質真的很好,做⼯細節乾淨、穩定。
整個合作過程都很順利,真的會讓⼈想推薦給⾝邊正在找設計師的朋友。
▼超級感謝小蔡設計師讓這個⼩房間發揮最⼤效益——L 型矮櫃+吊櫃+⾼櫃,⾏李箱、換季衣物、雜物全部塞好塞滿。

另外我也整理了我們家的裝潢細項給⼤家參考:
⾸先是保護⼯程,包含公設與廚具的完整保護,讓後續施⼯更安⼼。
⽔電⼯程除了原有沒被遮擋到的保存外,其他像是開關、插座、網路線、電視線的新增與移位
電器櫃的專⽤迴路、燈具配置與⾯蓋安裝、對講機移位,甚⾄連浴室暖風機也⼀起安裝好。
⽊作與輕鋼架更是這次的⼤⼯程,全室冷氣管線包管+窗簾盒⼀次完成,局部平釘天花板化解壓迫
⼤樑讓視覺更完整;客廳電視牆做了造型背牆與⽊作層板,主臥則有弧形收樑與床頭背板燈條,細節滿滿。
廚房隔間、新增維修孔、燈具挖孔都做到位,該藏的藏、該修的修,乾淨⼜⽤。
▼系統櫃將⽇常收納整理剛剛好

系統櫃部分更是⼀次包辦,全室⼤⼤⼩⼩的收納通通規劃好,從⽞關收納櫃、電器⾼櫃、中島上下櫃、冰箱上櫃、客廳⾼矮收納櫃、儲藏室 L 型矮櫃+衣櫃+吊櫃,以及主臥到頂衣櫃,收納空間真的⼀次到位,不必⽇後再慢慢補。
▼不得不說,家裏每⼀個⾓落、每⼀道⼯序明⽇喆居室內裝修都做得真的超級細緻

當然其他細節也沒少:⽞關灰鏡讓空間更有放⼤感;全室油漆裝修後重新過色
電視牆冷烤漆與主臥跳⾊牆⾯都⼀起完成;燈具配置包含崁燈、軌道燈、中島吊燈與藏燈條,全都裝得妥妥的。
地板選⽤全室 SPC木紋⽯塑地板搭配⽞關⽯紋款,耐磨⼜好整理。
最後完⼯清潔包含全室細清與公設廢棄物清運,包含浴室、陽台、窗戶等等,真的是交屋就能直接拎包入住。
▼把屋主當家⼈⼀樣照顧的感覺,真的只有真正住進去才懂什麼叫細節滿分~

所以,如果你也在找⼀個能真正了解需求、施⼯穩定的團隊,希望這篇分享能給你⼀些參考。


















