品城西:臺北市大同區安西街93號
本專欄風水分析為個人建議,僅供參考。

一、地理環境
大環境來看,建案位於臺灣的正北方坎宮,從三元九運來講,2023年九紫右弼火星飛臨正北,專管婚姻喜慶、財富、置業等吉事。若能夠正確使用催旺方法,將極大有利於家運。若能將屋主命理與房間佈局加以調和,則會更利於各種喜事。

二、周邊環境位置
東南方巽位也為文昌位。掌管才智、學習和功名利祿,最利於學生和經常動腦的職業,包括生意人、領導和策劃人員等等。建案東南方為國民小學,與文昌位相呼應,會吸引文昌氣,更利於學業。家裡有學生的屋主,將室內南方、東南方保持乾淨、整潔,或焚香、擺放綠植等將有利於學生學業。

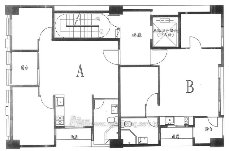
三、樓盤格局
建案整體方正,厚重敦實,戶型中規中矩。93號為圖中的A戶型。東方有缺,略有缺憾,可以在入口處佈置一些植物,生旺東方木氣。廁所在離位,這個位置比較重要,需要保持這裡的乾淨整潔。左上角的臥室納天醫氣,是整個宅子比較好的位置,老年小孩都可以住這裡。左下角的臥室適合想要闖事業的人來住,敢闖敢拼,但是要注意負債,做好財務管理。

總體來說,內外部環境算是不錯的。好的宅子也看要如何利用。利用的好才能發揮最大的功效。
如果你是這個建案的屋主,歡迎點此奉請「鎮宅壓煞符令」
大鼎道長 親敕























