這是以前寫的文章重新再放上來。
第一章 新北市的捷運建設
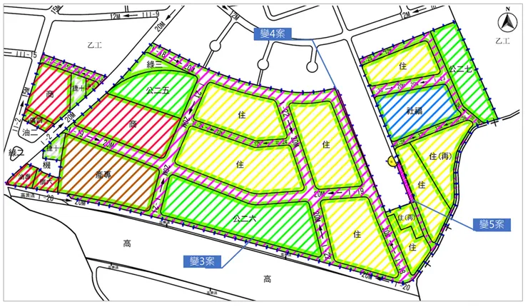
來整理一下新北市去年重大建設的進度,目前新北的建設以大眾運輸導向發展(TOD)為主,以捷運建設為主軸。下圖為環狀線新店十四張站,預計將招商新北最大聯開案。

可行性研究 → 綜合規劃 → 設計發包施工驗收
最後才會正式營運,以下列出新北市目前從接近完工到還在規劃中的捷運。

新北市府前的環狀線
新店的安坑輕軌,主要設定為安坑地區通勤用的輕軌系統,可以銜接環狀線十四張站,進入台北或新北,目前已經在完工驗收階段,只要修正好交通部履勘的6項問題,估計年假過後2月就可營運。

安坑輕軌(圖/google街景)
三鶯線,從板南線土城頂埔開始開始,經過三峽北大特區附近、美術館、鶯歌老街、到鳳鳴重劃區,未來預計延伸到桃園八德接桃園綠線,對未來北北基桃的生活圈有一點促進效果。目前施工進度約69%,表訂今年底完工,但以安坑輕軌經驗,保守可能要明年才會營運。

三鶯線龍埔機廠(圖/google街景)
萬大中和樹林線第一期,從中正紀念堂跨越新店溪到中和,經過中山、連城、金城路,抵達莒光的金城機廠,往來萬華跟中和之間。目前施工進度67%,表定2025年完工,如果安坑輕軌經驗延續,搞不好2026才會搭到。

連城路上的萬大中和樹林線第一期(圖/google街景)
萬大中和樹林線第二期,沿金城路經過土城暫緩重劃區,過大漢溪到樹林市區(但離台鐵樹林站有距離),最後到新莊線迴龍站,未來與桃園棕線三鐵共構(桃園棕線也是促進北北基桃生活圈的一條捷運)。第二期分土城跟樹林兩案發包,樹林CQ890標已於十月完成發包開始施工,但土城CQ880標仍然在發包招標中(原物料上漲關係,最近發包比較困難)。

三多里重劃區旁預定的萬大中和樹林線第二期(圖/google街景)
環狀線北環段,從新莊副都心經過蘆南蘆北(蘆洲),跨過淡水河銜接士林捷運站,再經過故宮連接木柵線的劍南路站。新北這邊發三個標案:
- CF680A 目前還是流標
- CF680B 於去年12月發包 預計今年3月開工
- CF680C 已於去年3月發包並開始施作

北環段的機廠(圖/google街景)
汐止東湖線,今年1月行政院好不容易核定綜合規劃,是一條命運多舛的捷運,從原本的汐止民生線,不斷地送出、退回、修正、再送出,路線不斷修正,最終變成與基隆捷運併軌,從東湖、經過社后、接到汐止的捷運。

汐東線綜合規劃通過廣告(圖/我的新北市FB)
深坑輕軌,於去年12月交通部可行性研究通過,修正意見後將進入綜合規劃階段。過去送審了11次可行性研究,也是不斷修正,原本7座車站,修正後變5座。最初有規劃到石碇,最後被砍掉,原本沒接近深坑市區,最後修正到離市區近一點。

深坑輕軌示意圖(圖/新北捷運局FB)
五泰輕軌,算溪北地區(大漢溪以北)蠻重要的運輸系統,經過蘆北重劃區(還在通盤檢討中)、五股洲子洋重劃區、最後銜接塭仔圳重劃區(施工中)的機場捷運。目前還在可行性研究階段,買房子時如果建商說蓋在某某捷運站附近,通常要注意是哪條捷運線,如果還沒經過行政院綜合規劃核定,路線跟站體都有可能更動,建案旁預定的捷運站可能會消失或搬到更遠的地方。

五泰輕軌示意圖(圖/國家發展委員會FB)
泰板輕軌,經過塭仔圳、浮洲、亞東醫院、莒光、銜接萬大中和樹林捷運線。目前還在新北市議會,預計今年才會送交可行性研究。

五泰輕軌+泰板輕軌示意圖(圖/自由時報)
第二章 大眾運輸導向發展(TOD)
除捷運外,很多城市也在推動大眾運輸導向發展(TOD),理想上是將日常生活所遇到的,例如購物、逛街、上班、居住、托育、公園等生活機能,集中在大眾運輸場站周邊,阻止都市蔓延開發,減少居民對汽車的依賴。到新北市的說法就是:捷運蓋到哪、都更就做到哪,是都更三箭的其中一箭。

TOD示意圖(圖/臺北市政府都市發展局「修訂臺北市大眾運輸導向可申請開發許可地區細部計畫案」簡報)
TOD畢竟是抽象的概念,需要一些現有的方法實作它,像鼓勵性質的方式,捷運站特定範圍內的建案若提供公益設施(如托育)則可以獲取容積獎勵(可以蓋更高的樓層賣較多戶數)。或針對破碎土地、違章建築、閒置土地,直接打掉重練,也就是區段徵收或市地重劃,以及特定捷運站旁招商興建聯開大樓,進駐商場、商辦、飯店、或住宅等。

新北市府的竹筍,正在施作府中雙城人行空間的改善工程。
以區段徵收的方式,是向地主徵收土地並重新規劃分區,在TOD概念下,將商業區集中在捷運站旁,例如蘆洲南側區段徵收配合環狀線Y20站在周邊規劃商業區。過去政府的土地徵收,往往是給予拆遷戶補償金的方式,後來開始逐漸流行區段徵收,拆遷戶可以自己選擇要補償金或領回開發後的土地(抵價地)。

區段徵收示意圖(圖/變更大漢溪北都市計畫(蘆洲地區)(蘆洲南北側農業區專案通盤檢討)書)
另外還有市地重劃的方式,將零散破碎或閒置的土地重新規劃,在TOD概念下,也是將商業區集中在捷運站旁。市地重劃可以是政府公辦或民間自辦,原則上地主會犧牲一部分的地(抵費地),用來支出公共設施的建設上。
區域徵收跟市地重劃也是地方政府為開發公共建設自籌財源的方式,標售部分土地或設定地上權給建商回收開發成本。

市地重劃示意圖(圖/臺北市政府地政局「區段徵收/市地重劃怎麼辦?」簡報)
部分捷運站旁,地方政府會規劃聯合開發大樓,例如環狀線秀朗橋站的聯開案。每一個捷運站的聯開大樓會些許不一樣,但大多是捷運出入口樓層設置商場,其他樓層做商辦或飯店,頂樓做觀景餐廳等。

捷運環狀線秀朗橋站(圖/google街景)
TOD是個雙面刃,用的好可以提升捷運場站的生活機能,用不好的話會讓一般人住不起捷運周邊的區域,反而會讓拆遷戶或一般人遠離市區,加速人口對外的開發蔓延,失去TOD的原意,因此漸漸開始有inclusive (包容式)TOD的概念。

重劃區柵欄示意圖(圖/google街景)
例如以台灣的作法是在捷運站旁設置社宅,像三峽國光段社會住宅直接蓋在三鶯線LB08三峽站旁邊,期望讓不同收入的人都能夠享用,捷運及周邊生活機能的服務。

捷運三鶯線三峽站及國光段社會住宅(圖/google街景)
第三章 新都市主義的人本城市
全球非營利組織,交通與發展政策研究所(ITDP)發布的TOD standard 3.0提供了TOD規劃的評估標準。有些指標感覺已經超出TOD的概念,還順便置入了近代的都市規劃理念(新都市主義)。檢討過去美國以車為導向的發展,著重以人為本的設計

TOD的各項指標(圖/ITDP TOD standard 3.0)
美國戰後時代以車為本的思維,過去在全世界流行起來,台灣也深受以車為導向開發的觀念,反而忽略了大眾運輸及步行空間的設計。因為高度依賴車輛,造成塞車的問題,還有人行道破碎,衍生出行人地獄的情形。

僅車道示意圖(圖/google街景)
過去的都市計畫大多只考慮車道的建設,變成不管通勤還是採買日常用品只能依賴汽機車,而無法使用大眾運輸、自行車、或步行的方式。再加上區域的規劃。缺少考慮住商的混合使用,使得在市區上班的人大多居住在外地,一到尖峰時間全數湧入市區,造成塞車的情形。因此建設大眾運輸及TOD的概念逐漸興起,讓通勤人有更多交通選擇、或上班地點就近居住,期望改善塞車情形。

混合車道、自行車道、人行道示意圖(圖/google街景)
另外只考慮車輛的交通下,同時忽略了人行道的完整設置,尤其在台灣行人常常與車同行,車輛未禮讓行人增加了步行的危險,演變成行人地獄的情況。因此也產生了人本交通的觀念像是下圖板橋的府中雙城計畫,以工程方式改善人行道設計,盡量人車分道,讓行人可以安全往來捷運站、公車站、跟商店街之間,並且部分馬路直接封街作景觀,學西門町的行人徒步區。

在新都市主義(New Urbanism)跟淨零排放的趨勢下,很多城市的政策都朝向鼓勵使用大眾運輸降低能源消耗。針對使用大眾運輸給予優惠,例如雙北的1280月票,另針對私人運具(汽機車)實施更多限制,例如徵收路邊停車費等,讓開車進市區變成一件越來越麻煩的事。有些城市甚至採更加激進的作法,例如進城直接課徵塞車費或發布禁車令,在特定道路的特定時段禁止車輛通行。

捷運買票觸及閘門示意圖
另外以2050淨零排放的角度下,運輸部門不只是推動大眾運輸及步行空間,私人運具也會有所管制,例如推動採用電動車。通常一般買車,車子都會用到十幾二十年,如果2050目標要採以使用再生能源的電動車,可能最晚從2030就要限制燃油車了。但一定會有業者反彈的聲浪,所以目前台灣的目標是2040年全面市售電動車。

電動車車位示意圖(圖/google街景)






















