西松國小創校至今已88年,長久以來校園無室內活動中心,導致大型集會需向他處租借場地,造成不便,加上周圍居住人口眾多,停車場及社區活動空間不足。為此,台北市政府開始興建西松國小學生活動中心,附有停車場、幼兒園、游泳池、演藝廳等,預期在2028年開放使用,此工程除使學校多元發展,也增加南京三民整體機能。
一、西松國小簡介

西松國小校門
位置及歷史
- 西松國小位於台北市松山區三民路5號(南京東路5段與三民路交叉口附近),臨捷運南京三民站1號出口僅2分鐘步程,地處便利,校園占地約2萬5,242平方公尺。
- 西松國小創校於1936年日治時期,於1937年遷入現址,除了標準的六個年級外,另有西松國小附設幼兒園(西松附幼)及針對社會教育而設置的附設補校。
- 為松山區鵬程里、自強里、安平里、東光里、吉祥里、復盛里(22至27鄰)及新聚里(2、7、8、10至34鄰)學區。
在校學生人數
- 依台北市政府公布113學年度國小概況,西松國小六個年級合計46班,學生總人數1,159人,在松山區8間公立小學中,學生人數為第4多學校(前3為敦化國小、民生國小及民權國小)。
- 依台北市政府公布114 學年度公立幼兒園普通班班級數,西松附幼招生3-5歲班計7班,2歲班計2班,合計9班,在松山區8間公立附幼中,招生班數為最多。
學校開放資訊
- 依西松國小公布校園場地開放時間,上課日開放時間為早上5點-7點(寒暑假同)及晚間7點-9點半。例假日開放時間為早上5點-下午5點半。
二、學校及周遭問題
學校無室內活動中心
西松國小全校學生數量多,然而長久以來卻沒有室內活動中心,導致學生下雨時無空間活動,遇重要大型集會如國小及附幼畢業典禮,需要向他校借場地舉辦,對學校成員及家長造成困擾。另外,西松國小創立手球隊已久,歷年多能獲得佳績,為學校重點培育運動之一,許多家長都希望孩子能進入手球隊。一直以來手球運動都是在操場進行,但如遭遇雨季,小球員便無適當訓練及運動空間,因此,學校及家長都期盼能有室內訓練或比賽空間。
社區需要活動及停車空間
西松國小位於三民路。三民路以東為南京公寓,三民路以西為武昌公寓,多為4至5層、屋齡超過50年的老舊公寓,居民相當多。在2006年松山線開工並新設站點南京三民站後,臨南京東路五段側也開始都市更新,蓋超過15層新大樓,且建築設計多為小坪數套房,供1-2人的個人或家庭方便入手,也因此有更多人入住該區。
然而,就目前南京三民站周遭狀況,除幾個私人所設健身房、瑜珈教室或運動教室外,並無公立的運動空間,如當地居民想單純運動,且不願意花錢到私人場域,就必須得至周遭公園、民生社區或位於小巨蛋附近的台北田徑場及松山運動中心。如果想要游泳,附近游泳池僅有撫遠街的市立三民游泳池、松山國小游泳池及松山運動中心游泳池,如以捷運南京三民站出發至這些地點,步行約20-30分鐘,雖不算遠,但確實有段距離。
另外,由於南京三民站周遭入住人口增多,車輛取得又日漸容易,該區長期以來出現停車空間不足的問題,雖然附近也有市立停車場如西松高中地下停車場、健康社宅1區及2區停車場等,但需定期抽籤且車位有限,使居民僅能再向外尋找停車位,包括至健康路、民生社區、河濱公園等停車。而且南京東路五段為商業重鎮、銀行聚集,每天來此上班洽公者眾多,亦需要足夠的停車空間。
三、西松國小學生活動中心新建工程
新建公共工程解決問題
為了增加西松國小室內活動空間,並解決周遭居民長期的停車問題,台北市政府在數次與校方、當地里長及居民代表溝通後,在2022年辦理「台北市西松國小的學生活動中心新建工程」政府採購案公開招標,招標金額達22億。公告一出,馬上引起民意代表質疑,認為22億造價實在不合理,當時也引起網路熱議,然而,學校及社區問題迫在眉睫,一起來看看建築規畫吧。

西松國小學生活動中心模擬圖(圖自台北市政府工務局新建工程處)
工程基本資料
- 西松國小為主辦機關,但此為建築專業,所以由台北市政府工務局新建工程處代辦。
- 由陳文彥建築師事務所設計、監造,由春原營造股份有限公司負責營造,另由永龍企業股份有限公司負責機電。
- 結構設計為地下2層、地上6層,SRC構造,建築高度26公尺。
- 基地面積2萬5,242平方公尺,總樓地板面積2萬3,744公尺。
- 汽車車位256部、機車車位280部。
- 開工日期:2024年5月20日。
- 預期竣工日期:2027年12月8日。
- 各層用途
- B1-B2-防空避難室兼停車場
- 1F-2F-幼兒園、游泳池
- 3F-4F-演藝廳
- 5F-6F-綜合球場、環場跑道
配置平面圖

全區配置平面圖(圖自台北市政府工務局新建工程處)
- 配置規劃:活動中心主體建物、操場、球場、地下停車場、汽機車出入口、行人出入口x3(A、B、C)、幼兒園出入口、無遮簷人行道、街角廣場緩坡順平處理。
- 汽機車出入口為南京東路五段147巷,且配置街角廣場,美化環境。
- 三民路3巷鄰活動中心側會適度退縮做人行走道,解決路寬不足問題。
地下2層平面圖

地下2層平面圖(圖自台北市政府工務局新建工程處)
- 高度3公尺。
- 使用單元:汽車停車區163部、備品儲藏室、管理員室、機房。
- 設家長臨時接送區,目的減少三民路在上下學時因接送致塞車問題。
地下1層平面圖

地下1層平面圖(圖自台北市政府工務局新建工程處)
- 高度5公尺。
- 使用單元:汽車停車區、機車停車區、重機停車區、無障礙廁所、多功能廁所、哺集乳室、備品儲藏室、管理員室、機房。
- 汽車車位93部,含無障礙車位6部及婦幼車位6部。
- 機車車位280部,含無障礙車位6部。
- 重機車位7部。
1層平面圖

1層平面圖(圖自台北市政府工務局新建工程處)
- 高度3.5公尺。
- 使用單元:游泳池、男更衣室、女更衣室、緊急救護室、器材室、幼兒園(室內活動室2間、室內遊戲室)、幼兒園健康中心、職員室、 幼兒盥洗室、哺集乳室、多功能廁所、無障礙廁所、機房。
- 配置重點:標準6水道泳池、挑高5.4公尺、汽機車同側進同側出、人車分道。
- 1層的人行主要出入口是操場處。
- 停車場人行出入口C處設自行車停車位18部。
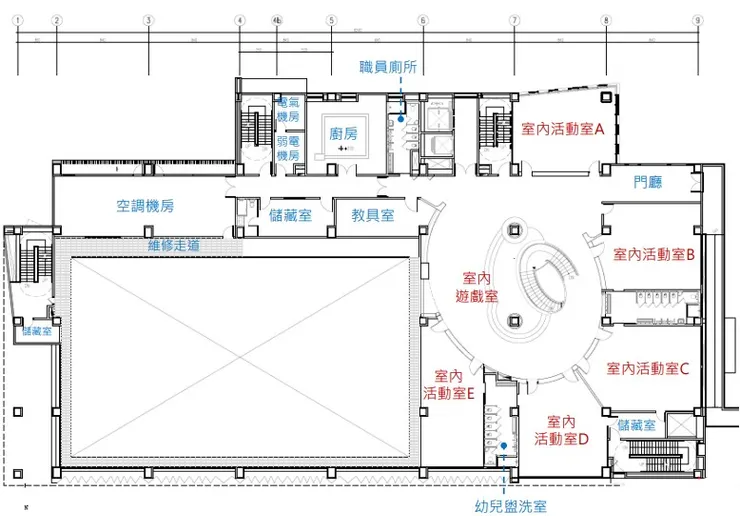
2層平面圖

2層平面圖(圖自台北市政府工務局新建工程處)
- 高度3.5公尺。
- 使用單元:幼兒園(室內活動室5間、室內遊戲室)、幼兒園廚房、教具室、職員廁所、幼兒盥洗室、游泳池上方維修走道、機房。
- 配置重點:連接既有建物(南雲樓)之空橋、幼兒園室內活動室環形配置。
3層平面圖

3層平面圖(圖自台北市政府工務局新建工程處)
- 高度3.9公尺。
- 使用單元:視聽教室、講台、準備室、休息室、練習室*2、韻律教室*2、多功能室、無障礙廁所、男女廁所、機房。
- 配置重點:連接既有建物(南雲樓)之空橋、演藝廳挑高5.9公尺,設有340席座位席(含6席無障礙)、吸音隔音納入考量。
4層平面圖

4層平面圖(圖自台北市政府工務局新建工程處)
- 高度3.9公尺。
- 使用單元:視聽教室、前室、中控室、多功能室、社區多功能室、無障礙廁所、男女廁所、機房、半戶外活動區。
- 配置重點:演藝廳挑高5.9公尺、設有340席座位席(含6席無障礙)、吸音隔音納入考量。
- 社區多功能室預期開放使用,增加社區交流空間。
5層平面圖

5層平面圖(圖自台北市政府工務局新建工程處)
- 高度3.9公尺。
- 使用單元:綜合球場、器材室、舞台、後台、準備室、休息室、茶水間、男女廁所、機房、陽台。
- 配置重點:球場挑高7.8公尺、羽球場5面、排球場1面、籃球場全場1面(懸吊式球架)、手球場1面(國際標準)。
6層平面圖

6層平面圖(圖自台北市政府工務局新建工程處)
- 高度6.9公尺。
- 使用單元:球場上方環場跑道及上層看台、機房、陽台、露台。
- 配置重點:球場上方設環場跑道及上層看台供學生熱身及觀看比賽之用。
四、未來展望
台北市政府知道學校需求及在地居民的需要,興建西松國小學生活動中心新建工程,包括停車場、游泳池、幼兒園、演藝廳、多功能室及各式球場,預計在2027年底完工,有望在2028年開放使用。
期待在興建完成後,周遭居民能享有充足的活動空間及停車位,增加居民交流及社區共識,增加南京三民周遭的機能及整體利用。最重要的,希望西松國小及西松附幼能持續傳承,多元發展,打造幸福下一代。




















