很多人在面對室內設計的設計圖時,第一個挫折往往不是風格,而是——看不懂。尤其是立面圖。線條清楚、標註完整,卻怎麼看都無法想像空間的樣子。
於是多數人會直覺認為:「是不是自己不夠專業?」但事實是,多數人從未被教過「如何閱讀立面圖」。立面圖不是直覺型的圖,它需要一種轉換能力——把平面的線條,轉成腦中的空間畫面。

主要原因
1)空間轉換能力不足
立面圖是「平面投影的牆面視圖」,也就是2D轉3D空間需要把:
- 平面圖
- 立面圖
- 想像中的空間
三者在腦中的組合。
而大部分人只習慣看「照片或3D」,缺乏空間投影概念。立面圖其實是在說明:
- 高度
- 比例
- 構件關係
這些在平面圖中無法表達。所以很多人會出現三個困難:
- 看得懂圖形
- 但不知道空間長什麼樣
- 無法把尺寸變成立體感
2)圖面符號與專業語言太多
立面圖通常包含:
- 尺寸標註
- 材料代號
- 剖面符號
- 索引號
- 技術性的工法
這些都屬於技術圖語言,如果沒有學過製圖規則,就會像看工程密碼。
3)立面圖本身是「抽象圖」
立面圖通常是:
- 沒有透視
- 沒有光影
- 沒有真實材質
- 由粗細線條去呈現
它是工程圖,不是表現圖。所以很多人會說:因為立面圖只負責精準,不負責好看。
4)大眾長期被3D圖教育
近十幾年設計市場大量使用:
- 3D render
- VR
- 模擬圖
結果很多人變成,只會看3D,不會看施工圖。這也是為什麼現在很多客戶:
- 只相信效果圖
- 不理解施工圖
5)立面圖必須搭配平面圖看
立面圖不是獨立閱讀的圖,必須同時看:
- 平面圖
- 立面圖
- 剖面圖
三者合併才完整,形成完整一套施工圖。但很多人只看到單張立面,自然看不懂。
立面圖怎麼看懂
已逐步釐清立面圖之所以難以理解的根本原因。立面圖並非直覺可見的空間樣貌,是經過轉譯的資訊。同時承載視覺與施工兩種邏輯,卻缺乏清楚的閱讀順序。多數人在學習過程中,又習慣以「物件」而非「整個面」來觀看,導致比例與結構關係難以建立。再加上線條層級不明與設計判斷長期被忽略,使得立面圖往往流於形式,難以真正成為溝通圖面。
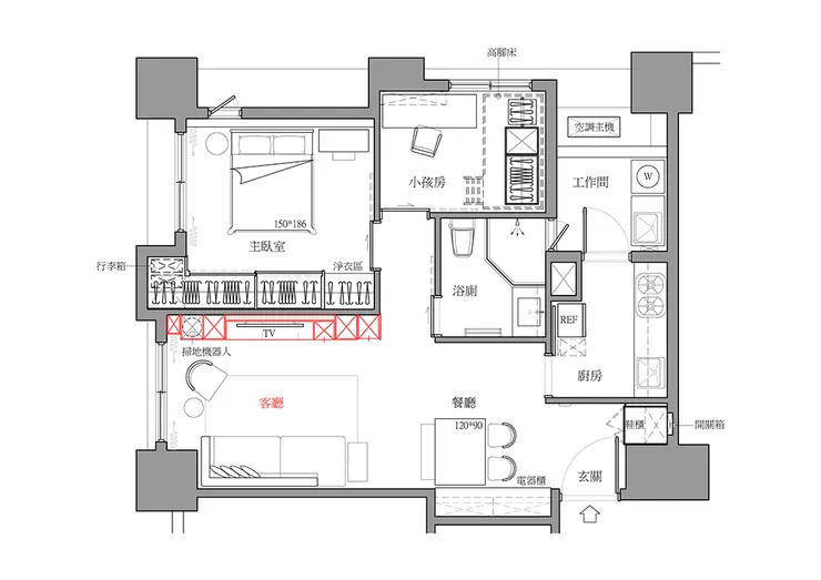
因此,理解立面圖,不能只停留在圖學技術或繪製方法,而是需要回到空間本質,重新建立從平面到立體、從感知到表達的思考路徑。當觀看方向被釐清、正向立面與剖面的角色被區分,並且具備完整的前置條件與轉譯邏輯後,立面圖才會開始「說話」,不再只是線條的集合。列舉個案的範例,以客廳的電視櫃(紅色線)為例逐一說明步驟:

方法1:先找「牆面位置」
立面圖其實是在說:
「這一面牆長什麼樣」
所以第一步要先找到:
- 這是客廳哪一面牆
- 還是電視牆
- 還是餐廳牆
先在平面配置圖先對到牆的位置,就比較不會迷路。

找到客廳的電視櫃位置,對應立面圖的名稱與立面圖的線稿呈現。

方法2:把立面圖想成「牆的正面照片」
立面圖其實就像:
站在牆前面拍一張正面照
所以看到的東西就是:
- 櫃子
- 門
- 電視
- 層板
- 裝飾
只是變成線條版本的照片,這樣理解會很直覺。
方法3:只先看三件事
很多人一看到立面圖就被尺寸嚇到,其實先看三件事就好:
- 有什麼東西-櫃子、電視、門
- 高度-櫃子多高
- 比例-櫃子寬度
其他的材料、細節和收邊,是可以最後再看。

方法4:搭配3D或照片理解
現在很多設計師會提供:
- 立面圖
- 3D圖
理解順序可以是:3D → (平面圖)找到對的位置→(立面圖)比對立面和線稿 → 尺寸,先看感覺,再看細節。

方法5:看「標題與比例」
立面圖通常會寫「客廳:電視櫃平面圖」和「比例 1:50」,只要看尺寸標示數值,均以公分為單位。例如:385的數值尺寸,則為385cm。

方法6:側剖面的判斷
有時候只看正面的立面圖,會看不出裡面怎麼做。這時會搭配一種「直切側面看的圖」。可以把它想成把牆或櫃子「從正面切一刀由側面看」,看看裡面長什麼樣。
那要怎麼知道是從哪一邊看?可以看圖上的箭頭,箭頭的尖端指向哪一邊,就是從那一面看過去。透過這種圖,可以更清楚看到:
- 櫃子的深度
- 層板怎麼放
- 厚度與結構
也就是說,它是在幫你看「裡面怎麼做」,而不只是外表。

方法7:內視圖的判斷
除了外觀,有時還會看到一種圖,是專門畫櫃子裡面的。可以很簡單地理解成把櫃子的門打開(甚至拿掉),直接看裡面怎麼放。這種圖在說的不是外型,而是:
- 東西怎麼收納
- 層板怎麼分、層板有幾片
- 抽屜在哪裡
很多人只看外觀,卻忽略裡面。但實際生活中會不會好用,常常是裡面(櫃內)去決定的。

立面圖之所以讓人感到困難,往往不是因為它太專業,而是我們習慣用錯方式去理解。多數人習慣看照片或3D圖,追求直覺的空間感,但立面圖本質上是理性的,是將空間轉化為線條與比例的表達方式。如果沒有建立正確的閱讀順序,就容易在尺寸與符號中迷失,反而看不出整體。
當你願意放慢速度,先理解畫面在表達什麼,再去看細節,立面圖其實會變得清晰許多。一般人看立面圖只要記住一句話:立面圖就是「牆的正面圖」。不要先看尺寸,先看「牆上有什麼」。
延伸閱讀文章:
- [我寫的書] 室內設計製圖解剖:立面圖表現法
- 如何看懂平面配置圖?圖例、空間規劃與動線設計一次搞懂
- 讀懂立面圖關鍵:觀看方向與剖面解析,告別空間繪製的誤讀
- 室內丈量七步驟教學:完整流程、注意事項與技巧
- 樓梯的尺寸標註與繪製立面圖注意事項




















